Bosfor土耳其餐厅是亚洲和欧洲的融合。每一个细节对于大气和对空间的正确感知都很重要。“在两种文化的边缘”——这是整个餐厅概念的重点。每层楼都是一个单独的故事,其内部色彩和精致感十足。
Bosfor Turkish Restaurant is a fusion of Asia and Europe. Each detail is important for the atmosphere and the correct perception of space. «On the verge of two cultures» – this is the main emphasis on which the whole concept of the restaurant is focused. Each floor is a separate story with its color and sophistication of the interior.


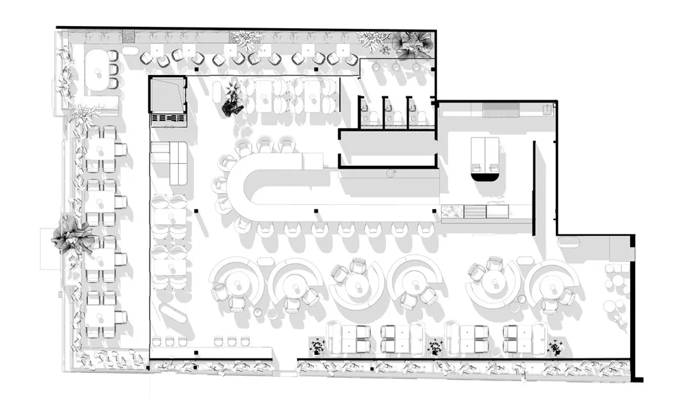
该餐厅受众是新潮青年和高端人士。该区域包括:餐厅,咖啡厅,屋顶,地下酒吧。设计一楼室内的主要任务是避免老套的土耳其细节。现代,圆润,与干净的线条和空间-这是我们需要的!简洁而鲜明的内饰,全景彩色玻璃窗,开放空间,丰富的植物和明亮的颜色;丝绒、玻璃、拱门——这些都帮助我们创造了东方文化的现代氛围。
The market segment is a trendy youth and a premium audience. Zones: restaurant, cafe, rooftop, speak-easy bar. The main task in developing the interior of the 1st floor was to avoid stereotypical Turkish details. Modern, sleek, with clean lines and spaces – that is what we needed! Laconic and contrasting interior. Panoramic stained glass windows. Open spaces. The abundance of plants and bright colors. Velvet, glass, arches – that is what helped us to create a modern vision of oriental culture.


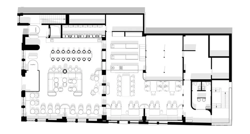
一层的东方文化精神在细节上得到了体现——拱形结构、天然石材和流畅的线条在现代的诠释。园林是室内装饰的重要组成部分,是营造屋顶花园的重要手段。一间上面有植物的开放式酒吧成为客人们高度关注的对象。
The spirit of the oriental culture of the 1st floor is expressed in details – arched structures, natural stone and flowing lines in a modern interpretation. Gardening is an important part of interior decoration to create a roof garden. An open bar with plants on top became the object of high attention of guests.

















∇ 爆炸分析图

∇ 平面图


∇ 剖面图


主要项目信息
项目名称:BOSFOR餐厅
项目位置:俄罗斯罗斯托夫州
项目类型:餐饮空间/现代风格
项目面积:1140㎡
完成年份:2019
设计师:AD Project Dorohov
摄影:Mikhail Loskutov

