项目位于西安大华1935工业园区,商场是由原长安大华纺织厂新布场厂房改造而成,承袭了珍贵的近代工业文明遗存,集合现代社会城市的综合功能,定位为涵盖大华博物馆、小剧场集群、文化艺术中心、精品酒店、特色餐饮、购物街区等城市生活多种功能、多样文化、多元消费的文化商业mall。
店铺有100平方米的展示空间,如何巧妙的陈列服装,充分表现seibmaca品牌的时尚精神,是设计时我们主要思考的问题。
大华1935保留了原有的混泥土主体建筑结构,商场环境透露出浓重的工业风格,西安是中国的文化之都,处处彰显着古都的风韵。
seibmaca店面采用极简主义理念,使用不锈钢和铁板等简洁大方的现代材料打造时尚的优雅形象。使新和旧达到一个完美的平衡。
白色的粗糙墙壁、简单的不锈钢货架、顶部的人造天光,我们摈弃了多余的空间装饰和软装搭配,使服装和空间在这里相互补充,散发出朴素的光辉,营造出静谧安详的氛围,让喧嚣和沉静达到一个平衡。
白色的粗糙墙壁、简单的不锈钢货架、顶部的人造天光,我们摈弃了多余的空间装饰和软装搭配,使服装和空间在这里相互补充,散发出朴素的光辉,营造出静谧安详的氛围,让喧嚣和沉静达到一个平衡。
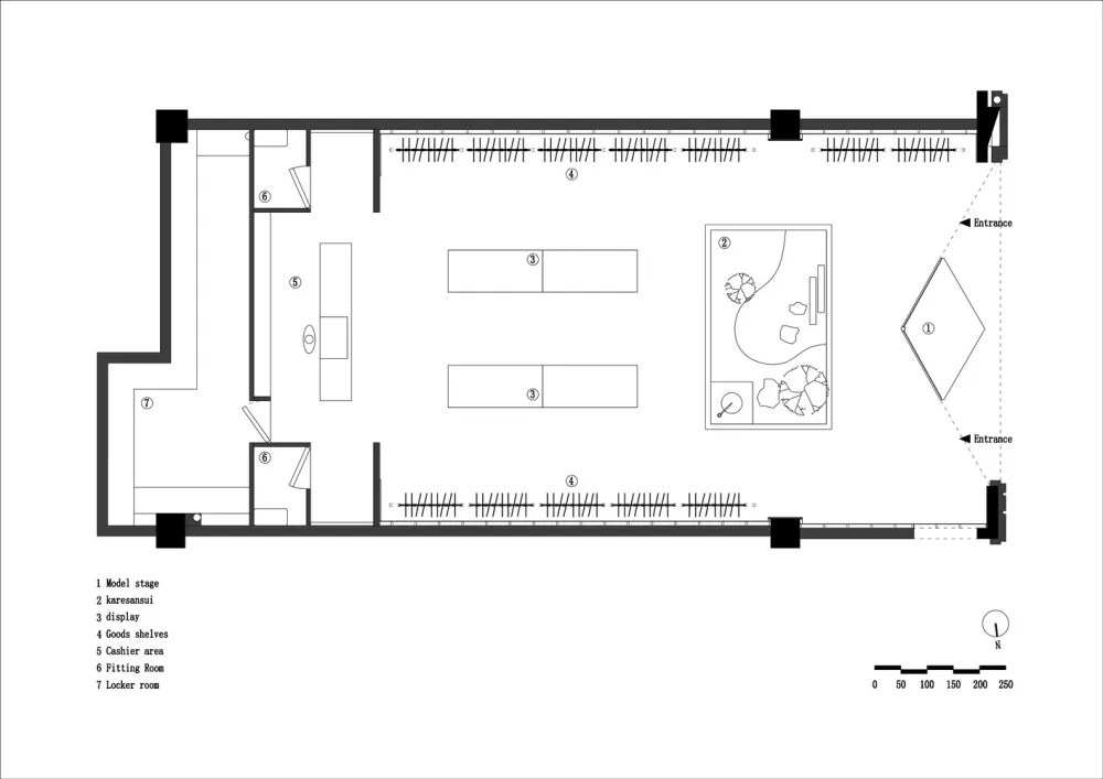
▼项目平面图
室内设计: 上宅良营设计
面积: 120.0 平方米
项目年份: 2019
摄影师: 张家宁
主创建筑师:汪春林
施工单位:上海君蓝装饰
施工监理:沈茂胜
道具制作:新柏装饰
项目客户:香港潮艺基金管理有限公司

