若提及这个改造项目,我们就得从其所处的这栋粗野主义建筑谈起。这栋公寓建于1973年,在设计上运用了重复的模块化混凝土拱作为结构支撑。值得注意的是,在大部分的房间中,这些混凝土拱的框架结构是直接暴露在地板跟天花之间的,继而形成了一种虽为结构但似装饰的特殊效果。因而,项目在涉及室内改造时,这一独特的元素,自然是无法忽视的。
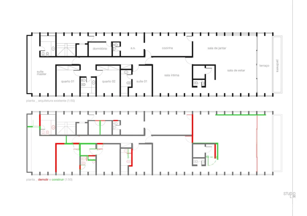
在这个改造项目之前,这个空间曾被翻修过一次,以至于所有的结构支撑拱都被石膏板所覆盖。在本次改造中,出于同样的考量,建筑师用石膏板遮挡了80%的结构框架,包括了固定的高低窗。但同时,出于光照的考量,建筑师完整地保留了室内既有的斜开窗。
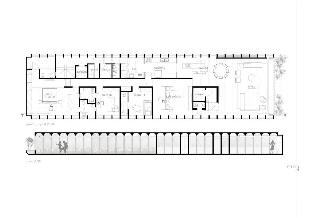
处理完空间既有的美学特征后,项目的下一步将是:根据现代生活的需求来调整室内的结构和基础设施。建筑师将既有的两间套房改为三间,以增加一间主卧和次卫生间,继而扩大主卧套房的面积。同时,空调、自动化及照明管道对遮挡石膏板的厚度要求相对较低,因而主卧套房和公共区域的大部分混凝土拱框架结构,都得以暴露在外。
业主夫妇在项目的讨论中提到:他们希望改造后的客厅可以与餐厅相连,以便他们在周末与朋友一同聚餐。但除了周末,周中家里还会有两个雇员,和这对夫妇的两个孩子。因而,客厅并不能如周末那般,彻底地与餐厅相连。
基于业主的这一特定需求,建筑师在住宅的中心区域设计了一个多功能炉灶。它既可以在周末,充当一个聚餐的集合点;又可以于周中,为屋内的每个人提供各自的用餐场所。这样一来,空间的使用就变得颇为灵活,使业主最初的担忧得到了解决。
此外,为了将密室和公共区域隔离开来,建筑师在客厅的橱柜处设计了一扇隐藏的滑门。这样的设计,一来可以在孩子需要完成功课时,使他们免受大人的影响;二来,还可以适当隔绝客厅电视播放的噪音。隐藏滑门的存在,使得住户可以根据不同的情景,调整滑门的位置,来分隔空间,以适应当时的特定需求。
在住宅的室内装饰上,建筑师有意引入了些许自然元素,以对混凝土材质造成的沉重氛围,进行适当的疏解。在遮挡石膏板被移除后,住户于室内,不光可以看到原有的混凝土拱框架,还可以看到公寓周围所栽树木的顶端。同时,位于公寓主立面上的大型植物盆栽,给人以向室内延伸之感,与住宅内部的花园交相辉映。植被的绿意,木材的自然感以及稻草的温度,共同温暖了这个原本略显冰凉的混凝土空间,并将房间的内外,更紧密地结合在了一起。此外,建筑师还在室内,设计了多堵白墙,用以悬挂业主所收藏的画作,以增加室内的色彩饱和度和丰富性。
建筑师旨在通过这一改造项目,向巴西当地的自然景观和建筑环境致敬。同时,建筑师还将热带主义运动与粗野主义流派的固化产物,于室内改造中,做一微微的调侃。
建筑设计:StudioLIM
项目位置:Jardim Paulista,圣保罗,巴西
主创建筑师:Cyro Guimarães, Luciano Aguiar
工程师:StudioLIM enge.
面积:280.0 m2
项目年份:2019
摄影师:André Mortatti
厂家:Trimble Navigation, Autodesk

