:Pérez Palacios Arquitectos Asociados
将OCTAVIA概念体现在人居空间是CASA OCTAVIA设计的设计定位。自然,简单,清晰和诚实的价值观被淋漓尽致的融入到建筑空间,客人可以在这里享受独特的生活体验。
项目坐落于Condesa,这里是墨西哥城最集中,最轻松休闲的城镇之一,设计务求将新的设计理念融入,但是不让建筑显得与城镇格格不入,达到和谐统一的效果。
项目用材朴素自然,通过材质本身特征和材质的对比,形成丰富的空间层次。
和OCTAVIA品牌一样,该项目特别关注每个用户的细节和具体需求,只使用了最纯净的材料,辅以精湛的制作技艺,不仅使建筑整体感觉和谐,也赋予了空间永恒感。
Like and OCTAVIA , the project has a special care for the details and for specifics need of each users. Using only materials in their purest state, with an exquisite manufacturing they make it not only feel harmonious but at the same time timeless.
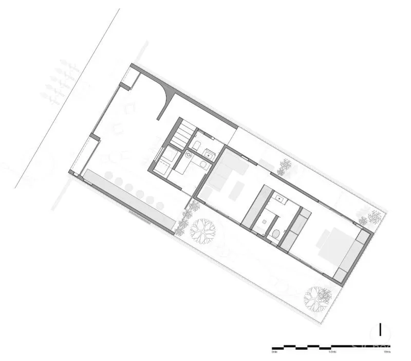
项目名称:奥克塔维亚住宅 地点:墨西哥城 完成:2020年 面积:340平方米 团队:Pablo Pérez Palacios, Miguel Vargas, Jorge Quiroga, Hermann Tamayo 摄影:Maureen M. Evans / Luis Young / Luis Garvan
Project name: OCTAVIA Location: Condesa, CDMX, México. Year: 2020 Construction: 340 m2 Team: Pablo Pérez Palacios, Miguel Vargas, Jorge Quiroga, Hermann Tamayo Photography: Maureen M. Evans / Luis Young / Luis Garvan

