感谢来自 一夕(深圳)设计顾问有限公司 的商业空间项目案例分享:
正安中医馆位于深圳福田CBD,设计师与业主怀揣同样的愿景,都希望能创造一个颠覆传统的医馆空间。正安中医品牌本身也拥有深厚而开放的文化背景。“牌匾、中药柜、药师佛” 这些特质元素背后传达着“信仰、专业、匠心与真诚”,让我们重新发现中医太美。
设计师采用“客厅”的概念打造公共空间,激发出多元的社交活动。营造出一个“平和谦逊而有设计感”的医馆空间气质,以烘托出独特的就医体验。


公共客厅的整个空间通透,不带有任何鲜明中式符号化的烙印,“无”形式、“无”修辞,显出开放与自由。设计师未赋予医馆任何“风格”,悉心选择材料、构件,令其中的一器一物成为主体。并通过木架的形式统筹起等候、调剂、收银、水吧及展示和宣传等功能区。此时自然质朴的实木条在设计师眼中有了新的定义,即是划分、围合空间的构件,也留给使用者未来宣传展示、装饰的一种可能性。


很难想象这样的医馆竟坐落于CBD的写字楼中。没有自然光线反而更不会被外界所打扰。古香古色的木质中药柜,是从老店直接沿用过来的,与前面的水磨石长调剂吧台形成鲜明的对比。这种新与旧的“混淆感”似乎在这个空间里随处可寻——上方裸露的工业化管道,与不乏传统印痕的家具陈设共成一体。这一切都映射出品牌理念所蕴含的东方智慧。









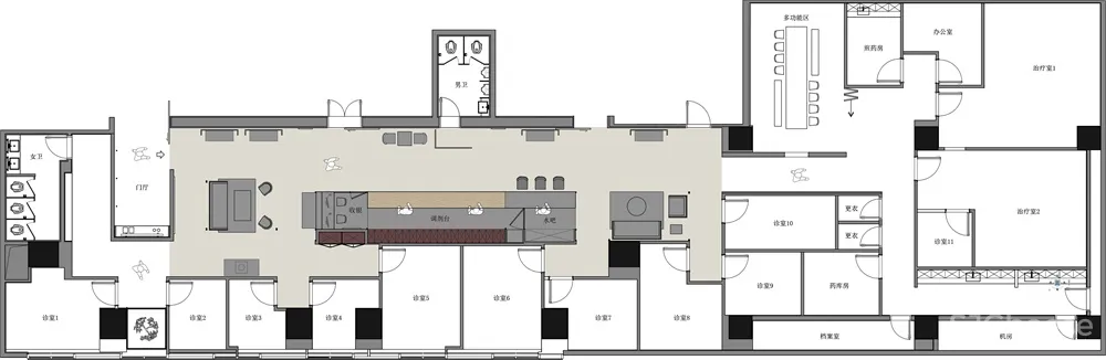
∇ 平面图

∇ 细节木架结构

∇ 视频
<span data-mce-type=”bookmark” style=”display: inline-block; width: 0px; overflow: hidden; line-height: 0;” class=”mce_SELRES_start”></span>
∇ 剖面图

∇ 立面图


主要项目信息
项目名称:深圳正安中医馆品牌旗舰店
设计公司:一夕(深圳)设计顾问有限公司
主创设计师:邱希雯、朱玲
联系邮箱:szyixidesign@126.com
完成年份:2019年1月
建筑面积:500平方米
项目位置:深圳市福华路319号兆邦基金融大厦4楼
家具品牌:梵几
主要材料:稻草漆、水泥漆、水磨石、橡木、桦木等

