项目背景 Background Information 项目位于山东日照东港区香河街道清溪村清溪龙吟徽宿内,周身被茶园环抱是一处传统雅士生活的世外桃源之地。 园区内有两栋徽州民居古宅"清溪轩"、"龙吟居"。本次改造项目为名为"清溪轩"的古徽州老建筑,建筑主人经过千里从江西古村落将其搬到此处并用6年的时间进行复原。 The project is located in Qingxi Village, Xianghe Street, Donggang District, Rizhao, Shandong. It is surrounded by tea gardens and is a place of paradise for the traditional life. There are two ancient Huizhou folk houses "Qingxi Xuan" and "Longyin Ju" in the park. This renovation project is an old Huizhou building named "Qingxi Xuan". The owner of the building moved it here from an ancient village in Jiangxi province thousands of miles away and restored it in 6 years

 
 
前期工作|Preliminary work 建筑主体一共三层此次改造范围为二,三层的空间。 建筑主体为纯木结构,二楼内空间昏暗,改造后如何满足现代人居住使用的需求成为最大的难题。考虑到其建筑本身的特殊性,改造必须以保护和尊重其原有的结构框架为前提。 同时也要满足客户及其市场经营的需求。经过多轮的讨论,在尊重建筑本身构造的前提下,将其空间进行重组,通过对材料、空间、光影的运用形成一个及对比又融合的多重空间。 The main building has three floors. The scope of this renovation is two and three floors. The main body of the building is pure wood structure, and the space on the second floor is dim. After the transformation how to meet the needs of modern residential use has become the biggest problem. Considering the particularity of the building itself, the renovation must be based on the protection and respect of its original structural framework. At the same time, we must also meet the needs of customers and their market operations. After several rounds of discussion, the space was reorganized under the premise of respecting the structure of the building itself. Through the use of materials, space, light and shadow to form a contrast and fusion of multiple space.


 
 
公共空间|Public place 对空间重新梳理后,分别在东西两侧中间部分形成两处公共空间,空间两侧用原木色樟子松和障子纸做成的半透明格栅透光墙,改变原空间的昏暗性。 新增原木色格栅与古宅形成新的空间与时间上的交流。 After rearranging the space, two public Spaces are formed in the middle part of the east and west sides respectively. On both sides of the space are translucent grille translucency walls made of wood color camphor pine and Barrier of paperr paper, changing the dimness of the original space. New wooden color grille and the old house form a new space and time exchange.



 
 
客房|The guest rooms 共八间客房,由于整个空间的局限性,设计中尽量凸显原来结构的古朴,部分加入新的元素。让入住者有一种别样的感受。 A total of eight rooms, due to the limitations of the entire space, the design highlights the simplicity of the original structure, adding a few new elements. Let the occupants have a different feeling.



 
 
三楼茶空间| Tea space on the third floor 三楼为一个独立的茶空间,为主入喝茶养心独处空间,地面铺设榻榻米,进入空间内需席地而坐,静心品其茶香。两侧尽可能的保持视觉通透性,方形的木格墙既分割了空间又形成一个特有的展示效果。 The third floor is an independent tea space, where the master can enjoy tea and nourish one's mind. The ground is paved with tatami. When entering the space, one needs to sit on the floor and enjoy the fragrance of tea. As far as possible to maintain the visual permeability on both sides, the square wooden lattice wall not only divides the space but also forms a unique display effect.


 
 
施工过程| Construction process 由于施工周期短,十几个木工匠人日夜兼程,设计师现场指导,有些空间处理上大家一起探讨,达到理论与实践的统一,大大提升了施工效率。 Due to the short construction period, more than a dozen carpenters work day and night, designers on-site guidance, and some space treatment are discussed together to achieve the unity of theory and practice, greatly improving the construction efficiency.


 
 
轴测图
 
 
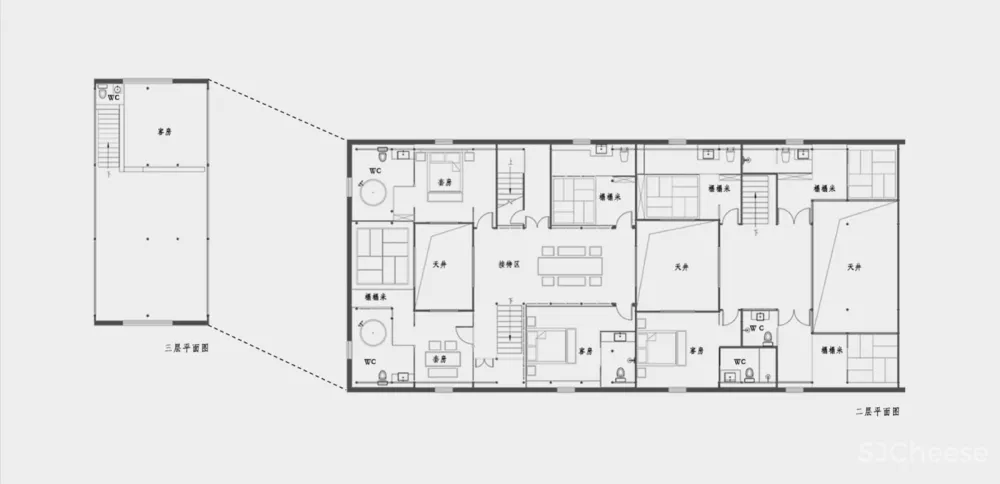
平面图
 
 
剖面图
 
 
项目名称:日照清溪龙吟/大清徽宅 项目地址:日照市东港区香河街道清溪村 项目业主:山东日照清溪龙吟农业发展有限公司 施工团队:山东道可道景观工程有限公司 项目设计:DK大可设计 设计团队:杨大可 高浩军 李梦阳 联系方式:dakejzghsj@163.com 现场摄影:大可设计/清溪龙吟 材料:樟子松木 障子纸 麻毯 香樟木 老榆木等 时间:2018-1/2018-3 面积:约350平方米
版权声明:本文内容由用户自行发布上传或投稿由设计芝士代为发布,版权归原作者所有,设计芝士不拥有其著作权,亦不承担相应法律责任。如果您发现本站中有涉嫌抄袭或侵权的内容,请点此提交工单进行举报,一经查实,本站将立刻删除涉嫌侵权内容。
    

