这个案子的屋主他的职业是一位警官,平时工作压力很大,所以我们决定让整个空间都是以白色系为主,色彩心理学上,白色象征纯洁、干净、信任,很符合屋主工作的专业形象,而为了避免太大面积的白色会让人有开放的梳理感,所以适当地穿插木头及局部灰、黑色点缀,平衡视觉感受。



沙发后方可以通过“一线之间”看到瓯江。


客、餐厅串联,空间视野最大化,多面采光进入空间,通透明亮。白色电视背景墙的设计,弱化原始空间结构。



电视背墙通过有规律的抽缝,增强细节。










主卧的阳台轨道主卧使用,餐厅外的阳台,划分为了设备阳台和休闲阳台,男业主偶尔抽烟,也能做到很好的隔离。









石膏板吊顶,射灯与立面灯光结合,让整个使用空间没有暗角,延续公领域色调,放大空间感。
















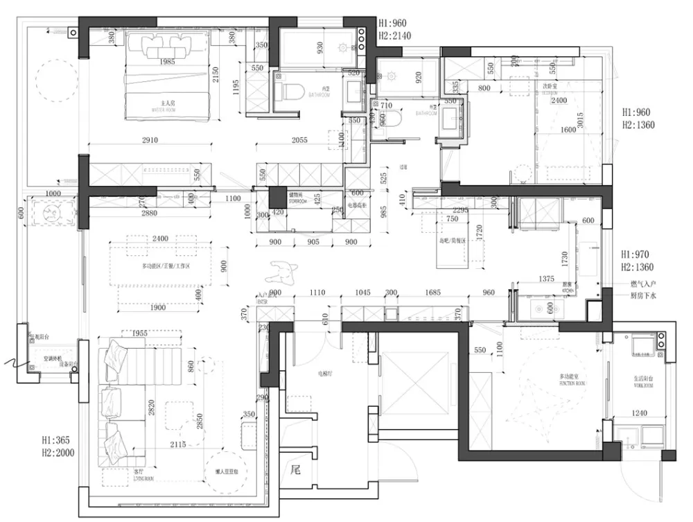
∇ 平面布置图

主要项目信息
项目名称:温州一间职业警察的极简白色减压住宅
设计单位:鸿泰室内设计顾问有限公司
主要材料:涂料/木作/地板/瓷砖

