几年前,洛林之家是一个衰败的地方,是在Mechelen的大广场上一个令人不满的存在。dmvA被委任改变这个角落,从而恢复市场和街头风光。在这个项目中,城市一体化受到高度重视,尊重建筑的历史。对于dmvA来说,高质量的生活也是其目标。洛林之家的概念是基于大广场的城市形态。保留了原有立面的节奏和形式,而不是建造巨大的整体。这样,街道的节奏就不会被打乱。通过保持立面的韵律,住宅小而垂直。


dmvA决定不主动安排室内区域,而是让居民可以根据自己的需要灵活地布置房屋。由于拐角处的房屋曾经被粉刷成白色,所以Mechelen市要求dmvA把它还原。因此,其他的房子也变成了白色,每座房屋的材质都不一样。第一个立面由铝板条组成,第二个立面由带有十字图案的预制混凝土组成。由于其结构,立面通风且开放,但可确保足够的私密性。第三个立面是玻璃,其一楼可用于商业用途。第四个进行了翻新并用白色抹灰。


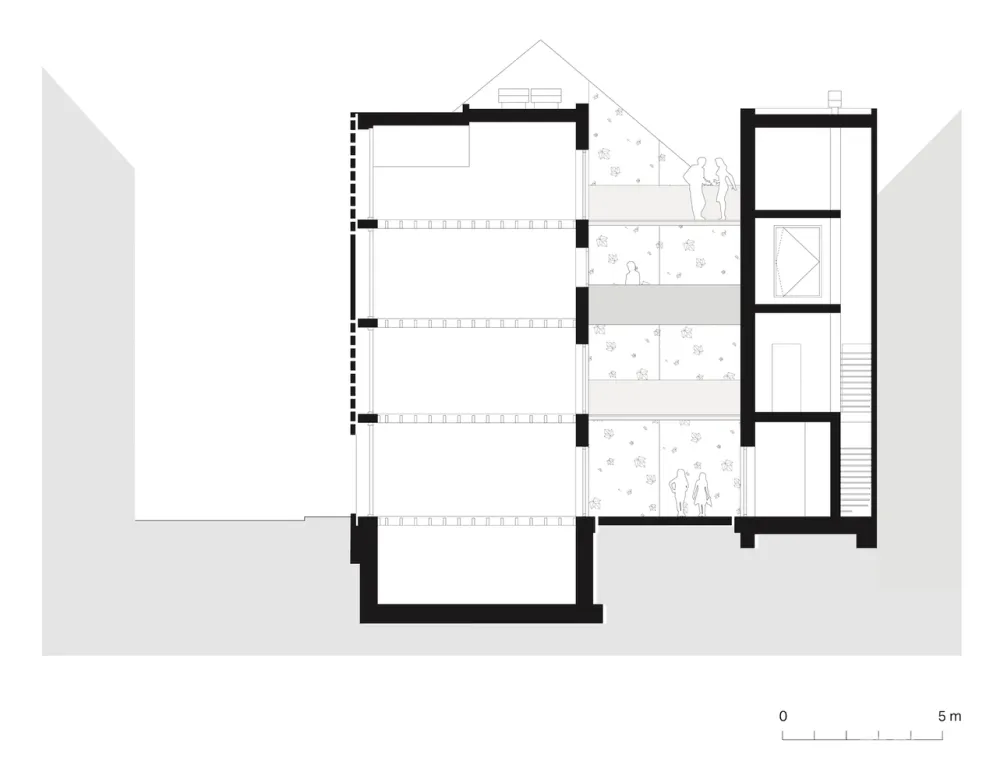
由于其位置,转角房屋的光线不足。作为解决方案,在住宅之间创建了一条内街,使光线可以更好地流通并到达拐角处的房子。在内街的尽头有一个垂直的城市花园,即murvégétal。私人露台由金属网地砖建造,漂浮在内街上方。由于其位置近,圣伦伯德塔是居民从阳台上望出去最理想的风景。所有的住宅都可以通过半公共空间进入。这里鼓励高品质生活的社交:内街也作为居民的聚会场所。








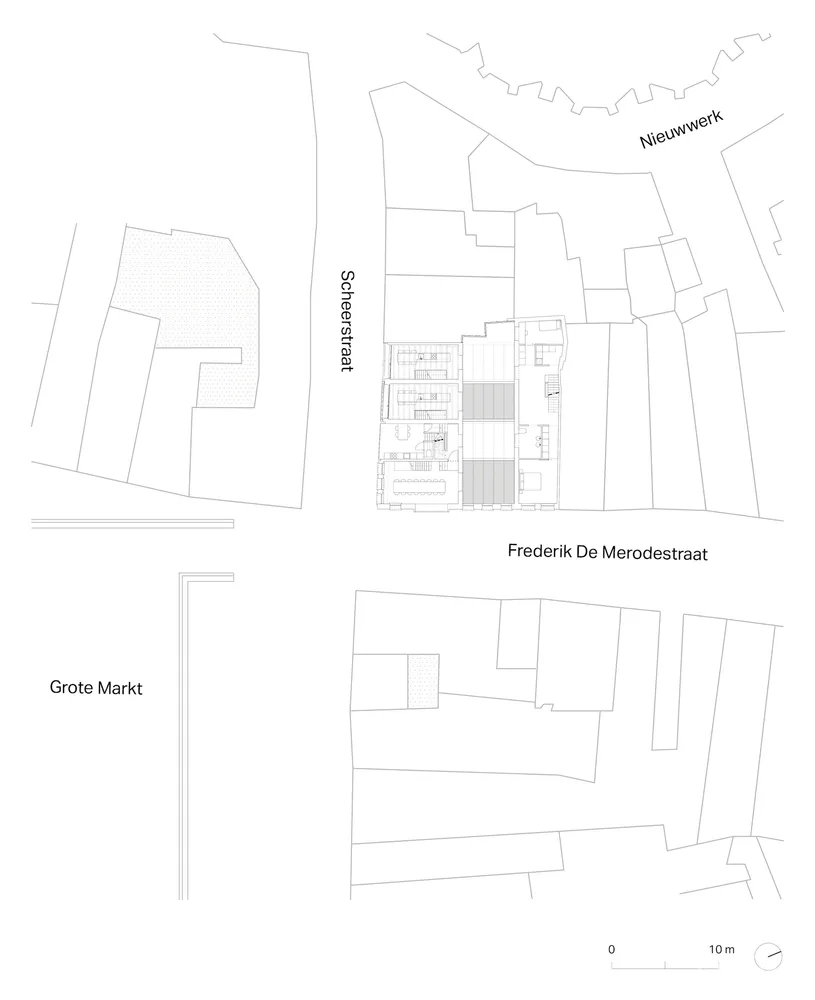
∇ 区位图

∇ 改造前后

∇ 负一层平面图

∇ 地面层平面图

∇ 一层平面图

∇ 二层平面图

∇ 三层平面图

∇ 屋顶平面图

∇ 剖面图

主要项目信息
项目名称:洛林之家
项目位置:比利时
项目面积:689㎡
完成年份:2018
设计公司:dmvA
摄影:Sergio Pirrone
文本信息:archdaily

