BBDO 创意机构位于布鲁塞尔Sint-Jans-Molenbeek的一栋保护建筑内。建筑于1999年完成了第一次改造,将后部的仓库改为办公室空间。由于进行了内部重组,BBDO委托ZAmpone为他们在Brussels设计一个新办公空间。优化空间设计需要一项基本干预措施:将主入口移到建筑的一侧,与停车场相连。建筑中央三层高的大厅不仅仅是一个交通空间,还向人们展示着公司内部的创意“核心”。
考虑到目前的经济状况,有效利用空间从而实现更高的容纳率是布局的重要前提。ZAmpone设计的“开放空间”建立在三个原则之上:动态、声学和日照。在“新的工作方式”中,人而不是空间在建筑中发生行为,也可以说是动态用户位于静态的建筑中。ZAmpone不仅实现了这种空间设计,还塑造了一个能够为项目提供资金的经济建造方案:BBDO清空多余的空间,使用公共接待处和公共餐厅。这也是动态原则的一部分。划分和界定噪声区是设计的第二个重要原则。在“开放工作空间”中,会议只允许在单元隔间中举行,从而控制内部声音。会面和洽谈在餐厅看台或围绕着交通管线进行。日照是第三个重要原则。研究发现员工在拥有自然光线和城市美丽景观视野的环境中能更好的工作。新工作区域围绕着窗户和中央布置。会议室内没有自然采光,从而达到控制使用时间的目的,避免了长时间的“占用”行为。
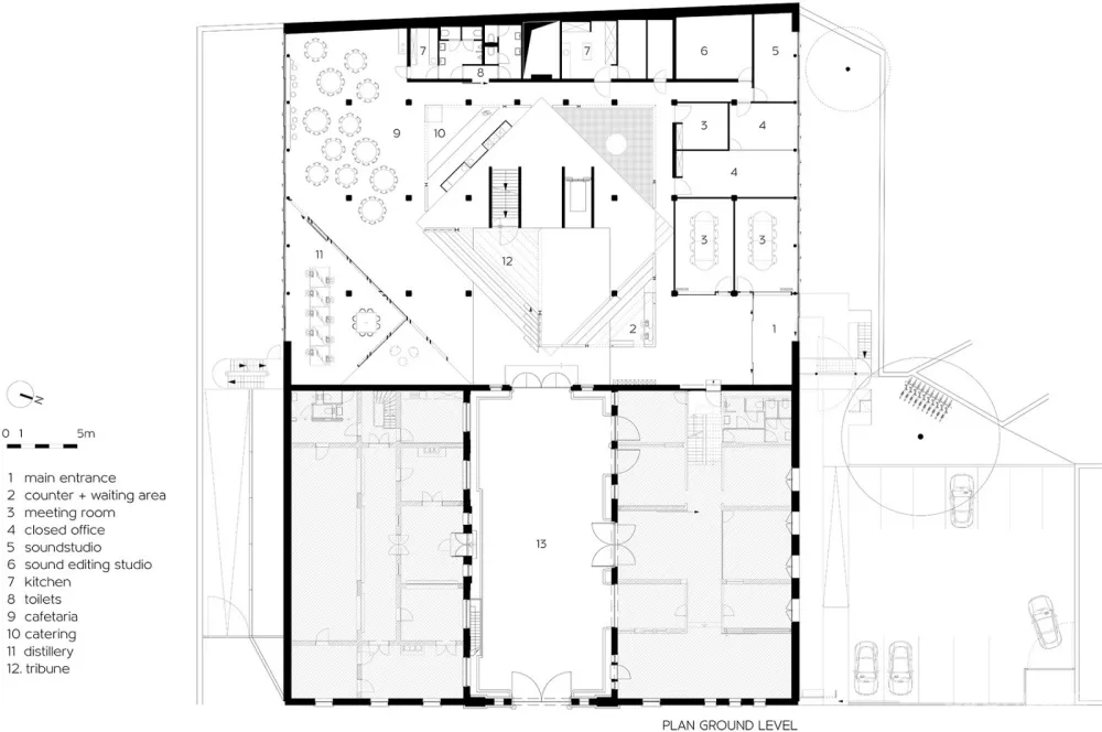
建筑正交形式被斜线打破,三角形区域形成新颖、更有趣的视角。斜线的设计理念也体现在CEO举行非正式会议、启发性讨论会、演讲和讲座的看台,以及图书馆和前台区。首层容纳了与其它公司共享的集体功能空间:餐厅,看台和会议室可以共享使用。
在二层的BBDO创意“核心”围绕着建筑中心,位于室内窗户的后面,建筑中每一层都能看到这个区域。参观者完全被内部工作所吸引。这一层其它的服务部门都经过精心的组织、自由互动发展。
BBDO最动态的团队位于三楼。这里的使用者全天在不同的服务部门和团队之间活动,所以这里永远不会出现满员使用的情况。
对于灵活办公的设计概念而言,电源插座和数据点是一个需要解决的重要问题。ZAmpone在桌子之间设计了移动式管状钢构件,将线路引导至正确的位置。它们也是各种墙体分隔和声学材料的载体。这些材料不会阻止光线照射内部空间。钢元素将空间限定为简单的线性区域。一盆悬挂植物、一个衣架,一个灯具:个性化与灵活性彼此相融。设计与业主之间建立了紧密的对话,创意与参与性并存。
















▼电源插座与数据点设计图解
▼首层平面
▼二层平面
▼三层平面
▼剖面
▼室内效果图
项目名称:BBDO Brussels
建筑师事务所:ZAmpone Architectuur
项目位置:布鲁塞尔
完成:2018
总建筑面积:2.695平方米。
首席建筑师:Bart Van Leeuw(合伙人高级建筑师)& Kevin Van Steenbergen(项目设计师)
结构工程师:UTIL (http://util.be) – Pieter Ochelen
技术工程师:BOTEC nv
承包商:Detender NV
摄影资料:蒂姆·范·德·维尔德

