高密度
高速度和高密度已成了地处亚热地带的南中国城市深圳的代名词。这座沿着珠江口出海口东侧滨海带状规划的超级城市中的人口和建筑密度依然与日俱增,超高层建筑中的居住和工作已成为这座城市的日常。城市里的休闲、甚至教育都被带进高空之中。
∇ 水平的高密度策略



红岭实验小学及其周边城市的所在地原本是福田区西北部的一座名为安托山的小山。这座小山在城市中广为人知是因为它供给了大量用于城市填海扩张的花岗岩土石方,以至于山体被基本削平,仅剩在小学西侧的一座孤独的小山包。其余场地在采石行动逐步退出后被平整为城市开发用地。
∇ 安托山遗存的山包和小学新校园概念

红岭实验小学的建设用地约100米见方,原规划24班小学,后因学位缺口巨大而增容至36班。现建筑面积约为原规划的两倍,建筑容积率超过3.0。加上用地东南角基础对地铁线路的避让、道路退缩以及规范上对日照间距(虽然这在亚热带气候的南方常被质疑,但到目前为止仍是强制性的要求)的规定,使得建筑设计面临诸多空间上的挑战。






垂直机制
因此,校园垂直向度的策略变得至关重要。超过24米的高层校舍在深圳小学建筑中已经被广泛采用,但相应的副作用是垂直方向的交通过多以及楼梯间需要被封闭和增加前室而阻隔了小学生们的交往。建筑师在红岭实验小学的设计中努力把建筑总高控制在24米以下,以创造水平交往和在建筑/景观空间上回应对儿童的身体和心理特点。
∇ 地景公园之上的山谷庭院


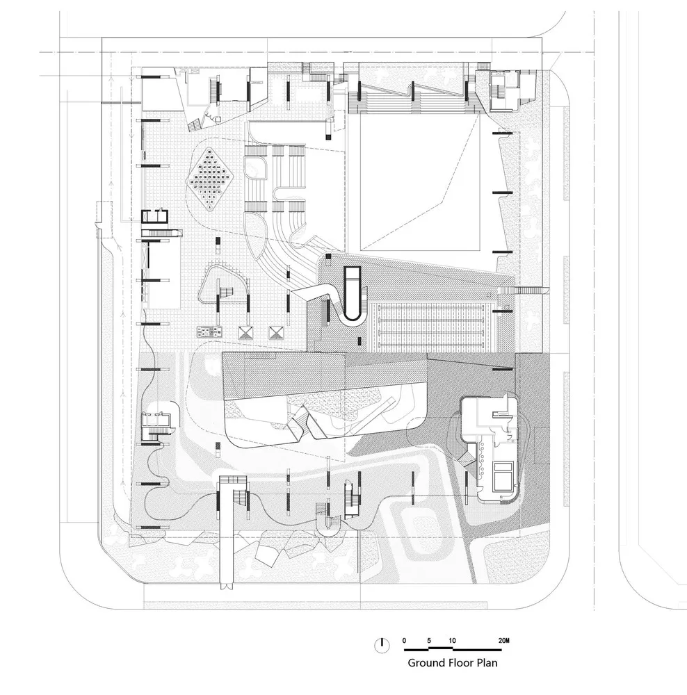
教学建筑几乎满铺可以建设的用地,建筑分为东西高度不同的两个半区,平面上以两个镜像的E字形连接。西半区利用学习单元之间所必须的间距创造出两个曲线形边界的“山谷”庭院。庭院下沉至地下一层,结合由道路退缩距离中取得的边坡绿化,为地下一层的文体设施和餐厅空间争取充足的采光和自然通风。
∇ 首层地景生成









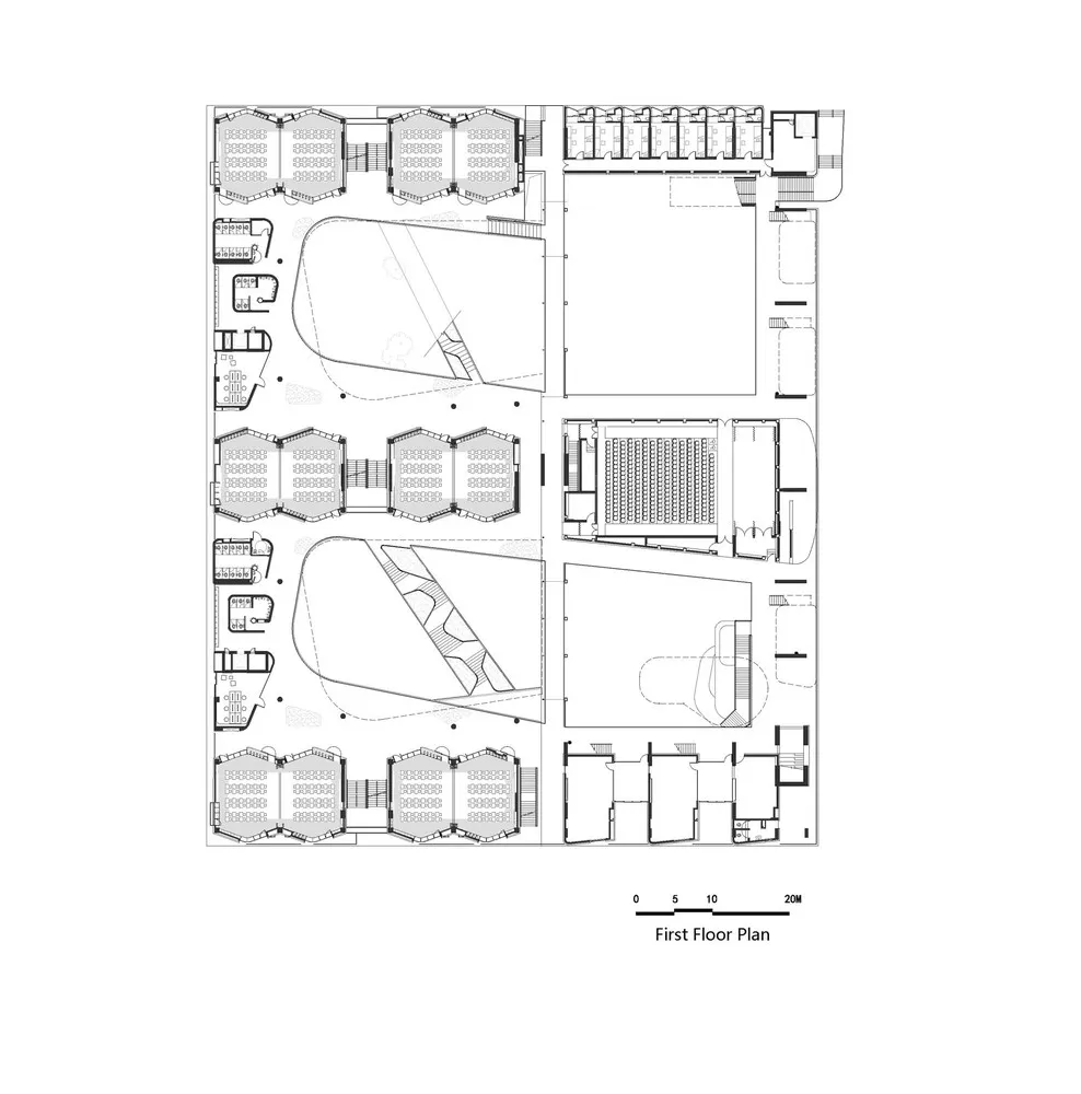
下沉庭院通过缓坡和露天阶梯剧场与架空且自然起伏的首层地面连接成为一个整体的地景儿童乐园。200米环形跑道和运动场被置于建筑东半区三层屋面,与西侧主教学建筑的三层平面相连,便于在二、三、四楼上课的小学生们课间到运动区域活动。
∇ 首层开放地景公园





运动场下方中部是可容纳300人的小礼堂,悬挂于镶嵌在地景乐园中的半户外泳池。主教学建筑的四、五层分别为课外教室和教师办公室,而天面屋顶是学校的园艺农场。


单元组织
学习单元——传统上称为课室,是小学生们学习和交往基本空间细胞单元。建筑师针对深圳所在的亚热带气候在水平的E字形板式楼层平面上构想了成对组合的鼓形平面的教学单元,避免课室过长的连排阻隔自然通风。每层12间课室分3列共6对布置。每个单元对组合可以通过开闭连接部的灵活隔断以满足合班和分班等不同空间需要。
∇ E形教学楼层

鼓形平面展现出比传统矩形学习单元更大的灵活性与自由度,更有利于单元课室里面的多样化的教学模式。课室经过连接后产生的富有韵律的折曲线与各层楼板在内庭院一侧的自由曲线间形成的线性活动场地,为小朋友们课间提供了一个富有活力的半户外活动场地。


建筑师利用了场地北高南低的条件让每层的三排课室从南往北各有一米的高差,在E形平板上产生了爬升的地景式行进体验。最终,两个“山谷”庭院中各有两道连接庭院两侧不同楼层的阶梯式花园廊桥,在“山谷”的上空悬置了一份独特的观赏和游戏体验。
∇ 成对的鼓形学习单元为互动式混合式教学提供多种可能性







“山谷”庭院、上下错动的水平层板、疏松的细胞组织以及有机的绿化植入系统均是项目中回应高密度和亚热带的南方气候的建造策略。而更为重要的是,建筑师希望通过红岭实验小学的建造过程和结果进一步探索高速发展之后的高密度城市里公共性设施的全新空间范式。
∇ 总平面图

∇ 首层平面图

∇ 二层平面图

∇ 三层平面图

∇ 四、五层平面图

∇ 剖面图

主要项目信息
项目名称:红岭实验小学
建筑师:源计划建筑师事务所 O-office Architects
地址:深圳市福田区侨香四道与安托山二路交汇处东北侧
项目年份:2017-2019
建筑总面积:33721平方米
高度:24米
主持建筑师:何健翔,蒋滢
项目建筑师:董京宇,陈晓霖
设计团队:吴一飞,张婉怡,王玥,黄城强,曾维,何文康,蔡乐欢,彭伟森,何振中
现场设计代表:陈晓霖
现场工程管理:深圳市万科房地产有限公司(代建)-赵偲翼,王川,黄鑫
结构顾问:广州容柏生建筑结构设计事务所
结构机电设计:申都设计集团有限公司深圳分公司
其他顾问单位:广州诺科建筑幕墙技术有限公司(幕墙设计),广州尚点园林景观设计有限公司(景观植物),广州哲外艺术设计(TheWhy art x design)有限公司(标识设计),深圳市光艺规划设计有限公司(照明设计),深圳千典建筑与工程设计顾问有限公司(结构超限顾问)
业主:深圳市福田区建工署
摄影师:张超,吴嗣铭,黄城强

