T宅是为一个跨越三代的家庭设计的。家庭一共有六名成员,其中包括一对夫妻,他们的两个孩子,以及女主人的妈妈和妹妹。
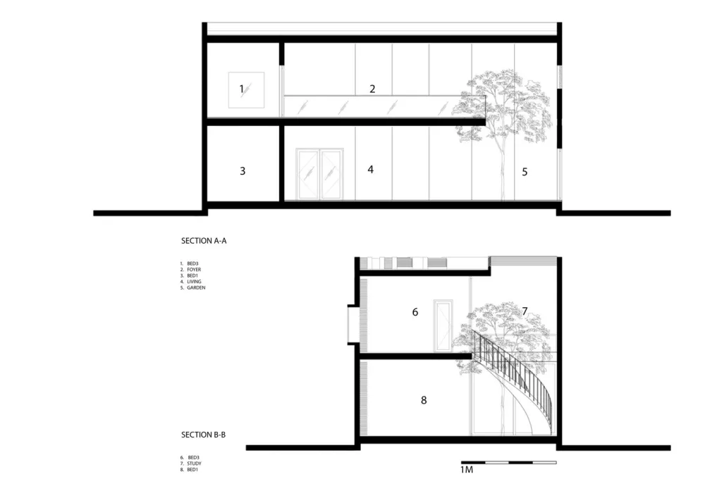
这座房子建于越南平阳的一个四边形地块上,它的正立面朝向西边。这个立面被分成7块实墙,通过玻璃和百叶窗连接,尽可能地将自然光引入屋内,并且拥有良好的通风条件。







除此之外,屋子的主人认为自己是一个害怕孤独的人,她希望家庭里的每一个成员在家里的时候,能够轻松的看到彼此。因此,我们在两个实体内放置两个有绿植的中庭,连接屋子中的每个空间,希望由此增加家庭成员之间的互动。





















建筑师 : Creative Architects 地址 : Dĩ An, 越南 建筑面积 : 160.0 m2 项目年份 : 2017 摄影师 : Hiroyuki Oki
版权声明:本文内容由用户自行发布上传或投稿由设计芝士代为发布,版权归原作者所有,设计芝士不拥有其著作权,亦不承担相应法律责任。如果您发现本站中有涉嫌抄袭或侵权的内容,请点此提交工单进行举报,一经查实,本站将立刻删除涉嫌侵权内容。

