HEYTEA LAB是喜茶具有实验性质的复合功能空间,包含着喜茶对现代茶文化的多方探索。EDGE DESIGN希望打造出一个与长沙这座城市气质相符的沉浸空间,并在其中为东方禅意与实验先锋性融合寻得一个恰当的设计落点。
HEYTEA LAB is an experimental space with multiple functions for multi-exploration of modern tea culture. EDGE DESIGN wishes to create an immersive space that fits the urban spirit of Changsha and seek for a design habitat to combine both Eastern Zen and experiment pioneer.
▼室内一览,overall view of the interior
围棋是中国的珍宝国粹,是最具代表的传统文化符号。千古无同局。围棋对弈中,双方每一步精妙的落子都会让棋局产生变化,每一局棋都可以产生361x 种可能性。我们希望以「无限的可能性」作为切入点,让茶客与喜茶共同定义LAB店。每个茶客在进入店内时即成为偶然因素,与喜茶一起探索现代茶饮的呈现。
Go (Weiqi) is the quintessence in China and the most psentative traditional culture. No Go game has ever been played twice. On a Go board, each thoughtful move would bring changes to the game. Each game brings 361x types of possibilities. We go straight into the core of infinite possibilities and allow HEYTEA and its drinkers to define the LAB store. Every customer becomes a chance factor the moment they enter and together with HEYTEA, they explore the psentation of modern tea drink.
▼墙地面和家具上使用围棋元素,Go elements used on the furniture, walls and floors
空间的石材以有序的不锈钢线条进行切割,以此表现棋盘的特性。
The stone is cut to match the orderly stainless steels in the space, so as to psent the traits of a Go board.
▼不锈钢线条切割石材表现棋盘特性,check patterns created by stainless steel lines on the stone
茶客拾级而上,螺旋的楼梯间利用光线与镜像营造出虚实相映的画面;在座位区,棋子以镜面内凹及外凸的两种半球造型置于墙面。茶客在饮茶时,仿佛置身于纵横交错的棋局之中,明示每一位茶客是品茶者,亦是局中人。
As the tea drinkers walk up the stairs, the light beams and mirrors are creating a fictitious and realistic image along the spiral stairs. In the seating area, the concave and convex mirrors are mounted on the wall like stones on the Go board. When customers are drinking tea, they feel like in the vertically and horizontally adjacent stones, implying each tea taster is in the game.
▼虚实相映的楼梯, Stairs in a fictitious and realistic comparison
▼二楼座位区,seating area
▼座位区的镜面棋子,Mirror stones in the seating area
棋声花院闭,幡影石坛高。无意对茶与围棋的结合做过多的解构,我们试图还原茶与棋在我们日常中最真实亲和的场景,故将儿时小院闲谈,对弈品茶的画面带入室内:树倚闲亭,坐谈品茶,轻敲棋子,是非落定。
Only clicking sounds of placing stones are heard in the tranquil flower garden while the shadow of sutra streamers is casted on its tall stone base. Tea and Go are interpted a lot in ancient poems. We try to restore the most authentic and affectionate memory of tea and Go in our life, so we introduce the tea and go scenarios in the yard back from our childhood into the space – pavilion in the trees, chatting and tea drinking, placing stones on the board, and let it all settle.
▼二楼茶文化台 / 饮茶区, Culture station/tea drinking area on the 2nd floor
空间中大量运用麻石及实木,唤醒茶客回忆起庭院的氛围,细部的打磨透漏出质朴温厚的气息。
Granites and solid wood are greatly used to decorate the space so as to arouse the tea drinkers’ memory of yard life. The polishing of the details reveals the simple and unadorned atmosphere.
▼首层麻石造型吧台,Granite counter on the 1st floor
探索现代茶文化是喜茶发起的一道时代命题。在茶空间的呈现上,EDGE DESIGN 乐于发掘人与空间、传统与现代、解构与重现的链接点。茶客对空间的不同解读与思考,其中迸发出的灵感,是新式茶饮的可能性,也是构成现代茶文化的重要部分。
Exploring the modern tea culture is a proposition of time proposed by HEYTEA. To psent this tea space, EDGE DESIGN is interested in developing the links between people and space, tradition and modernism, deconstruction and reconstruction. Tea drinkers’ different interptation and thinking towards the space may inspire the possibilities of new tea drinking style, which is the crucial part of modern tea culture.
▼店面外观,shop front
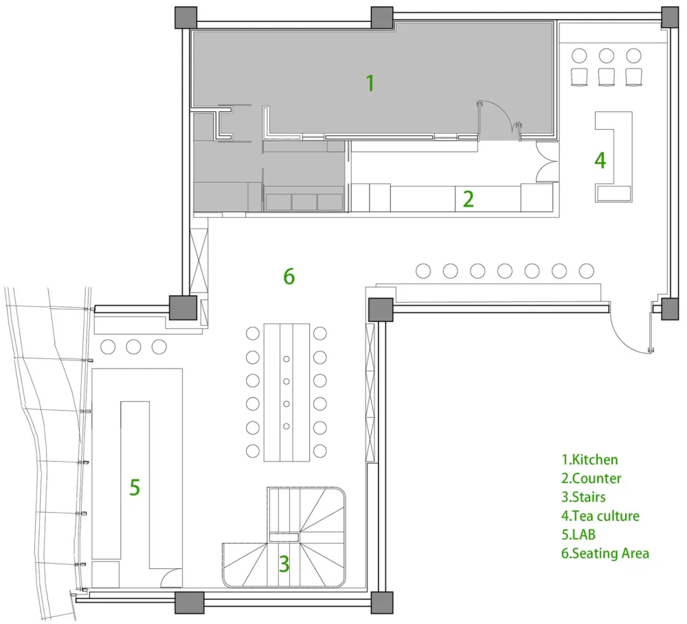
▼一层平面图,first floor plan
▼二层平面图,second floor plan
项目名称:喜茶长沙LAB店
设计方:有界设计
公司网站:www.edge-archi.com
联系邮箱:edge-design@foxmail.com
项目设计&完成年份:2019.03 / 2019.07
主创及设计团队:有界设计
项目地址:中国湖南长沙
建筑面积:312
摄影版权:聂晓聪
客户:喜茶
材料:麻石,乱纹拉丝不锈钢,木

