位于卡尔顿的利贡街,新桥Yakiniku是一家由皮尔斯·威德拉设计的当代日本餐厅。专门做日本烧烤的,这个名字翻译过来就是“烤肉”(yakiniku)和东京地区(Shinbashi)的组合。
从传统日本建筑的方面和细节编织在整个室内。一个带网格木条的照明白色酒吧悬挂在上方,形成了空间的焦点。
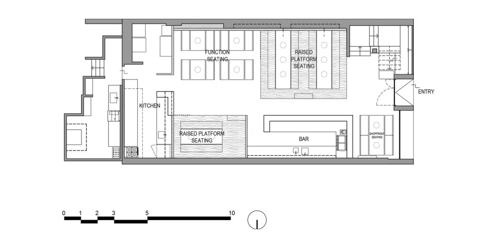
玻璃砖墙充当两个大型宴会桌之间的分隔物,周围环绕着u型内置木凳。其他的座位选择包括客人坐在地板垫子上的传统矮桌,以及在凹坑区域有长凳座位的小桌子。升高的座位平台覆盖着深色木材,照亮了轮廓,创造了一个盘旋的错觉。
桌子上有内置的烧烤架,供顾客自己动手做饭,在整个设计过程中始终关注食物。拉丝铜棒,竹子的当代诠释,被用作屏风,定义和分隔餐厅内的各种空间。
低垂的吊灯创造了一种氛围,并进一步加强了被照亮的酒吧,这是突出的和地面的空间没有压倒。
皮尔斯·威德拉的设计融合了建筑风格,将日本传统建筑融入澳大利亚本土。内部是创新的,同时保持对传统和文化的尊重,推动餐厅。
▼平面图
项目名称:SHINBASHI RESTAURANT
项目地点:墨尔本

