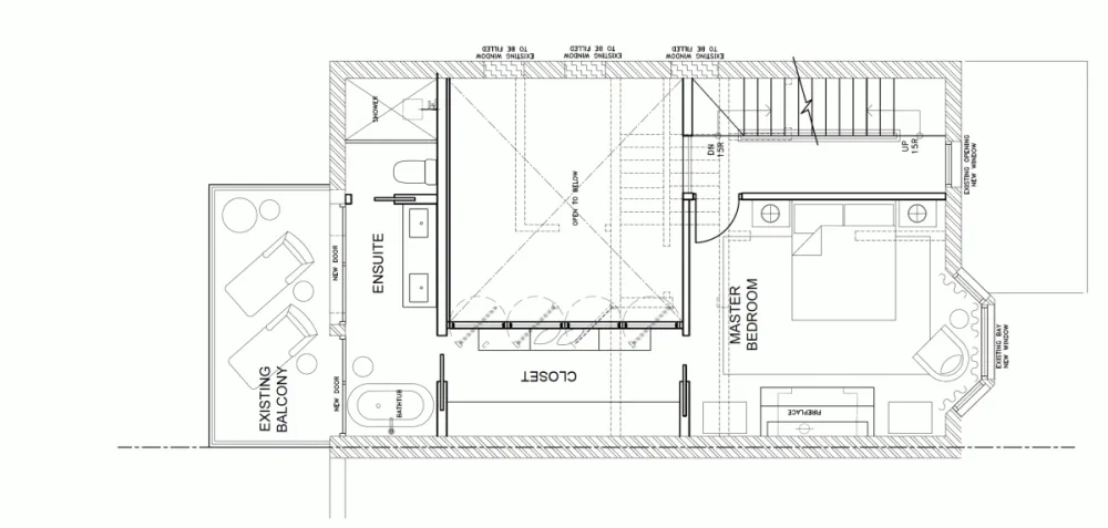
加拿大公司Ancerl Studio在多伦多翻新了这所房子,用白色的砖墙、饱经风霜的木梁和黑色的钢窗组成了一个整体。Euclid Residence改造的目的是现代化的20世纪早期的财产,同时保留的元素,暗示其历史,也提供了足够的空间招待客人。












客户的要求是创造一个明亮和新鲜的当代环境。它必须是现代的,但又温暖和诱人的,以讲故事的设计细节为特色。为了做到这一点,工作室研究了20世纪早期的原始底板,并扪心自问什么值得保存,什么需要进化。









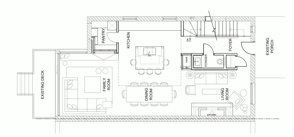
加拿大公司Ancerl Studio在多伦多翻新了这所房子,用白色的砖墙、饱经风霜的木梁和黑色的钢窗组成了一个整体。Euclid Residence改造的目的是现代化的20世纪早期的财产,同时保留的元素,暗示其历史,也提供了足够的空间招待客人。












客户的要求是创造一个明亮和新鲜的当代环境。它必须是现代的,但又温暖和诱人的,以讲故事的设计细节为特色。为了做到这一点,工作室研究了20世纪早期的原始底板,并扪心自问什么值得保存,什么需要进化。









之前
