“往夕STUDIO”是一家独立服装设计师品牌店,空间设计起源于“服装”,更应该是“面料”带给我们的那种卷曲与自由,和那种难以言说的丰富触感。
设计以“面料”为出发点,从形态到材料,借此来塑造空间与服装品牌的一致性。服装是人的表情,愿这个新空间可以成为“往夕”的表情。
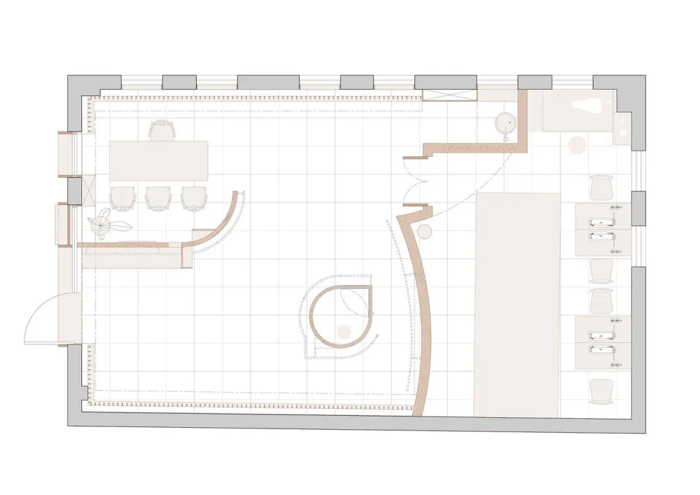
整个空间在功能上依据使用需求,分为五个部分:服装工作间、会客茶歇、盥洗区、试衣间、主展示区。
服装工作间为师傅工作的区域,噪音较大,因此将他设置在空间最隐蔽的区域,但它又是为整个工作室提供“能量”的场所,我们认为他应该拥有更多的“表情”来暗示自身这种隐藏的张力,同时这些”表情“也会构成展示空间的一部分。
盥洗区作为空间的配套,被塞在夹缝之中,它是这个空间的“兜儿”。
展示区域被“空间的裙摆”笼罩,以加强它自身的整体性,墙身上部分下沿卷起,露出下半部分的格栅,像少女掀起裙角,它也是服装展示的背景。
试衣间正对空间主入口,一反常规。我们认为对于独立设计师品牌来说,更衣是一个非常重要的环节,是一种仪式感。它承载着“之前”与“之后”中不可或缺,无法替代的功能,像一个魔术地带,是品牌的中转站,传递着品牌的性格与姿态。
会客茶歇为半封闭空间,半高的弧面矮墙使之与展示区域局部分隔,一侧开放,同时墙面的长条窗洞处理使茶歇与空间主入口保持视觉上的联系:半卷珠帘是为谁举杯敬“往夕”。
室内设计:帕姆建筑
项目位置:北京,中国
主创设计:米强强
设计团队:张盛楠、施魏、陈俊龙
建筑面积:81.0 平方米
项目年份:2019
驻场设计:张盛楠
施工负责:齐豫、付晨阳
照明顾问:锐通恒照明
译文:Tiny Tina
业主:往夕Studio

