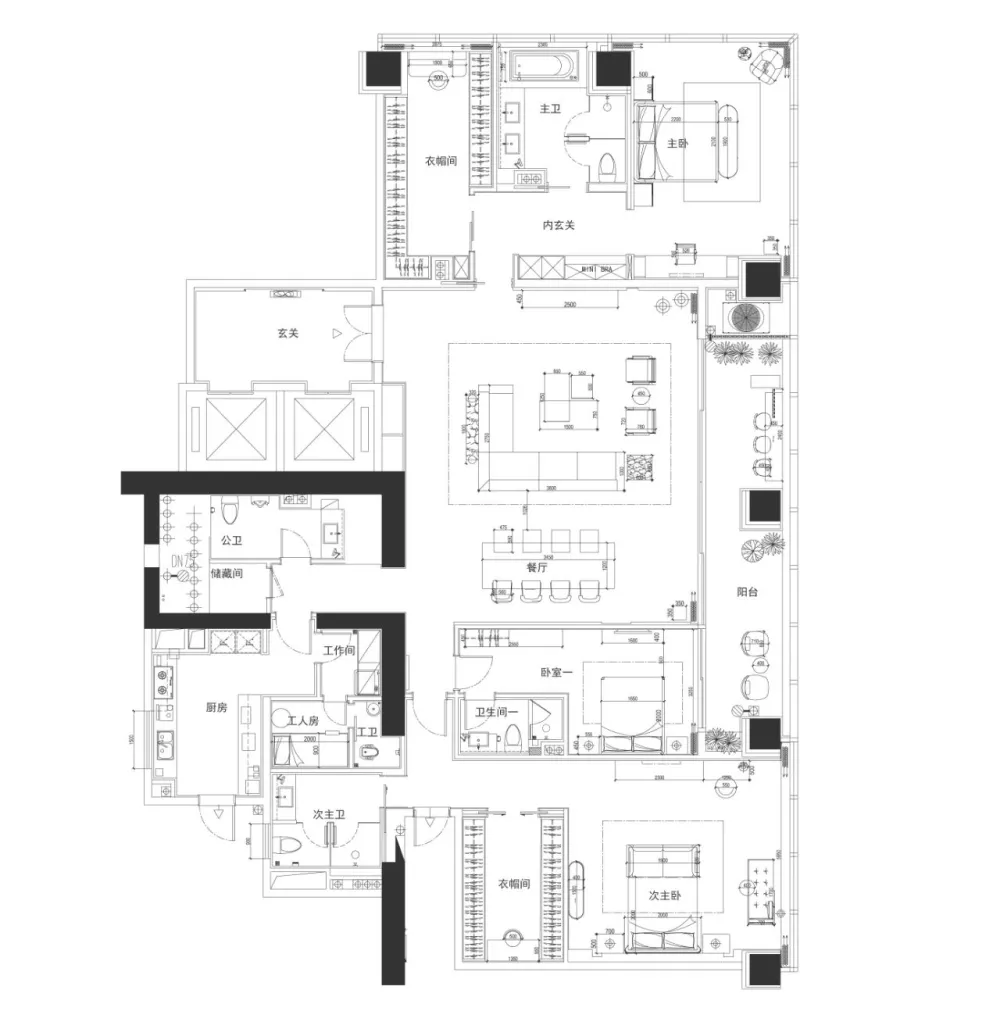
「侨城一号」是以一栋260米超高层建筑,打造了一座集高端居住、生态办公、Box、商业为一体的独立垂直综合体。
美轮美奂的建筑设计风格,带你走进这座用雕塑语言塑造的SKY CENTER,体验一种视觉和艺术上的精神享受!
侨城一号由香港著名设计师梁志天及梁景华为首的大师团队潜心研造。
艺术、建筑与生活在这里融合地恰到好处。极致匠心成就耀世臻品,侨城一号以光影见天地,借细节彰永恒。
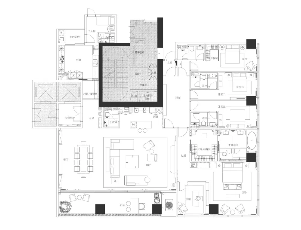
「侨城一号」是以一栋260米超高层建筑,打造了一座集高端居住、生态办公、Box、商业为一体的独立垂直综合体。
美轮美奂的建筑设计风格,带你走进这座用雕塑语言塑造的SKY CENTER,体验一种视觉和艺术上的精神享受!
侨城一号由香港著名设计师梁志天及梁景华为首的大师团队潜心研造。
艺术、建筑与生活在这里融合地恰到好处。极致匠心成就耀世臻品,侨城一号以光影见天地,借细节彰永恒。
之前
