只因I打造快时尚行业引领下的办公空间
二狼狐轩原创快时尚男装品牌成立于2006年,是一家集研发/生产/销售于一体的智能化数据管理新零售模式服装企业。为打造有时尚态度的产品,2014年将设计研发中心设立于广州,并于2018年成立广州瀚鼎品牌管理有限公司。
 
 
作为一个快时尚迅猛发展的产业链,为了迎合不断增长的业务需求,瀚鼎品牌决定将公司地址佘定于广州渔人码头商墅LOFT54。
 
 
 
 
 
 
整个办公空间的目标旨在营造一个快时尚的社交环境,使员工、合作伙伴以及经销商三者之间的关系能够达到最佳融合。在设计方案确定之初,设计团队就以“轻、新、简”这三个关键词作为新办公空间的设计原则,突出快时尚品牌的年轻、新颖、时尚、活力特征。
为了保持空间的松弛关系,打破传统办公区的概念。设计师以少即是多的设计手法,简化空间的界定造型,形成视觉上流动与穿透延伸的感受,使整个空间简洁明朗,张弛有度。
与服装业态相映成趣的剪裁思维植入,形成具有高识别性的趣味空间,营造出和谐统一的服装行业办公空间。
 
 
 
 
 
 
 
 
 
 
由大理石材质和跳脱的橙色组成的吧台,和零碎空间组成的休闲会客区,营造视觉上的交互和流动感,让空间不再冰冷。
打破人们对办公室固有思维,办公空间并不只有模式化的格子间和电脑,它终究是以人为本的。我们希望这个空间不仅能让人享受办公的乐趣,也能为每个人提供一个与心灵对话和沉淀自我的所在。
 
 
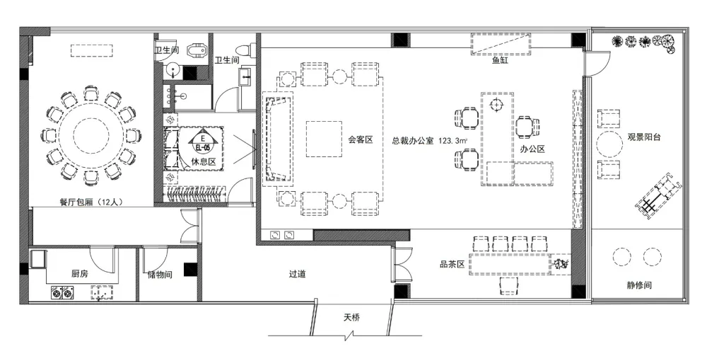
三楼的总裁办公室拥有相对独立的空间,中部与之链接的走廊让工作变得更加高效。
总裁办公室是一个企业的核心,如何在新开拓的市场中传递企业的核心精神,这是发展企业时常思考的问题。设计师的设计开始于对瀚鼎品牌的研究,通过最具代表性的品牌元素巧妙的融入到空间中,造就完整的品牌旅程,凸显品牌精神。
 
 
总裁办公室的材质以大理石为主,似是办公区的延续,又似是总裁办公室的起点。
 
 
 
 
 
 
会客区以大理石色为基色,代表瀚鼎品牌的蓝色为主,金色为辅。橙黄点缀,冷暖相撞,端庄又不失活力。
茶几、雕塑鹤和挂饰形成三点构图,三角关系突出亮点,使空间更具层次感。地毯采用水波纹路,延用蓝色,搭配茶几镜面材质,营造出水波粼粼的倒影。
 
 
 
 
 
 
办公区作为整个空间的重点区域,背景以交错规整柜格的置顶大书柜体现庄重感。精致金色锦鲤壁挂寓意如鱼得水体现灵动,下配以石山装置,丰富空间的艺术感。
办公桌的设计庄重而不呆沉,熏橙色副位椅活跃空间氛围,恰好是其区域与会客区的过渡和衔接点。
 
 
 
 
 
 
 
 
 
 
茶室区则以浅色为主,化繁为简,禅意悠远。大片亚麻浅灰窗帘,烘托出静谧之感。沉稳的描金黑色茶桌加大理石,点缀意境辽远的迎客松摆件。
开敞通透的格局,看似不经意的搭配,实则临摹出一派闲适自在。
 
 
通过办公区后的门来到阳台,透过建筑的玻璃幕墙看出去,一览江对岸广州立体的城市天际线。两椅一几,草蒲香薰,从简设计,恰到好处极好。
 
 
 
 
 
 
移至餐厅,吊顶与餐桌相对而生,以圆弧呈现,一派包容与充满凝聚力的气息自此而生。透过玻璃窗幕,斑驳朦胧的日光洒在餐桌上。橙色的花艺在此时特别抢眼,搭配水波形挂饰,和时尚水晶吊灯,烘托出强烈的欢悦感。
以窗外的美景做荧幕,空间为舞台,一日三餐都会变成一次次美轮美奂、清新脱俗的演绎。
 
 
 
 
卧室位于办公区与餐厅之间,干净、简洁的卧室,可以让忙碌一天的心灵得到实质性地放松。宁静恰意,以无声胜有声。
作为空间组成的一部分,软装是设计的符号,也是设计文化与生活的对接。在这个特殊的时代,特殊的地方,我们也希望打破生活与办公的界限,结合艺术的语言塑造一个感性又充满力量的办公空间,使每一个人在其中、又超然物外。使办公室承托的不仅是生活和工作的激情,更有勃发的生命力量。
 
 
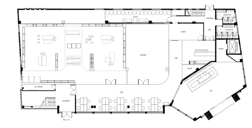
△一层办公区平面图
 
 
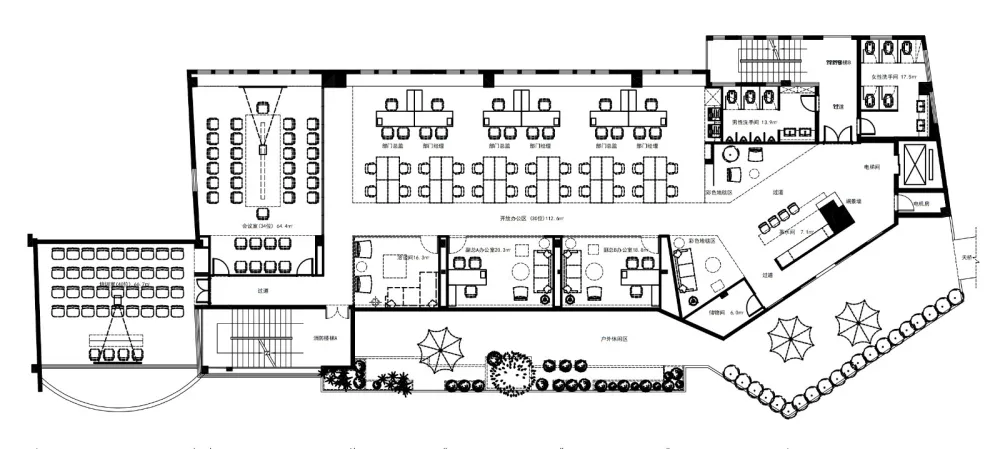
△二层办公区平面图
 
 
△三层办公区平面图
 
 
△三层总裁办公室平面图
 
 
Name | 项目名称:
广州瀚鼎品牌办公空间
Location | 项目地点:
GuangZhou,China | 中国广州
Area | 项目面积:
3000㎡
Client | 项目业主:
广州瀚鼎品牌管理有限公司
Date | 完成时间:
8.2019 | 2019年8月
Interior Design | 主案设计:
蒋成(JASON) | ZHIYIN只因设计
Cooperative Design | 协作设计:
RDG&BDG | ZHIYIN只因设计
Photographer | 摄影
林仕锦(LYNN) | ZHIYIN只因设计


