当今社会,科技急剧发展,工作已然成为人们生活中不可或缺的重要的组成部分,人们的大部分时间基本都是在工作中度过的,然而什么样的工作空间可以让你心甘情愿的把自己的生命消耗在工作里面呢?是工作环境让你感受到无比自由、可以最大程度激发你的无尽创意?是合作团队的相互信任密切协作,可以放肆自由的彼此思想交融?还是它可以传递出像家一样的信息,让你倍感温暖享受而流连忘返呢?
With the rapid evolvement of technologies, working has become an essential part of people’s life. People spend most of their time at work, but in what kind of workspaces are you willing to live your life? Does the workspace make you feel free and helps unlock your creativity to the greatest extent? Does the mutual trust and close collaboration within the team allow full exchange of ideas? Or does the workspace feel like home, with warmth and enjoyment that retain you?
▼项目入口空间一览,overall view of the entrance space of the project ©孙翔宇
办公空间是服务于人的,人是需要被考虑和被关注的中心。环境的优劣对人的身体和心灵都会造成影响,空间的好坏同时也影响着人们的工作效率、行为活力以及创造力的激发。这就使得设计者需要细致入微的考虑到人对空间的心理感受以及他们所处的每一处空间对于他们的具体影响。
本着以人为本的设计理念,设计师陈贻、张睦晨在设计广联ICC云中心时,极力为这个以大数据、物联网+、人工智能和文化创意为主要扶持方向的企业孵化服务平台,也是云办公技术和云办公应用的实验性场所营造出自由开放、动态灵活且人性十足的办公空间感受。其核心的目的就是要发挥出空间使用的最大价值,为高科技领域新兴的创业者提供一处既能激发创意灵感又能增强创造性思维、高效融合且能量充盈,同时又具备像家一样让你倍感放松享受的工作环境。
▼前台,reception ©孙翔宇
设计师通过对建筑空间艺术性的营造,充分的体现出对企业社群的人文关怀,实现着现代办公形态的弹性转变以及跨平台协同性的灵活转换。整个空间以顶部造型为视觉重心,以“云”为主题展开空间体验模式,以参数化的设计手法让整个空间产生宏大气势,气息流畅延展且生动扩张;让空间形成类似生命体的呼吸过程以及云气的涌动形态变化。生命气息的呼进呼出,形体的起起伏伏,让空间充满生机与灵性。
By optimizing the building space from an artistic view, the designers fully demonstrate their humanistic care for the corporate community, enabling the flexible transformation of modern office patterns and cross-platform synergy. The ceiling is the visual focus of the whole space, and cloud is the theme for spatial experience, with parametric design to create a magnificent, smooth and vivid space. In this way, it creates a dynamic space that acts like a fluid body reminiscent of the respiration of living organisms and ever-changing forms of clouds. The respiration and changes of forms add vitality and dynamism to the space.
▼空间顶部起伏的“云”造型,cloud shaped ceiling ©孙翔宇
“云”的呼吸以起伏涌动的方式从二层的开放式办公区开始向咖啡吧服务区域震荡扩散,于大堂的挑空处形成流动的起伏高潮,三组流动的“云”造型从10米的高空蓄势涌动而下,起伏有致的贯穿和影响着整个空间场域,释放出多维度的空间感受和极具张力的空间秩序。
The breathing of “clouds” spads from the open office area on the second floor to the coffee bar service area, forming a climax in the ceiling of the lobby. Three groups of “clouds” flow from 10 meters high, connecting and influencing the entire space in a disproportioned yet orderly way.
▼“云”造型的屋顶从二层开放办公区向外扩散,the cloud shaped ceiling spads from the open office area on the second floor ©孙翔宇
整体空间保持原木色主调性,运用深灰色的冷酷钢材进行对比和碰撞。木质的自然温暖感受和金属质感的工业化特征相结合形成强烈的对比和冲突;木质为皮肤,钢构为骨架。设计师巧妙的将现代感与舒适性并置在一起,传达出更综合的心理感受和情感影响力。
The overall palette is dominated by the natural color of wood, which is contrasted by dark gray cold steel. The natural warmth of wood and the industrial touch of metal create a strong contrast and conflict. Wood serves as the skin and steel is the skeleton. The designers cleverly combine modernity with comfort to convey a more comphensive psychological and emotional impact.
▼天花细部,木材与钢材碰撞,details of the ceiling with contrast between wood and steel ©孙翔宇
首层及二层作为整栋写字楼的共享服务空间,提供了展示交互中心、多功能路演空间、自由开放办公区、独立会议室、商务洽谈室、共享阅读分享区以及咖啡吧、书吧等多种共享功能区域,这种共享多元化的社交空间促进和激活了整个办公大楼的活力以及人们的交流汇聚氛围,让空间成为功能与人性、创意与科技、工作与休闲、个性化与多元化相结合的复合型交流场所,真正为那些具有创造性的新一代年轻企业团队带来更多的空间使用可能性。
▼大堂接待区,reception area in the lobby ©孙翔宇
▼电梯厅,elevator hall ©孙翔宇
设计师通过虚与实的形态构造让空间产生“云”一般涌动的情绪和情感导向,让每一位使用者都能在空间中感受到来自精神层面的沟通与对话。空间层次的复合营造、放松享受的工作环境,也让使用者产生出既安然又激荡的心理感受,在备受人文关怀的同时也激发出人们对于工作的热情,从而认同自我价值,顺应内心的真实感受,实现快乐办公的真正目的。
Combining virtual and real forms, the designers create an emotional orientation that flows like the clouds, so that every user can experience the space through spiritual communication and dialogue. The multi-layered structure and relaxing working environment also make users feel safe and inspired. In addition to humanistic concern, it also unlocks people’s enthusiasm for work, enabling them to identify with their self-value, follow their real feelings and work happily.
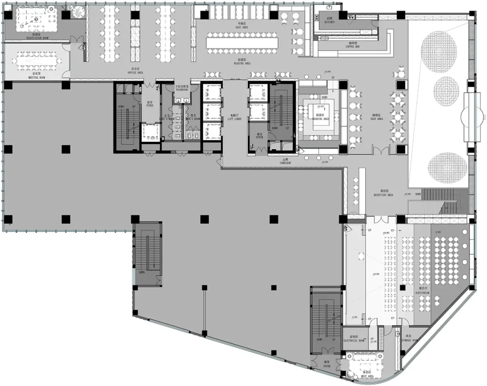
▼平面图
项目名称:广联ICC云中心
副标题:流动的“云”办公
设计公司:风合睦晨空间设计
设计师:陈贻 张睦晨
项目地址:河北保定
项目面积:2400平米
项目完成时间:2019年05月
撰文:陈贻
摄影、摄像:孙翔宇
主要材料:白橡木饰面板、白橡木木地板、黑色氟碳喷涂金属网、黑色氟碳喷涂钢板、云多拉灰石材、水泥肌理漆

