该项目的任务是重新配置一处独栋住宅的室内空间,地址位于蒙特利尔乌特蒙地区近郊。为这座20世纪60年代的住宅提出一种全新的开放式布局,并重新规划一楼及以上空间。在整个项目中,对现有建筑给予特别关注,以突出其原有特色,促进新旧元素之间的和谐。
▼住宅外观,the exterior
 
APPAREIL Architecture was tasked with reconfiguring the interior of a single-family home located in Montreal’s Outremont neighborhood. The approach put forth for this 1960s-residence promoted an open layout and rethought the spaces on the ground floor and upper level. Throughout the project, particular attention was given to the existing building to highlight its original character and foster harmony between old and new elements.
▼入口处,the entrance
 
▼室内空间,the interior
 
这座前卫的住宅以其非典型的外观与其邻近的住宅区别开来。由建筑师Jean Ouellet设计,它由倾斜的立面组成,其相互作用最大化地使得光线投入。项目初始阶段即重新审视了原始平面,移除一层隔断,使连续视线直抵后院。消除房间之间的门槛,允许更多流畅的活动出现,为空间创造一种和谐的互动。此外,一个大型的大理石制中央厨房,鼓励聚会,为家庭营造温馨的氛围。
The avant-garde residence distinguishes itself from its immediate neighbours by its atypical shape. Designed by the architect Jean Ouellet, it is comprised of angled facades whose interplay maximizes the influx of light. The initial phase of the project revisited the layout plan to remove the ground floor’s partitions, thus allowing a constant view on the backyard. Erasing the thresholds between rooms allows for more fluid movement throughout the house, and creates a harmonious interplay between the spaces. Further to this opening, a large marble kitchen island encourages gatherings and lends a welcoming atmosphere to the home.
▼通透的视线穿过后院,a constant view on the backyard
 
 
 
 
在不同的层面上,住宅的材料与现有建筑融为一体,并回归到已有的各种聚合体中。整个项目强调对细节和饰面的关注,这两者通过微妙的组合达到最终实现。房间如同一片织锦,肌理由大理石、水磨石、石板、石头等共同组成。与这些矿物元素相比,柚木家具和黄铜灯具为空间赋予了温暖色彩。木材的加入产生微妙的回音,平衡了新旧元素之间的关系。
▼卧室,bedroom
 
 
Throughout the different levels, the house’s materials harmonize themselves with the existing architecture and harken back to the various aggregates already psent. The entirety of the project emphasizes attention to detail and finish, both of which are brought to the forefront through a delicate composition. The rooms are composed of a harmony of textures, where marble, terrazzo, slate, stone, etc. coexist. In contrast to these mineral elements, the teak furniture and brass light fixtures bring warmth to the space. The addition of wood produces a subtle echo which balances the relationship between old and new elements.
▼柚木家具和黄铜灯具,the teak furniture and brass light fixtures bring warmth to the space
 
▼肌理,the texture
 
▼天然石材饰面,the mineral elements
 
总的来说,设计手法适当地尊重了现有建筑,同时赋予空间现代感,使其更加实用和受欢迎。该项目展示了一系列天然材料,由当地工匠精心制作完成。从中产生了一组优雅的标志,由多种元素创造出的一个既连贯又独具特色的整体。
Combined, the interventions managed to honor the existing architecture while modernizing the space to make it more functional and welcoming. The project showcases an ensemble of natural materials which are the result of local artisans meticulous work. From this emanates an elegant signature, where the various elements used create a whole at once coherent and unique.
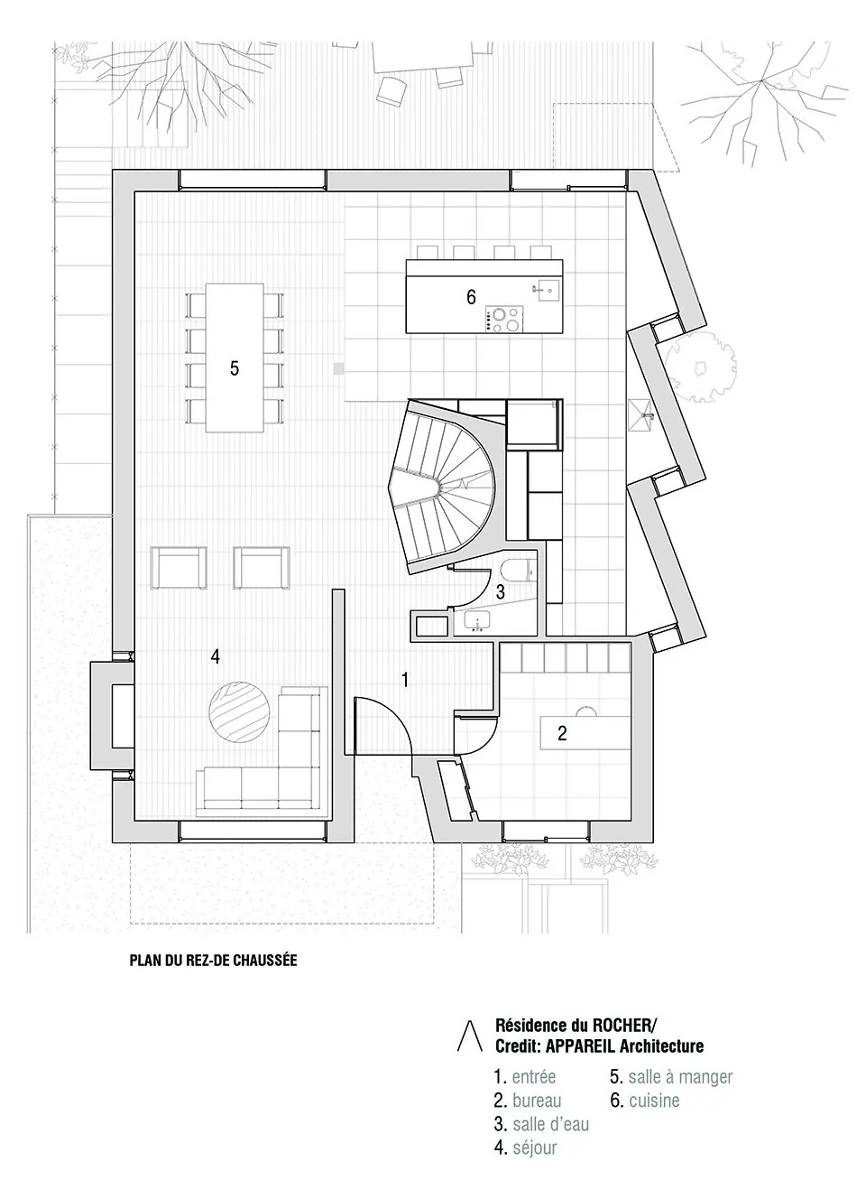
▼底层平面图,the ground floor plan
 
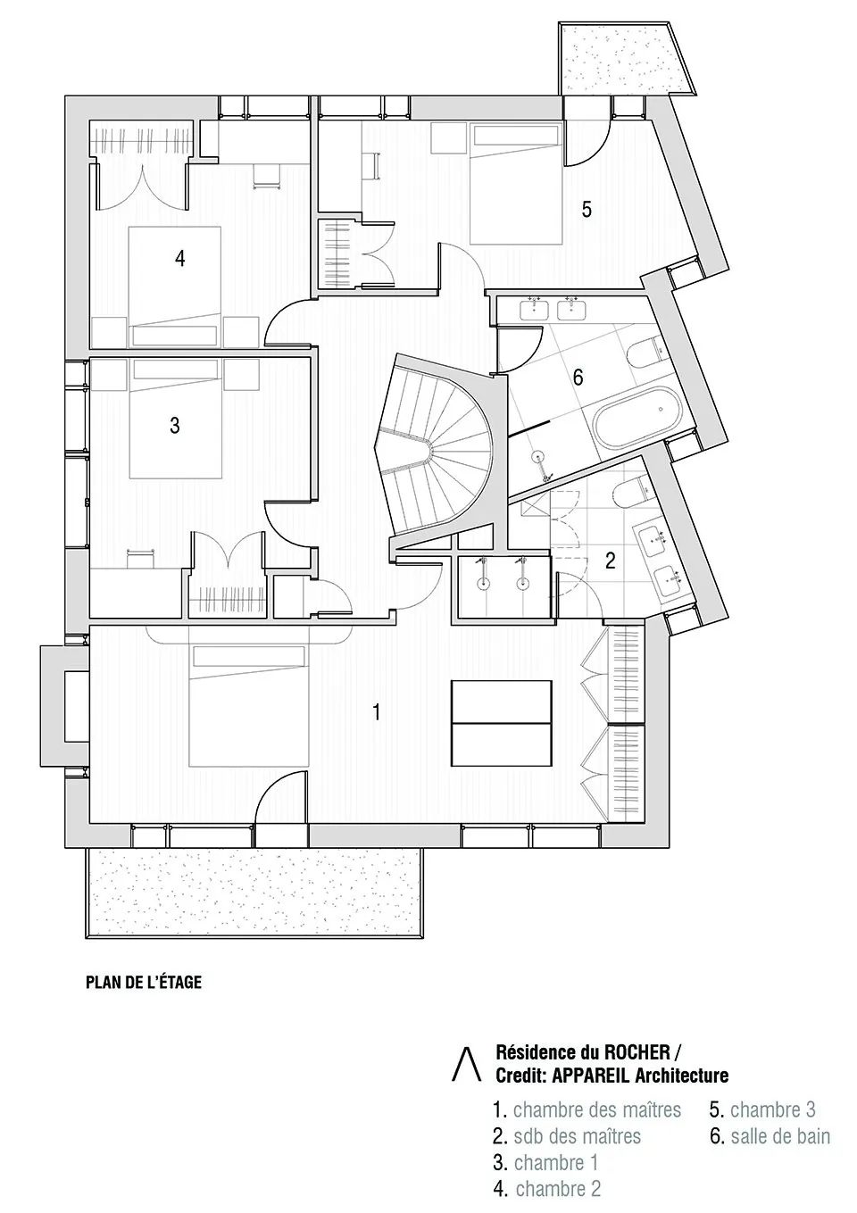
▼上层平面图,the first floor plan
 
Architecte: APPAREIL Architecture
Light design: Hamster
Cabinetmaker: Ébénisterie CST Enr, Steve Tousignant
Table and chairs: Kastella
Stools Floe : APPAREIL Atelier
Photograph : Félix Michaud

