感谢来自 ONE-CU壹方设计 的复式样板房项目案例分享:
万科 : 兼顾现代时尚与艺术人文的顶级复式
伴随着日常消费升级渗透到高端居住领域,建筑的美学风格、空间的设计装饰以及细节配套服务,正在成为高净值人群的重要置业考量。
在此背景下,壹方设计从场域的天然优势和建筑的改造潜力出发,为空间置入了一个兼具现代时尚与东方人文的生活场景,创造出专属于在地环境的独有居住记忆。
∇ 客厅

艺术与人居融合
项目地块毗邻浐灞生态区,景观资源及生态环境优良,周边教育商业配套相对齐全。设计着眼于城市新中产的居住升级需求,力求给予客户超值期待的高品质生活。为此在方案施行中依循现代东方的设计理念,让空间具备最大限度的时尚感和品位度。
∇ 客厅


木质与黑钢构筑的挑空书架墙,以不可量度的气势贯通一层的客餐厅,成为最大的视觉停留点。书架背面为镂空的钢拉网,使得楼梯与客厅之间形成隐约的视觉互动。墙面及天花以精致的古铜色金属构件和木作造型艺术加以装饰,让整个空间更具时尚气息和柔性触感。
∇ 客厅一隅

∇ 客厅细节


∇ 餐厅


∇ 餐厅细节

留下时间的记忆
本案虽为复式产品但尺度却并不大,因此在确保各功能区高效布局的同时,设计上亦将每个公共空间的亮点做足。木材携带天然的纹理依附于线条流利的家具造型上,大理石也以时光打磨的质感化作简约凝练的饰面形塑空间意境。加之不锈钢、墙纸、夹丝玻璃等材质的合理比例搭配,催生出层层渲染下的场景故事想象。
∇ 夹层




∇ 影音室

一幅幅极具视觉张力的装饰画作为线索,串联起卧室、客厅、夹层和地下室在内的整个空间叙事,既有抽象笔触勾勒的艺术提炼,也有影像式的写实还原。它们与其他陈设艺术藏品交叠排列,仿佛年轮循环反复,在未来的生活中留下时间的记忆。
∇ 地下室


∇ 地下室家庭娱乐空间

∇ 地下室

∇ 地下室

∇ 地下室

∇ 地下室细节

空间由此成为一个背景或容器,以内在的层次感搭建视觉与环境的相互对话。点缀其间的物件将随着生活而不断更新,为这场对话丰富更多情节。这个家与主人一起成长,留下生活的可能痕迹,也接纳个性的最大释放。
∇ 主卧

∇ 主卧

∇ 主卧配饰

∇ 儿童房

∇ 儿童房

∇ 老人房

∇ 老人房

∇ 卫生间

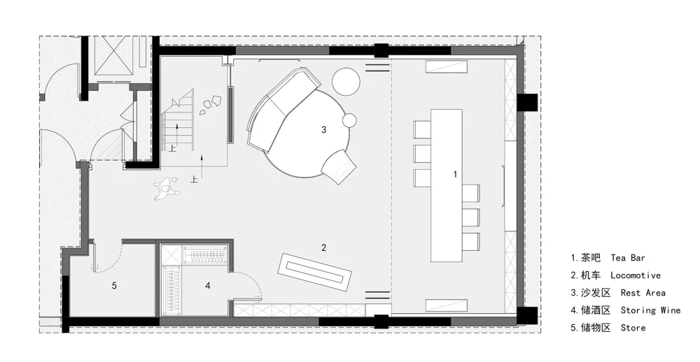
∇ 地下夹层平面布置图

∇ 地下一层平面布置图

∇ 二层平面布置图

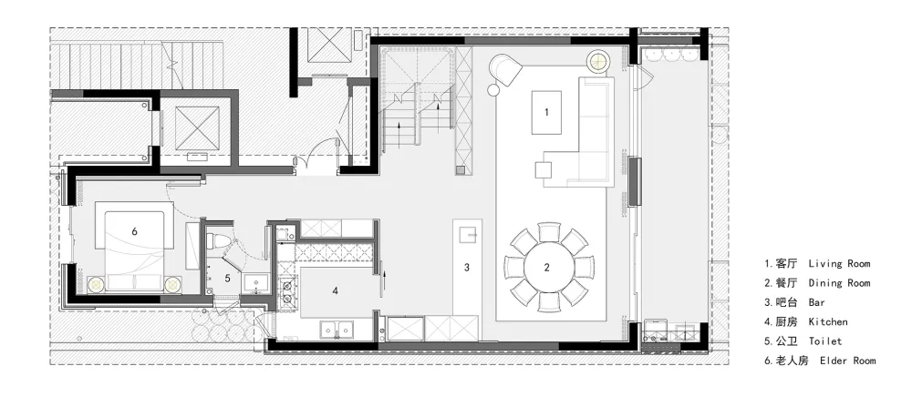
∇ 一层平面布置图

完整项目信息
项目名称:万科悦湾复式洋房项目
设计公司:ONE-CU壹方设计
联系邮箱:[email protected]
完成年份:2019年6月
软装设计及执行:ONE-CU壹方设计
项目地址:西安.浐灞
摄影:释象万合
特别鸣谢:西安万科

