“这座位于德克萨斯州奥斯汀市的小房子,结合了纯粹的现代主义风格,结合了当地的当地方言,在德克萨斯州的农村地区发现了谷仓和马厩等老化建筑。雪松墙板、裸露的木和钢框架,以及钢窗-都是手工编织的美感,而装饰不那么细腻的细节、大窗户和干净朴素的线条都是对现代主义的尊重。”
“This small home in Austin, TX combines pure Modernism with a regional vernacular referencing aging structures such as barns and stables found throughout rural Texas. Cedar siding, exposed wood and steel framing, and steel windows imbibe the home with a hand wrought aesthetic, while trim-less details, large windows and clean unadorned lines pay respect to Modernism.
© Amanda Kirkpatrick
阿曼达·柯克帕特里克
花园街的手工楼梯是用钢板、膨胀的金属和再生的长叶松树在现场建造的。窗户的钢框架是在距建筑工地两英里的地方制造的,并在奥斯汀南部涂上了粉末。将剩馀的钢制成基座台面和入口台。混凝土板为底层裸露,舌槽框架材为上层铺装层和成品层。审美追求的是建筑的典雅、高效和隐蔽的粗糙。
The handmade staircase at Garden Street was constructed onsite from plate steel, expanded metal and reclaimed long leaf pine. The steel frames for the windows were fabricated two miles from the construction site and powder coated in South Austin. Leftover steel was fabricated into pedestal sink tables and an entry table. The concrete slab was left bare for the lower floor and tongue and groove framing lumber serves as the decking and the finished floor for the upper level. The aesthetic strives to celebrate the elegance, efficiency, and oft hidden roughness of construction.
© Amanda Kirkpatrick
阿曼达·柯克帕特里克
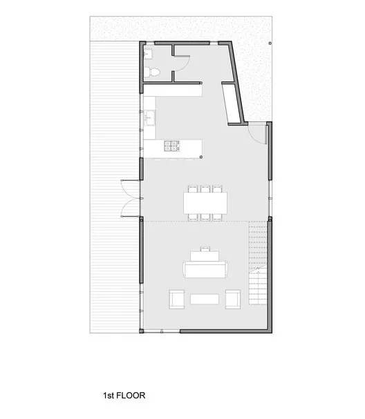
Floor Plan
室内设计集中在装饰空间,以与空间设计一样的简洁的方式。因此,颜色托盘被选择为丰富和深刻,添加的元素将是最小的。圆叶植物软化空间,而书籍和小饰品在开放式书架上提供色彩的目的。
The interior design concentrated on adorning the space in the same simple and clean way that the space was designed. As such, a color pallet was chosen to be rich and deep and added elements would be minimal. Round leaf plants soften the spaces while books and trinkets on open shelving provide color with purpose.
© Amanda Kirkpatrick
阿曼达·柯克帕特里克
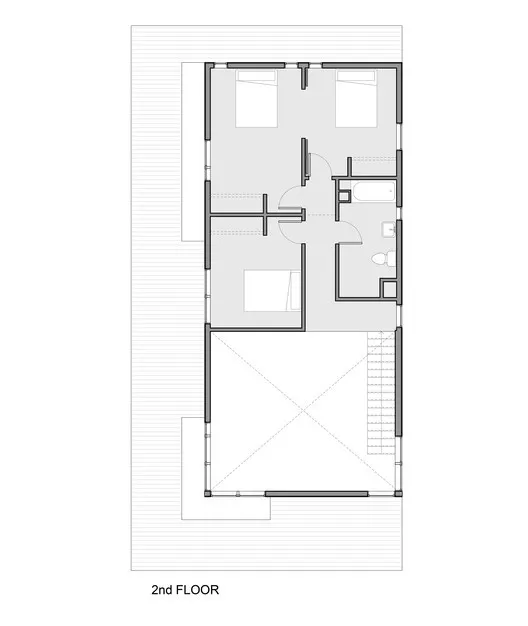
Floor Plan
室内空间让人想起纽约的一个工业阁楼,它的外观让人想起了德克萨斯山乡村牧场的乡村建筑,以及来自世界各地的装饰带来的色彩。身为业主、建筑师和建筑工人是一项艰巨的任务,但辛勤工作的回报是显而易见的,在这座位于奥斯汀东部的漂亮住宅里,结果也说明了这一点。“
The interior spaces are reminiscent of a industrial loft in New York, the exterior brings to mind the rustic structures of ranching the Texas Hill Country and the furnishing brings in color from around the world. Being the owner, architect and builder is a trying task but the rewards for the hard work are clear and results speak for themselves in this beautiful home in East Austin.”
© Amanda Kirkpatrick
阿曼达·柯克帕特里克
Architects Pavonetti Architecture
Location Austin, United States
Category Houses
Architect in Charge Shane Pavonetti
Project Year 2014
Photographs Amanda Kirkpatrick

