居于蓝湖上,无处惹尘埃。
本案女业主范姐是一位资深驴友,比起恢弘壮观的古建筑、色彩斑斓的人文景观,她更喜欢大自然里那一泓静谧的蓝色湖水。范姐说:“那种蓝色的湖水,纯净地让人内心深处产生巨大的震撼。”
范姐的家,整个空间以低调的原木色和浅灰色为主色调,简洁而质朴,颇有侘寂之风。装修用材皆选取大方简洁的风格,保持一种自然本真的味道。
因为范姐一家都对蓝色情有独钟,所以在整个案例中,采用了大量蓝色的细节,画龙点睛。
设计师的初心,是让范姐居于家中,也能感受到自己挚爱的湖水那种纯洁和自然。
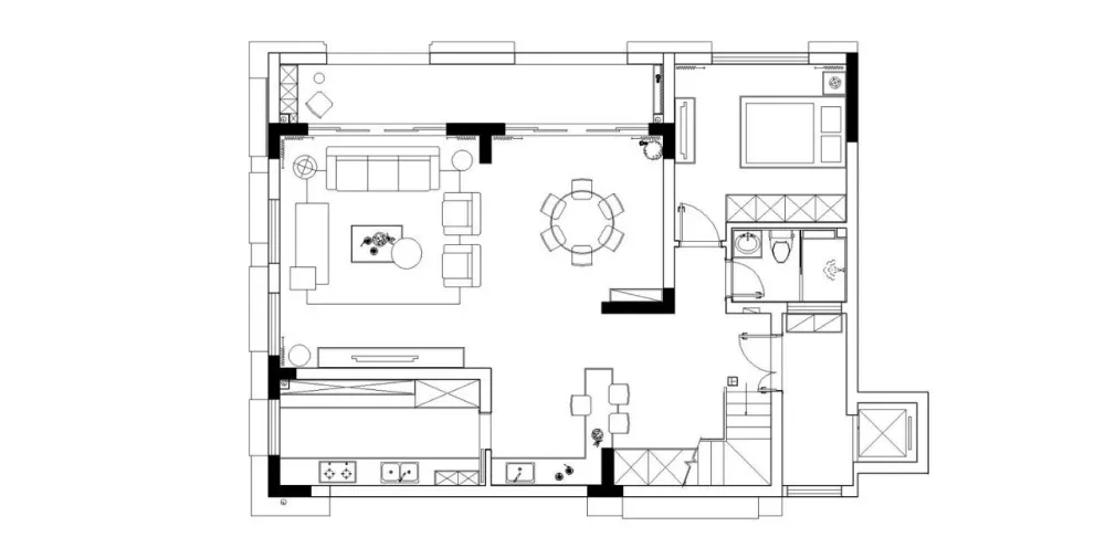
门厅采用自然纹理的墙砖和地砖,天然无瑕,一把造型独特的蓝色椅子增添几许趣味。范姐家的小阿拉斯加常常在这等着主任归家,一静一动,让整个空间在空灵中不失鲜活。
客厅运用了大面积的原木色家具,从地毯到沙发,都是不过分修饰、不过分渲染的天然本色,让整个空间显得静谧温柔。但朱红色的摆台、清透的红花瓶,却又悄然之间注入无无限的生机和活力。暖橘色的新中式立式台灯位于客厅一隅,既装点得整个房间充满温情,又不喧宾夺主,巧妙无比。三面落地窗外的绿色生机盎然,投射到客厅里来,整个房间仿佛都置于鸟语花香之中。
半透明的蓝色高脚椅充满朦胧空灵的美感,范姐说:“坐在这里,仿佛有一种坐在泸沽湖边的错觉。”
原木色的墙壁加上四把雾蓝色的皮椅,这安静的场景仿佛来自莫奈的画里,散发着澄澈的质感,让整个家都熠熠生辉。蓝色的装饰画又不失活泼,与蓝椅子交相呼应。一束雏菊开在雅致的黑釉花瓶里,端庄却又机灵,像极了范姐的个性。
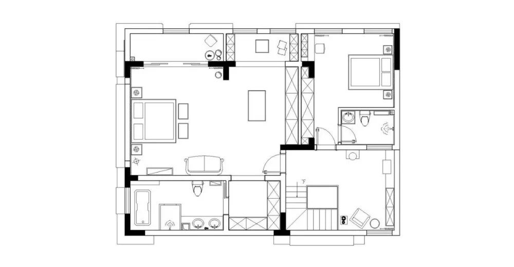
卧室仍然以原木色为基调,辅以干净整洁的大色块寝具,打造温馨自然的睡眠环境。清冷干净的月光夜夜从如水的蓝色窗帘投进卧室,如诗如画。
整个空间是寂静而温柔的,但暖色的落地灯与造型别致的红色沙发又默默焕发出独特的表现力和持久的生命力。
主卫运用了大量花瓣纹理的瓷砖,跳动的花瓣仿佛跳动的海浪,也像一首深沉跳跃的爵士乐,从床头的黑胶唱片里慢慢流淌出来。
“独坐幽篁里、弹琴复长啸。深林人不知,明月来相照”每个人都想有一个诗意的栖息地,让繁忙生活中浑浊的思绪,在这个角落得以释放。书房是范姐超喜欢的一个地方,一本小说、一盏清茶,让喜欢旅行的范姐,思想一直在路上。
灰调、潮酷、街头,这是范姐儿子的气质。水泥墙面、黑色吊灯,工业风格正符合了少年不洒脱不羁的个性。
安藤忠雄:我认为建筑空间无需表达太多,应该保持沉默,任自然打着光与风幌子穿梭其中,光的温柔。
透明的球形吊灯,来自王小波的一句诗:“我们好像在池塘的水底,从一个月亮,走向另一个月亮。”
范姐的家,是淹没于尘嚣之中的乌托邦,是她心中不惹尘埃的蓝色湖水。
淳朴自热的大色块,大量原木色和水泥原色的运用,在粗狂与细腻之间找寻微妙的平衡感,表达出范姐内心极力追求的本真自然,干净澄澈。
每一处用心的点缀,都是范姐关于生活的诠释和感悟。鲜艳的红、温柔的蓝,不拘泥于世俗的跳脱,这就是范姐的范儿。
设计机构:尚层装饰(北京)有限公司重庆分公司
设计作者*团队:温馨,杨静,国良

