感谢来自 lightspace 的办公项目案例分享:
在科技发达的今天,一个良好、舒适的办公环境已经成为许多求职者选择工作的优先条件。因为人们逐渐意识到:工作不只是谋生,而是生活中重要的一部分。
lightspace作为中国公共空间领导品牌,一直用原创思维语言进行深度思考,打造“工作+生活”舒适的办公空间。

本次lightspace联手空间设计师Alex打造一个颠覆以往的办公环境和展示空间。设计师发现在循规蹈矩的环境下工作,很容易产生负面的情绪和极大的压力。为了解决这个问题,设计师决定打造一个以“玩”为主题的办公空间(Play ground)。希望可以通过环境寻找工作的价值和意义,让每个人都能合理释放身体和心理的压力,更健康地享受工作。
设计师用“Play ground”回顾了每个人的成长历程,把活动空间分为三部分。首先以儿时玩的万花筒为主题的VIP影院,希望从影院中看到懵懵懂懂的童年时光;

其次到以读书时篮球场为主题的活动沙龙区,回忆挥洒汗水的篮球场上充满同学们的欢笑;最后到走出校门,进入职场,加班开会的决策会议空间。
“Play ground”将传统的格子间向开放式办公转化,在功能区域的设计方面也会更加注重个人的健康和舒适度。为了提高工作的质量、身心的健康,工作空间还设有咖啡区、茶室、书吧、睡眠仓、健身区、乒乓球区、头脑风暴区、独立思考区等等,同时配置净化水设备和空气监测系统,为员工提供健康的水和空气。




办公室装修带着酒吧、等候区、餐厅、书吧、户外等公共区域,是最近几年新潮办公室的标志,不仅满足使用的需求,而且体现了企业品牌和文化的重要性。
前台接待区与吧台设计融为一体,为了在建筑材料和设计细节上别出心裁,吧台由天然岩片拼接而成,配以暖色灯光,彰显公司文化的同时呈现家的温暖与朝气,使得整个环境给来往的访客和员工眼前豁然开朗的视觉感受。


整个空间以等候区作为展开,极具创意的家具和环保健康的天然苔藓植物墙的引入为整个空间带来了休闲放松的氛围,同时突显空间以营造健康及好玩的办公理念。
咖啡区看似摒弃了繁复的设计,走向简洁、明快,没有什么更多的内容被包含其中,但是它却采用了实用、人性化的设计,绿色环保的材料,以及流畅时尚的造型来诠释生活的更深刻的内涵,表达出来的感觉是开阔而明净的,是温馨而浪漫的。

 
书吧根据书架区域面积做出功能性分割,分成“图书展示”和“作品展示”区。书是主角,大片的杂志书籍象征着设计师个性、赋予时代性的设计理念,而产品点缀着整个书吧,橘橙色的座椅、亮片pig等都让整个场景富有现代气息。

设计师将文创展示区和产品展示区结合,让展示区域不再单调,形成一个小型的家居店。产品展示区主要以灰色格子作为视觉展现,在强化空间界限的同时,运用绿色格子和白色格子营造出具有创意性的视觉体验,此外添上色彩斑斓的椅子,构成空间色彩妙用的对比关系。而对立面的文创产品区通过连绵起伏的山挂件展示极具创意的文创产品,同时表达企业追求不断创新的精神。

对于户外,追求“少即是多”的理念,简约时尚的休闲椅、茶几和企业形象Pig点缀其中,摒弃了繁杂的装饰, 使整个氛围变得轻松、愉快,而洗手间区域通过涂鸦将企业创意的想法表达,增加空间的艺术色彩。


生活的三分之一甚至更多时间被工作充溢,高效并且健康的办公方式对员工和企业来说至关重要,作为一个以办公为主题的空间,功能性必然不能少。
变换色彩的天花灯带将开放工作站、私密工作站和站立会议室连接,看似互相连通却又相互独立,满足在有限空间中实现功能复合的概念,增加整个空间的灵活性。工作站作为员工的重要工作区域,办公桌配置智能升降功能,让员工在坐式办公和站式办公随意切换,减少工作带来的疲劳。





偌大的茶室可以只是一处茶席,一套茶具,几张木椅,简约到了极致,但绝不简单。因为禅茶一味的茶室气息俘虏的,不单单是你迷茫不定的眼睛,更是那份浮躁难安的心绪。


休闲区以中性色调为主,原木色柜子和暖色装饰作为点缀,开放式的设计使员工一踏进休闲区就可以感受到轻松的氛围,有别于传统的办公环境。

联合办公区主要强调舒适、开放的办公氛围和灵活的工作方式。办公区选用简约的座椅和办公桌,结合智能密码储物柜,提高用户办公储存的辨识度,在色彩上选用干净的配色,营造出舒适无压力的工作环境。当然再繁忙的工作,都别忘了保持健康的体魄,开放式的健身区,让你保持身体的良好状态。


为了激发灵感和团队合作,设计师通过可书写的白板墙和多功能的媒体设备,使得交流更加高效,而玻璃隔墙提供可望向健身区的透明视野,营造出设计视觉上的连续性。

设计师对材料区进行了大胆的构思,将原本空旷的中间区域改造成乒乓球区,不但解决了空间容纳度,同时营造出区域丰富的架构,让工作和玩同时得以实现。

在办公环境中,给你一个的小憩场所。睡眠仓为了减少外部噪音,墙壁使用的是聚酯纤维材料的吸音板,同时内部设有电源插座和LED灯,还有专门的通风口使空气循环流畅。

值得注意的是,在办公区域,设计师考虑到使用者的舒适度,座椅均采用全球各大顶级品牌,员工每月自由交换座椅,体验每张顶级座椅带来的愉悦感,而工作站、大班台、会议桌都带智能升降功能,可以让员工在坐式办公和站式办公随意切换,减少工作带来的疲劳。
空间最有特点的是,地板使用的是当下流行的水磨石,纹理丰富的水磨石地面,与木地板、拼接地毯形成了巧妙碰撞,为空间营造出更加时尚的氛围。
∇ 经理室

而植物墙用的是进口天然苔藓,负离子苔藓可以作为很高实用价值的天然吸音板,空气净化器。同时为了减少室内的噪音,设计师在影院、会议室等空间都考虑了聚酯纤维材料吸音板的元素,通过多种色彩的搭配和不同形状的拼接,再结合每个场景的搭配,既达到了吸音的功能,也起到了美化空间的作用。
为了让空间视觉层层递进,光源采用办公空间最为流行的一种健康照明设计“双光照明”,通过隔栏天花来散射天窗的直射光,最大限度利用自然光减少光源带来的伤害。希望通过“Play ground”这个项目,能给更多的企业和使用者带来健康、舒适的办公空间。
∇ 总裁办公室


∇ 酒店区


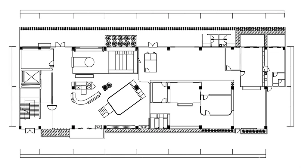
∇ 平面图(无家具)

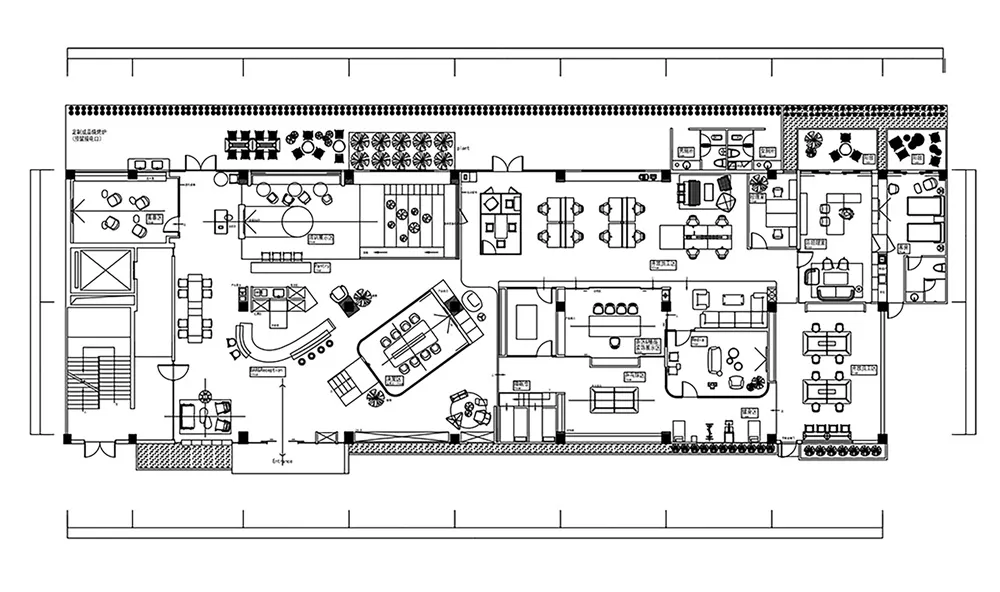
∇ 平面图(有家具)

∇ 设计手稿

完整项目信息
 项目名称:lightspace play ground
 设计范围:办公空间设计
 设计公司:lightpoint
 设计师:黎文龍(Alex)
 设计时间:2018年12月
 完工时间:2019年4月
 项目地址:中国广州
 项目面积:1000 m²
 主要材料:岩板、水磨石、地板胶、地毯、灰玻、吸音板、木饰面
 主要品牌:lightspace、Waldmann、Candela、Burgeree、Millike


