工业风格通常适用于以前的厂房改造为住房。但在莫斯科市中心革命前的旧建筑里,这是一个重要的建筑纪念碑,砖墙、金属隔断和深色也显得相当和谐。房子的主人对于历史细节的处理非常细致:他们只是打开了旧砖,但没有在里面做任何壁龛。所有的房间都铺有橡木拼花地板,浴室和走廊则铺着大理石瓷砖。
Industrial style is a perfect fit for the former factory premises, converted for housing. But in this apartment in the old pre-revolutionary building in the center of Moscow, which by the way is an important architectural monument, brick walls, a metal partition and dark colors also look quite harmonious. It is interesting that the idea with brick arose already in the renovation process- during the dismantling works the original masonry was opened, and the owner, designer Elena Tambieva, immediately decided to leave it. A great example of a stylish reconstruction of the old housing stock!


















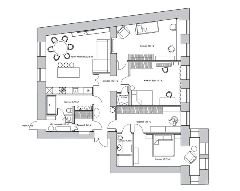
∇ 平面图

完整项目信息
 项目位置:俄罗斯莫斯科
 项目类型:住宅空间/公寓设计
 完成时间:2018
 项目面积:135平方米


