以赫尔辛基和上海作为实践根据地的PES-Architects事务所近期完成了他们在中国的第七个项目:福州海峡文化艺术中心。福州是福建的首府和最大城市之一,并且是全世界发展最快的都市之一。2013年,福州市政府举办了海峡文化艺术中心的国际设计邀请赛,旨在加强福州市的文化形象并促进马尾新城的发展。
PES-Architects的设计灵感来源于福州市花茉莉花,建筑的形式和颜色均模仿了茉莉花盛开的样子,5个“花瓣”分别对应着5个场馆:歌剧院(1600个座位)、音乐厅(1000个座位)、多功能剧场、艺术展厅以及电影中心。这5个场馆通过文化广场和一座宽阔的屋顶露台形成连接。屋顶露台可以从茉莉花园的两个坡道进入,也可直接从茉莉中央广场进入,使建筑群和闽江河畔形成无缝的衔接。在地下一层,沿着梁厝河伸展的河滨长廊将景观和室内空间融为一体,同时将地铁站和文化艺术中心连接起来。
PES-Architects事务所的创始人Pekka Salminen表示:“将庞大的综合体分割为几个较小的单元,能够为文化艺术中心赋予更加人性化的尺度,来访者也能够更加自如地在室内和室外空间转换。每栋建筑都拥有一个核心区域——沿着主立面伸展的半公共弧形走廊,它将公共室内空间与茉莉花园的景观融合为一个整体,并进一步将文化艺术中心连接至前方的马杭洲岛自然保护区。”
建筑以陶瓷作为主要材料,强调了中国与世界其他地区之间进行的海上丝绸之路贸易的历史背景。PES-Architects事务所与台湾的陶瓷艺术家施宣宇(Samuel Hsuan-yu Shih)共同为两座主要的礼堂设计了充满艺术感的室内空间,并凭声名远扬的传统“白瓷”和新型技术营造了优越的声学环境。建筑的立面均覆盖以白色的瓷砖和百叶窗,歌剧院和音乐厅的声学墙面更进一步体现了材料的文化和创新属性。
歌剧院和音乐厅的室内墙面均覆盖以陶瓷面板。在与声学家进行广泛研究之后,设计团队开发出了两种类型的声学面板:“雕刻面板”和“马赛克瓷砖面板”。二者均能够很好地满足高质量的声学需求,从设计上看也十分美观。
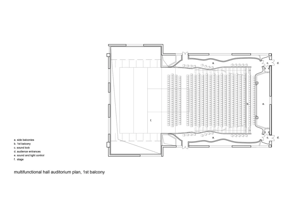
多功能厅能够容纳700名观众。墙壁采用数控切割的坚固竹板作为饰面,其形态能够适应声学上的需求。屋顶处装配以灵活的线网式天花板,便于灵活地固定灯具和其他技术设备。


















































▼顶层平面图
▼首层平面图

▼立面图


▼多功能厅剖面图

▼歌剧院剖面图

▼音乐厅剖面图



设计公司:PES-Architects 位置:中国 类型:建筑 景观 材料:竹子 陶瓷 瓷砖 陶板 玻璃
版权声明:本文内容由用户自行发布上传或投稿由设计芝士代为发布,版权归原作者所有,设计芝士不拥有其著作权,亦不承担相应法律责任。如果您发现本站中有涉嫌抄袭或侵权的内容,请点此提交工单进行举报,一经查实,本站将立刻删除涉嫌侵权内容。

