诸如保护店屋之类的历史性住宅是记忆的仓库,拥有前世和自己的过去。 设计部通过布莱尔路(Blair Road)的帆布屋中的分层概念探索历史以及我们与过去,现在和未来的关系。
MOD模糊化了空间与物体之间的界限,从概念上讲,Canvas House覆盖有一层白色,为将来提供了画布,同时在集中的地方揭示了历史保存。 这座房子有节奏地展现了过去的一部分,有旧木材的阴影,露出的砖层以及经过重新利用和升级的家具的复杂细节。
▼起居室和餐厅,用一层白色覆盖了过去
▼在起居室和餐厅,房子有节奏地展现了过去的一部分
▼餐厅,部分红砖暴露在外,餐厅与起居室的分隔
▼ALABASTER卧室套房的起居区
▼ALABASTER卧室套房的就寝区
▼ALPINE卧室套房
同时,MOD邀请来访者用工作室创作的基于文本的霓虹灯作品Dream来想象未来,并引用托马斯·杰斐逊(Thomas Jefferson)的话来概括MOD对Canvas House的做法。 语录总结了房子的态度。 柯林解释说:“这是对未来有梦想的中性白画布,而不是对过去的全面致敬。”
设计概念,由设计部创始人兼总监COLIN SEAH主持
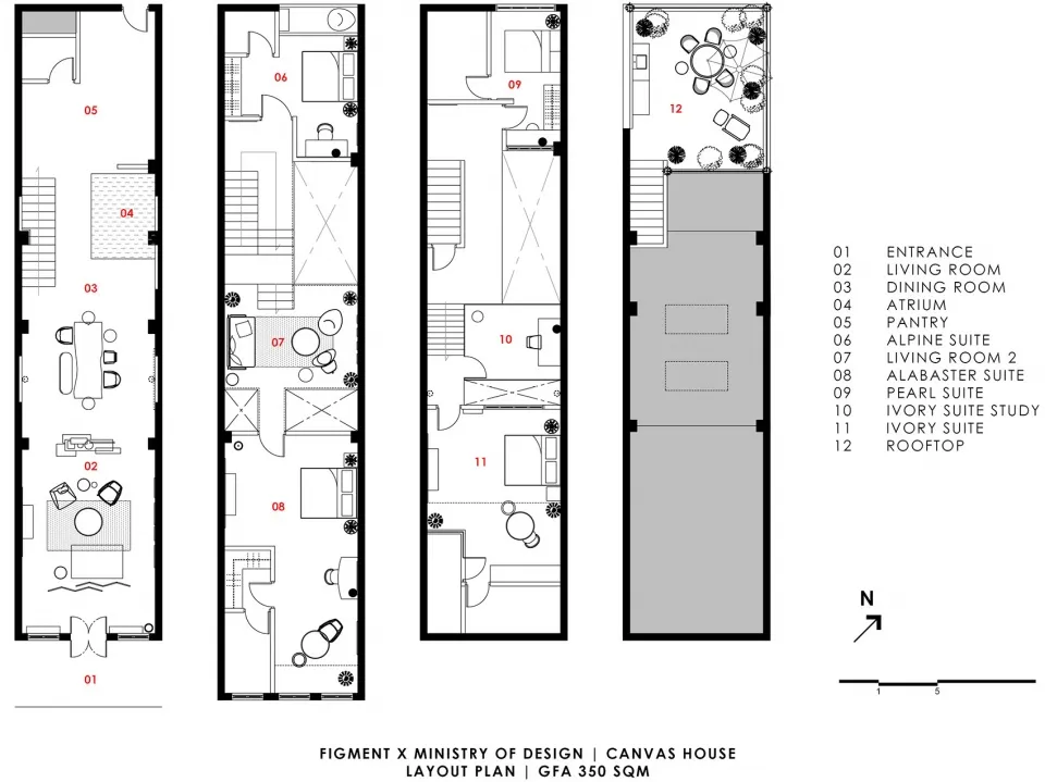
1.简介以及国防部如何回答
MOD新近完成了一幢全白色的帆布房,用于共同生活,坐落在新加坡布莱尔路沿线的一家文物商店内。开发商(Figment)给了我们固定的预算和4个月的时间(设计,采购和装修)以重新构想室内设计,目的是将套房出租给外籍人士3-12个月的住宿。租金每月3300新元起。简而言之,是要做一些绝对吸引长期租房者的事情,并为这种共同生活的商店脱颖而出。
面对紧张的预算和紧迫的时间表,并希望有一个总体概念来支持这一举措,Colin和他的团队将“ Canvas House”概念化:
一种。 MOD将整个房子涂成白色,为将来提供了画布,MOD决定专注于“升级”,以满足这两个限制。
b。大部分的桌子,椅子,箱子,镜子,屏幕和梳妆台都经过了重新设计,重新焕发了生命。
C。为了向过去致敬,但又赋予了未来特色,MOD将这些作品涂成白色,但在装饰龙或长寿花瓶上雕出了一些小玩意的“小玩意儿窥视”,墙上挂有陶瓷板,和木屏风,梳妆台和椅子。
这不仅在升级方面具有高度的可持续性,而且在预算,时间约束和概念上都十分出色。
2.“我比过去的历史更喜欢未来的梦想”
MOD模糊化了空间与物体之间的界限,从概念上讲,Canvas House覆盖有一层白色,为将来提供了画布,同时在集中的地方揭示了历史保存。
Colin解释说:“在自适应重用项目中,问题始终是相同的,我们如何在过去与现在之间划清界限?如果人们选择将项目仅保留下来,那将与停滞不前一样好……这可能会使人瘫痪和束手无策。但与此同时,我们也不希望通过创造过于陌生或新颖的事物来完全无视历史。我们的反应是用一块空白的空白画布覆盖现有历史,同时保留编排的瞥见过去,覆盖空间和其中的家具,使我们能够模糊过去与现在,物体与空间之间的固有界限。”
为了对此进行空间展示,MOD创建了基于文本的霓虹灯艺术作品,并引用了Thomas Jefferson的话语,概括了MOD对Canvas House的做法。语录总结了这座房子的态度,并引用科林的话:“这是中立的白色画布,是对未来的梦想,而不是对过去的全面致敬。”报价由The Signmakers制造,报价单笔书写在白色和红色玻璃霓虹灯中,并装在尺寸为1.4m x 2.2m x 0.1m的铝盒中。
从某种意义上说,白色模糊了新旧之间的区别。它还模糊了空间元素(例如墙壁,天花板)和其中的物体(例如家具和灯光)之间的区别。在所有白色情况下,对象/空间二分法变得模糊。房子变得更完整,而不是由进出的物体和人组成的空间。这使人们能够利用空间,真正地激活空间,并成为显着的特征,而不仅仅是居住空间。
过去的一部分在整个空间中有节奏地展现,露出的砖层和二手家具的错综复杂的细节,以及旧木材的阴影。这项技术适用于各种地方,包括整个四层房屋的楼梯上散发着圆形木材,以及装饰龙或长寿花瓶上的小饰物的俏皮peek-a-boo散发,墙上悬挂的老式陶瓷板以及木制屏幕,梳妆台和椅子。
以类似的概念方式保留历史细节,其中砖墙以集中的圆圈显示。特别是在套房中,访客会看到床铺上的“时间阴影”,露出地板的底色。与我们的建筑商一起,我们划出了午后阴影的轮廓,并让画家在该轮廓周围进行绘画,以留出时间标记将其标记在地面上。
5.与艺术家Kang合作设计定制灯
MOD与专门从事升级和使用融合塑料来制作时尚配饰的艺术家Kang共同生产了他的第一批灯。作为MOD孵化计划的一部分,Kang在MOD办公室工作以制作他的材料。 MOD与Kang共同合作,制作了三套由保鲜膜制成的融合塑料制成的灯具,它们被放置在五英尺长的起居区和中庭区域。保持分层的主题,将保鲜膜分层,然后熨烫和加热以形成防水的皮革材料。
设计公司:Ministry of Design
材料:木材 镜面 砖石 涂料
标签:小而美的住宅 改造 新加坡
分类:住宅室内设计 住宅建筑 独栋住宅
现代 住宅 纯白 国外

