好的空间如一本缓缓打开的书,多彩的情节、动情的故事、层层递进的变化。它塑造的是一个未知的环境,无关个人意识、无关文化认知、无关个人经验,细腻而含蓄,却足以引起使用者内心的情感共鸣。
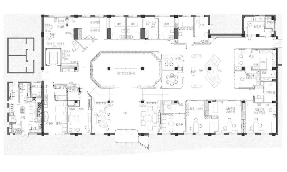
初入空间,门斗以圆形的方式呈现,四分之三处位于室外,四分之一处则位于室内,既成为内外相互呼应的衔接,又以拥抱的姿态致意到来的人。
中国传统的圆文化, 以对“圆”的亲和为源头,儒、道两家的圆道观和阴阳五行时空观为核心, 合乎于自然,又超越了自然,成为人们审美中所追求的“自由的境界”。
入口正对面为同仁堂的体验馆展示区,开阔的空间塑造独有的仪式感,顶面天花三个圆形互为镶嵌,中间为凹,两侧凸出,与传统文化中的阴阳概念不谋而合,又寓意三阳开泰。
大堂明亮通透,以自然质感的木色与白色作为空间的主色调,温和的浅色大理石与的纯净木色相融,冷暖之间,相得益彰。
空间中所有的线条皆为曲线,灯带、墙面等等,于感受而言,圆滑的曲线,柔和的造型减少了人与人之间的隔阂与生疏,焕发出亲密与信任的生命形态,在此刻,这里变成为一个疗愈心灵的空间,换言之,空间塑造情绪。
光与影的营造构成了空间艺术的物质与精神的表现特征。无论是柯布西耶的“建筑是光线下形状正确、绝妙、神奇的游戏”,还是路易斯·康的“设计空间就是设计光亮”,都在生动的诠释光影之于空间的意义。
对于空间光线的运用,设计师有其独特之处。所到之处皆为泛光源,温和而明亮,避免了直射光源的照射。弧形的灯带与墙面在形体上形成呼应,贯穿空间,使其更具节奏性与整体性。
空间有其独有的韵律和节奏,设计师不禁锢于某种风格,以“去风格化”的设计语言,如自然之变化,或自由、或多变,但都在光影落下的瞬间变成永恒。
随之步入同仁堂文化展示区,层层绿意的掩映之中,丰富而又微妙的色彩冷暖变化,使画面唤发出了本身的色彩感染力,微妙之间使空间多了一份灵气生动的浪漫情怀。
中央区域设计师没有用传统式实墙作为隔断,而是以半透明的玻璃隔断,赋以山水之墨,大气磅礴。一方面使空间更加通透,打破实墙的压抑感,另一方面又以山水之态氤氲空间氛围,空灵而自然。
空间是光和色的载体,亦是设计师理性修养和敏锐的感受以及娴熟技艺的完美结合。色随光变,光移影动,千变万化,神秘莫测,似一首美妙无比的协奏曲,又似一首对自然爱意的抒情诗。
祛邪扶正为中医的概念与原则,设计师则将三间朝阳的办公区用作中医大师的工作室,而另一侧设计师同样根据不同的功能将空间一一划分,打造舒适尺度的合理空间分配。
光影使空间流动,而独具文化底蕴的造景艺术则使空间沉淀下来,漏窗透影、移步易景,每个窗景大小各异,小中见大且曲折含蓄,蜿蜒之间,塑造景深和层次,引人探求回味。
初极狭,才通人,复行数十步,豁然开朗。好的设计于意料之外却情理之中,空间的转换与虚实变化,于无形之中增强层次感、纵深感、空间感,给静态化的画面赋予灵动性,同时,予以更为丰富的视觉美感。
山川自然之意境,情景交融、虚实相生,活跃着生命律动的韵味,亦为国人情思中最为厚重的沉淀,设计师将此情怀置入空间当中,咫尺之间、格调与气韵相生,衍生出无穷的诗意空间。
项目名称:北京同仁堂粹和康养体验中心
设计公司:AFFD设计事务所
合作艺术家:王旻 陈文焕 方印
家居:大正家具 索菲莉尔 楽舍
高志强,高级室内建筑师,1975年生于北京,毕业于清华大学美术学院环境艺术设计专业、北京大学EMBA研究生班,中国建筑设计集团筑邦设计院副院长、2019年中国设计人物大会执委、AFFD设计事务所创始人。纵横行业20余年,他是中国室内建筑设计师中的标杆式人物。高志强开创性提出“空间情绪设计”的观点,主持设计了百度国际大厦、建行研究院、同仁堂粹和康养体验中心、穷游网办公、汪小菲私宅、张兰私宅等众多高端办公、私宅及康养项目。
AFFD设计事务所由髙级室内建筑师髙志强创立于中国北京,是一家集规划建筑设计、生态景观设计、人文室内设计和软装设计为一体的设计管理公司。脱胎于中国建筑设计集团筑邦设计院,由实践经验丰富、立足国际视野的建筑设计师、工程师领衔组成。AFFD设计事务所致力于在都市繁杂冗馀的状态中寻找突破和灵感,提供同时具有时代精神和现代东方气质的设计解决方案,在髙端住区、产业办公、商业设计、康养地产领域取得卓越成绩。
医疗 AFFD设计事务所 同仁堂


😊