设计团队:杨晨愉、sasa
主要材料:瓷砖、木地板、艺术涂料、不锈钢、洞石
一切从简,结构重塑和信息的构筑,是对现代主义的醒悟。现代设计给人们提供了新的思考方式,人们通过工业产品和彼此间的沟通对生活品质有了新的体会。
是社会主义风潮带动了包豪斯思想的形成——原研哉
“刚柔相济” Hard and Soft
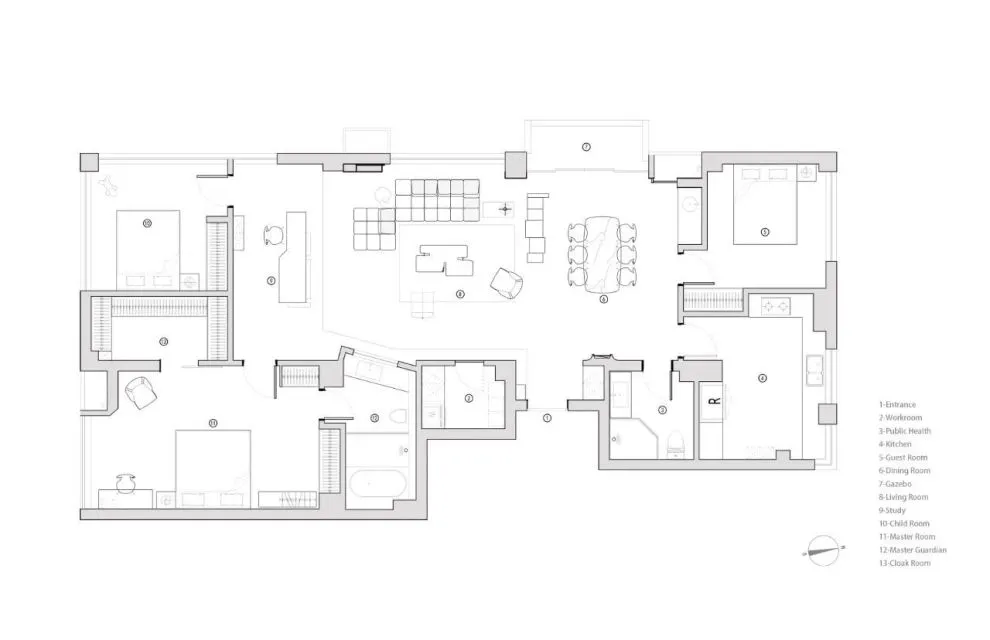
该项目位于杭州,在符合舒适性与实用性的前提下,发挥空间优势,表现现代年轻化的居家风格。不过分追求装饰性和复杂化,坚持思想融入设计。
对于简约,设计师理解为选材上的克制,用色的纯粹,不同的功能细节来支撑空间的平衡。材质的选择在冷暖调和中也显得刚柔相济。
“轻盈与热情”light and warm
设计师经过了反复的考量和打磨之后生成对空间结构的调整和重塑,增加了空间的通透性和利用度。在保证实用性的前提下,为空间注入了时尚简约的气质。
不规则的几何线条互相结合,无装饰的立面造型,红与黑的对撞色构成了一个自由开放的几何平面,为空间奠定了风格基础,为其注入了热情和温度。
轻盈简约的线条感、木质与灯光的结合,将原本带有烟火气的餐厅多了一份对品质生活的仪式感。
色彩与几何的设计理念已够强烈,因此设计师对于门套进行减法处理,打破常规。创造出有趣的互动视觉。
当阳光撒进书房的一角,几本喜爱的书在椅边,舒适而惬意。
“至简与内敛” simple and Restrained
卧室延续了简约的气质,不需要过多的装饰,呈现优雅内敛的空间。每一处的细节,都表现了设计师对审美质感的要求。
低饱和度的灰色和米白色,自然与光影的运用,营造出温馨舒适的氛围。
梳妆台处红色与黑色的色彩对比,增加空间的层次感。


谢谢分享