这是位于意大利北部城市乌迪内的一家理发店。这项代代相传的手艺始于1962年。在开业后的几年里,他们进行了两次历史性的改造,一直都是纯审美的,直到最后一代的儿子们决定彻底改变外观。
The shop is a “Barber Shop” located in the city of Udine in northern Italy.The activity that has been handed down from generation to generation started back in 1962.In the following years after the opening, they had two historical redevelopment interventions, always purely aesthetic, until the last generation of sons decided to completely evolve the look.
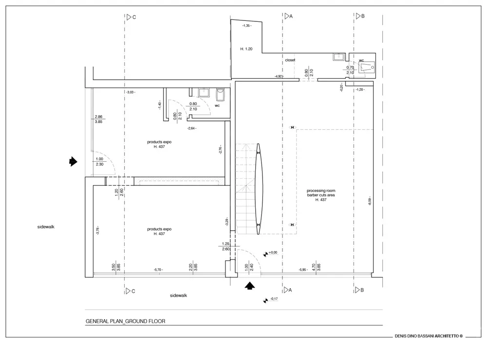
这个想法是为了拓宽业务,从剪头发和胡须到个人护理产品和套装的商业零售。这种渴望带来了扩张和合并两个商业空间的需求,即削减和销售空间。
The idea is to broaden the horizons from hair and beard cutting to commercial retail sales of personal care products and outfits.From this desire comes the need to expand and combine two commercial spaces, those of cutting and that of sales.


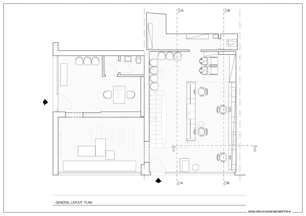
因此,设计从第一个概念开始,考虑到空间的特点和工作的基本维度。经过仔细的分析,我们决定更好的安排座位,确保每个座位的可用性。
Thus, the design starts from the first concept taking into consideration the characteristic aspects of the space and the fundamental dimensions for working.After a careful analysis we decided to better arrange the seats, ensuring the usability of each one.、
客户关于需要更多存储空间的要求被木工定制家具所接受和满足,这种定制家具在与客户占用的工作站一起使用时具有尽可能实用的优势。它们必须包含产品、工作工具、毛巾和各种设备。
The client’s requests on the need to have more storage space were accepted and satisfied by making custom-made furniture in carpentry, which have the advantage of being as practical as possible when they are used with customer-occupied workstations.They must contain products, work tools, towels and various equipment.


但最后的主角是光,它起着基础性的作用,并已经过仔细研究以保证最佳的亮度流动。灯具选用有规范的,保证光线均匀,但同时对人及所展示的产品进行详细的控制和调节,这可通过远程应用或简单的手势来完成。设计和墙面装饰是沙龙的特色。
Last but protagonist is the light, it plays a fundamental role and has been carefully studied to guarantee the best flow of brightness. The lamps chosen with criterion, guarantee a homogeneous light, but at the same time detailed on the person and on the products displayed, full control and their adjustment is done by a remote application or with a simple hand gesture. The design together with the wall finishing characterizes the appearance of the salon.










最终空间得到了改善,然而,在这里使用的一种新的语言,是为了恢复传统和加强老一代理发师的力量。
The intervention has led to an improvement of the space, where using a new language, however, it was sought to resume the traditions and enhance the strengths of the old generations of barbers.















∇ 平面布局 layout plan

∇ 地面层 ground floor plan

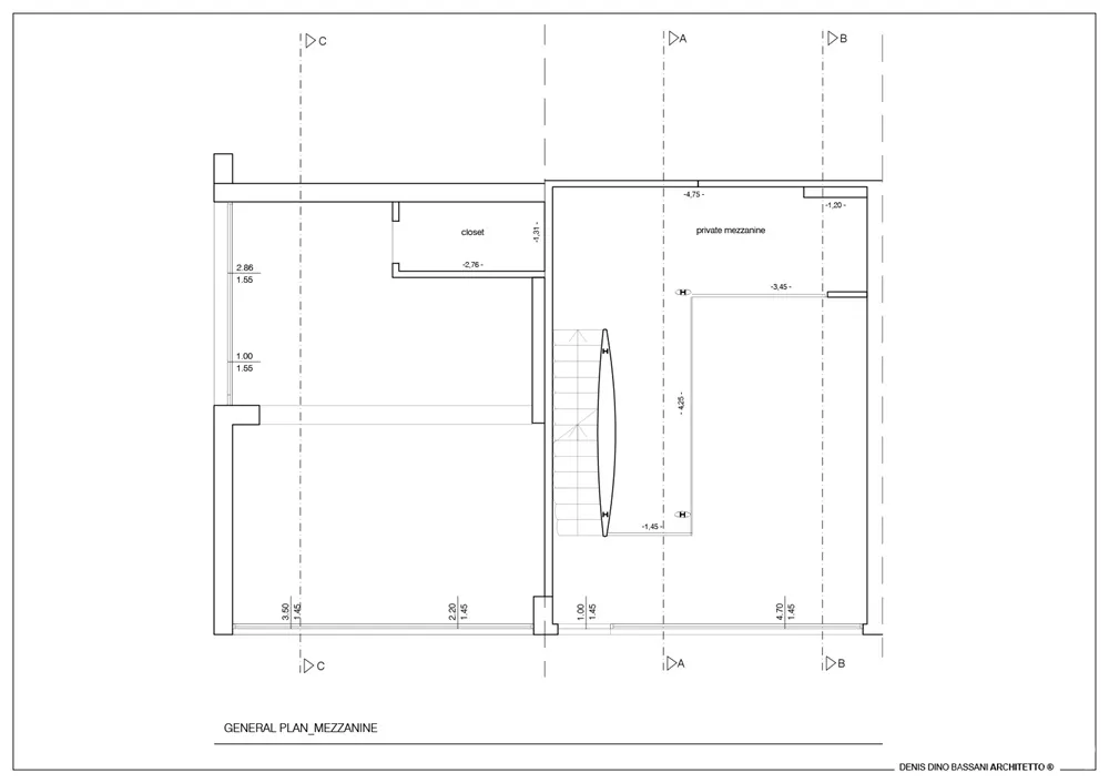
∇ 夹层 mezzanne plan

∇ 剖面 section

完整项目信息
项目名称:Salone Silvano
项目位置:意大利乌迪内
项目类型:商业空间/理发店
设计公司:Denis Dino Bassani
摄影:Elia Falaschi Fotog

