这是一家一流的酒吧!在Rohanské路一侧新近完工的Rustonka办公综合体中,一处新的酒类销售、品鉴和展示空间——Kolby红酒酒吧——现在正式开始营业。除了作为面向广大消费群体的酒吧之外,它可以用于私人庆祝和公司活动。整个空间被设计成Kolby葡萄庄园出产的葡萄酒的展示空间。朴素的空间形成别致的背景,让顾客把注意力集中在最重要的物品,即葡萄酒上。 ▼位于办公综合体中的酒吧外观 ©BoysPlayNice
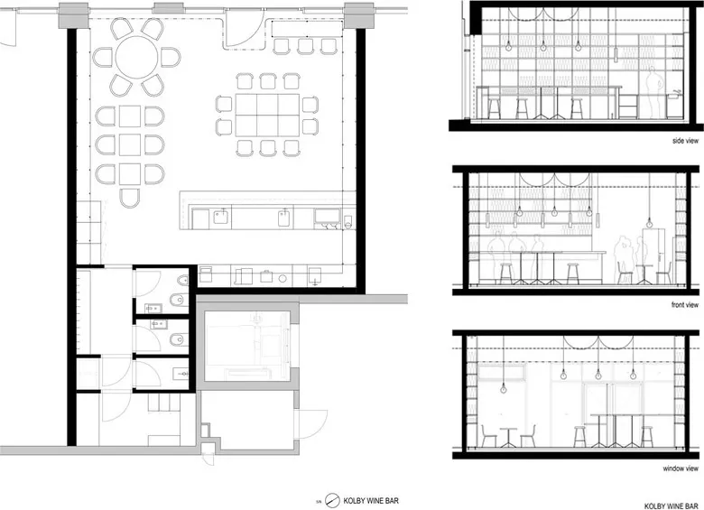
葡萄酒吧内部面积仅有59平方米,设计师将其构想为一处开放空间,可以根据顾客不同类型的活动进行多样化的使用和布置内部家具:从允许大众顾客使用的布局到进行品酒活动的中央空间,再到一系列用于接待和公司派对、私人庆祝活动使用的布置。这也是内部家具使用标准化产品与细木工制品相结合的原因。整个开放空间内部有一个连续的架子,主要用于展示和储存红酒瓶和盒子。其他的室内元素如使用CorTen钢的吧台、浇筑混凝土地面或家具(Vitra)都作为架子系统的附加元素,进一步增强了展出葡萄酒的特色。 ▼内部开放的空间,可以根据顾客不同类型的活动进行多样化的使用和布置内部家具 ©BoysPlayNice ▼整个空间内部有一个连续的架子,主要用于展示和储存红酒瓶和盒子 ©BoysPlayNice ▼浇筑混凝土地面、家具、灯具作为架子的附加元素 ©BoysPlayNice 红酒吧台的主要空间及辅助设施采用简单的材料和颜色,显眼的黑色和灰色调与光滑的胡桃木工制品作为补充。其它材料如裸露的混凝土、黑色金属、吧台覆盖的CorTen钢和裸露的黑色管道,共同形成了一种充满工业特征的朴素开放空间。木材、深色室内装饰或织物窗帘等柔软材料让空间舒适而精致。总体而言,这是一处精心设计的舞台,展示着无处不在的葡萄酒瓶,让前来品尝Kolby品牌的顾客尽情享用。 ▼吧台的主要空间及辅助设施采用简单的材料和颜色 ©BoysPlayNice ▼裸露的混凝土、黑色金属和裸露的黑色管道,形成了一种充满工业特征的朴素开放空间 ©BoysPlayNice ▼平面图与室内立面图 ©CMC Architects
饰面板 木材 胡桃木 金属 钢 现浇混凝土

