Treehouse是坐落在首尔江南区中心的一个青年共享公寓。江南区是首尔的创业聚集地,很多创业人士和创意工作者在附近工作。
Treehouse的72个微型住宅和微型loft单元以及各种共享空间即是专门为单身专业人士设计,既考虑了每个人的私密生活和不同的生活方式,也提供了各种社交活动空间和便利服务,甚至专门为单身人士的宠物伴侣设计了各种配套设施。Treehouse的所有住宅单元围绕着一个共享花园中庭,中庭里设置了公共办公区,休闲区,公共厨房,洗衣房,和宠物洗浴室。
Treehouse的名字来源于建筑造型,中庭之上叠摞的六层住宅单元层层退进,形成了一个树屋的形象。整个建筑设计以共享生活方式为基础,在建筑中心建造了一个完全向街道和所有住宅单元开放的公共中庭。公共中庭是这个Treehouse的空间中心,而这个中心是由层层堆叠的独立住宅单元塑性而成的。我们在设计的时候秉承着这样一个观念:公共生活只有在尊重每个个体自己的生活方式的前提下才能够成立,而设计一个每个个体都能够享有的公共空间则能够支持每个个体更自由地追求自己的独立空间。公寓入口从侧院直接开向中庭,Treehouse的居民回到自己公寓的路上每时每刻都能看到和感受到中庭中的活动。
住宅单元内均设置浴室和简易厨房等个人生活必须的空间和用具,而公共中庭的设计则主要考虑到适合社交和招待朋友的功能。所有的公共功能区都被植被包围着,铺地和墙面材料上也使用了室外景观用材料,配合室内家具,营造了一种既是室内又是室外的独特公共感。景观植物在建筑结构阶段即进行了考虑,为植物土层预留了足够的排水,重量和厚度。植物不仅丰富了空间,也塑造了不同的功能区,而且保证使用不同区域的人不会相互打扰。
每层住宅单元室内以不同主题生活方式设计了不同的室内家具和用具:有为喜欢洗泡泡浴放松的人设计的开放浴室;有为爱猫人士设计的主题居室,也有为情侣设计的顶层二人住宅等等。除三楼单元外,所有的公寓单元都通过大面积斜窗向天空开放,遮阳板从下向上开启,在保证私密性的同时,使室内空间随时可以看到整个天空。在不同的单元内还有一些不同的设置:比如可以作为架子使用的滑门,可以用来挂照片或者画作的整面磁力漆墙,模数化储藏架等等。






▼剖面图1
▼剖面图2
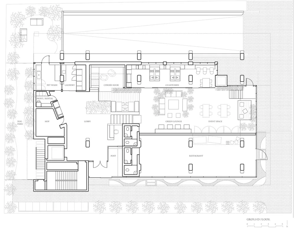
▼首层平面图
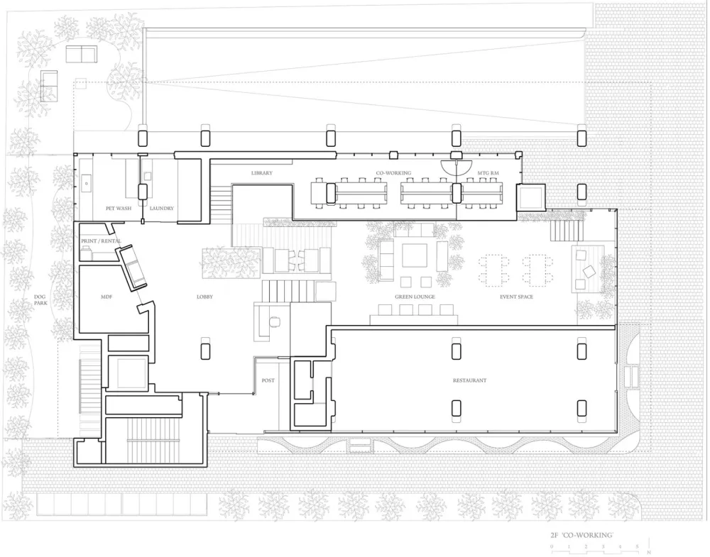
▼二层共享生活空间平面图
▼三层Femme住宅空间平面图
▼四层Nomad住宅空间平面图
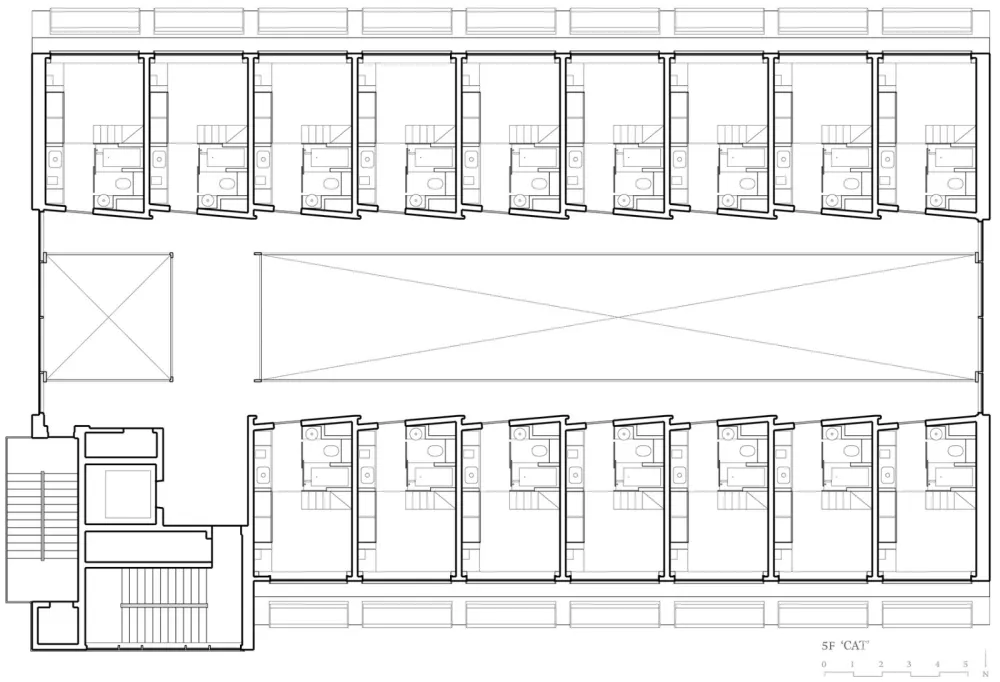
▼五层Cat Life住宅空间平面图
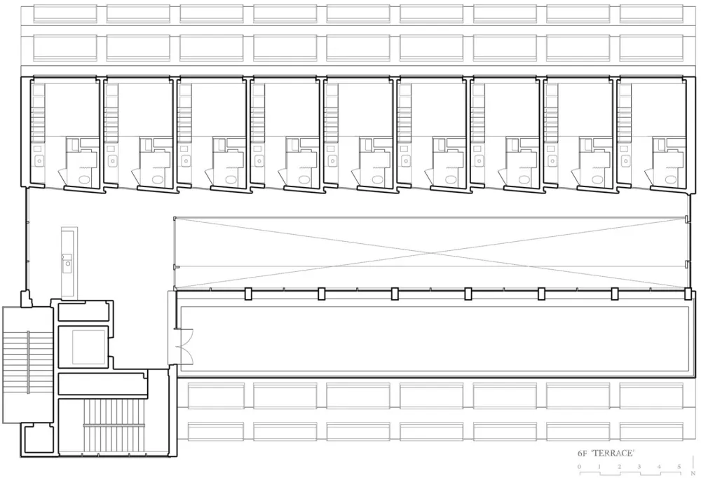
▼六层Terrace住宅空间平面图
▼七层Minimal住宅空间平面图
▼八层Pent住宅空间平面图
▼屋顶平面图
▼南立面图
▼西立面图
▼东立面图
▼北立面图
项目名称:Treehouse 青年共享公寓
设计方:Bo-da Architecture
设计年份:2016年5月至2017年6月
施工:2017年6月至2018年12月
设计主创:Melody Song, Xinyi Wang, Dionysus Cho
设计团队:Hayeon Kim, Nam Yong Kim, Xiao Wu
项目地址:韩国首尔江南区道谷站
建筑面积:4810平方米
摄影版权:Rohspace(建筑) Lee Jieung(室内)
合作方:Hanki Engineering and Architecture, Kidea Partners
客户:Kolon Global Common Life
品牌:Amadas: smart door lock; Marmoleum: flooring

