车库改造
1A EARLS COURT SQUARE
改造一直都是很考验设计师功力的项目,特别是一个方方正正的车库,如果改造成住宅会是什么样子的?!
这个车库位于伦敦肯辛顿区,是 sophie hicks 为孩子们设计的家,占地面积为 75㎡。
Sophie Hicks 于 1990 年创立工作室 Sophie Hicks Architects,凭着对时尚的直觉,在住宅设计上拥有极大的创造性和丰富的设计经验。
她很喜欢穿男性化的衣服,留短发,性格也很爽朗,总是给人干练、精神饱满的感觉。
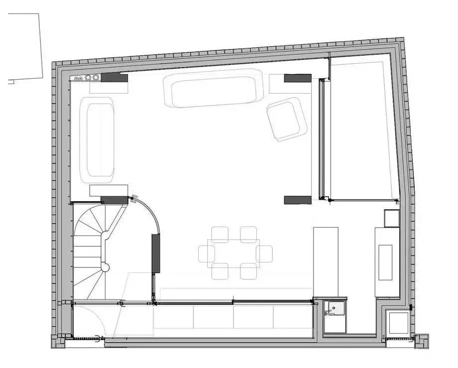
改造后,乍一看房子只是一个小平房,那是因为房子在市中心位置,受层到了当地楼层规划限制。
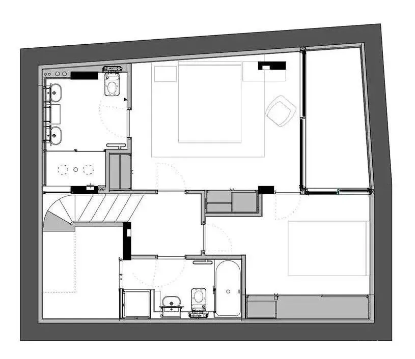
但其实房子有两层,一层在地上,一层在地下。
房屋的四周被绿植包裹,生机盎然,白色的外立面与街边的围墙相连形成一个整体。
进入室内你会发现远比你想象的感觉要大,这是因为当初给房子定义的设计宗旨就是,不仅要最大化的利用室内空间,还要营造出最大化的空间感。
一楼的层高是 3m,从玄关进入室内可以看到天花板和承重墙都保留了粗糙的混凝土,地板是灰色的水磨石,白色墙面做为两者间的过度,无形中提升了空间层次感。
定制的控制面板将开关、插头、壁灯结合在一起,嵌入墙中,凸出的水泥板作为边桌使用,可以放钥匙、衣服等物品。
室内的墙面做了虚实的拼接设计,底部是实体墙,上方是玻璃天窗,这样设计不仅能为室内带来充足的采光还保证了私密性。
不管你在什么位置只要一抬头就能看到天空和周围的树。
为了确保楼下空间有足够的采光和通风,设计师还将阳台改成了天井式设计,让阳光能直接穿过上层照射到楼下。
客厅白色亚麻布沙发搭配软木凳,再用几幅艺术画装点墙面,少量家具布置,舒适又不显繁琐。
餐厅只简单的摆放了一张白色的矩形餐桌和 6 把天鹅绒餐椅。
厨房在餐厅旁边,一个很不起眼的位置,侧面百叶窗设计能保证通风。
墙上挖出合适的凹槽做为扶手,一点都不会占用楼道空间▽
下层空间,有两个卧室和两个卫生间。
卧室的布置也很简单,裸露的水泥柱子和天花板,白色的墙面,定制的壁灯与集合控制面板,很贴合整体风格。
凸出的水泥板做为床头柜使用▽
阳光照射到天井底部,能感受时间的变化▽
主卧的卫生间在床的右边▽
两个花洒的设计,更方便两个人同时使用
视频来源于 Nowness:https://vimeo.com/312705290
摄影:Annabel Elston

