从外之内的建筑语言的形成方式
 
 
设计师在接到这个项目的时候,业主只是给公司简单发了份简单的项目信息,就将整个项目全权交由设计师自己处理。“这栋特殊的住宅业主在设计上给了我们无限的自由与权限,就好像它是我们自己的。”设计师说。
 
 
总面积1300平米的建筑从外部限制中解放出来,可以自由地学习和发展个人感兴趣的建筑风格。在过去的5到10年间,外墙和天花板会聚成一个倾斜的角度,这是一种建筑语言,也正在变得越来越流行,特别是在房地产项目的商业建筑中。
 
 
 
 
 
 
然而,除了在外观之外,这种建筑语言从未出现在那些仍然主要由普通垂直和平行布局主导的建筑物的内部。既然如此,设计师很想知道是否可以将这种语言应用到其他设计方面,而不仅仅是出于装饰目的。从设计师的角度来看,为了使架构尽可能清晰地表达语言,必须从计划设计和结构开始。一旦这种语言成功地融入这两个区域,其他元素,如地板、墙壁、屋顶、外部和内部,将自然地与风格一致。
 
 
 
 
为了达到设计师建筑语言的理想版本,空间需要一个庭院作为建筑的中心,让阳光和雨水可以自然流入。斜墙线用于连接建筑物、庭院以及屋顶的框架。由于建筑物的框架高于庭院的框架,雨水将从屋顶落入庭院,就像瀑布一样。设计师用适合结构的山谷椽子完成屋顶,保持天花板与屋顶平行,并应用这种架构语言来适当地服务于建筑物的3个主要部分中的不同功能。
 
 
 
 
 
 
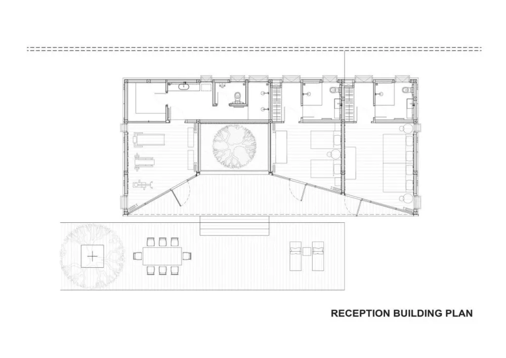
接待大楼包括2间客房,一间健身室和一个露台。所有3个部分都与一个庭院花园相连,完成了砾石路径和美丽的海角茉莉花作为雕塑植物在中心。主客房设有健身房和2间卧室,这些卧室向北开放,与游泳池和多功能庭院平行。进入游泳池之前具有其他功能的房间,如洗手间,更衣室,蒸汽房和淋浴房,与南部平行,下午作为阳光缓冲区。
 
 
 
 
 
 
 
 
客房是一个6米宽,12米长的开放式空间,由3个连接部分组成:起居室,餐厅和厨房。通过8米长的玻璃向外开放手风琴门。由于建筑物是朝南北风向放置的,当手风琴门打开时,微风将在晴朗的日子里流入房间,这意味着无需打开空调系统。客厅露出的托梁天花板露出H钢梁和C型钢龙骨的结构。天花板面板仅用于覆盖布线和不整齐的混凝土浇铸。
 
 
 
 
 
 
 
 
主楼的二楼是最清楚地表达我们建筑语言的区域。从4个侧面可以看到庭院,主卧室,主浴室,衣柜和露台。这四个区域通过其逐渐变细的地板,对角线墙和通向庭院的倾斜天花板传达语言,正如我们想象的那样准确地遵循理想模式。所有功能都非常实用,并且与已创建的每个空间形状相关。
 
 
 
 
 
 
 
 
打开通向主卧室的大门,人们可以感受到来自消失点的比平时更强烈的吸引力,这是由于逐渐变细的墙壁和倾斜的天花板,通向床头板后面的庭院。卧室的入口区域较大,较高的天花板适合作为起居区,而卧室内的区域则有较低和较窄的天花板,为睡眠提供了适当的氛围。
 
 
 
 
 
 
 
 
 
 
主浴室包括一个位于庭院花园一侧的浴缸,让人沉浸在水中时享受轻松的氛围。阳台上的卷帘可以滚下来以获得更多隐私。浴室的另一侧是一个柜台,沿墙的长度有一面镜子。柜台用于浴室水槽,化妆区和储藏室,大镜子反映了前面发生的所有活动。
 
 
 
 
 
 
 
 
 
 
 
 
参观者第一次走进用作入口大厅的车库之前,将无法看到房屋的整体情况。通过在车库墙的两侧安装镜子来创造一个兴趣点和一种超现实的感觉。反射导致无限幻觉,象征着外面的公共空间和家庭内的隐私之间的过渡。当参观者即将穿过车库时,墙壁的倾斜斜线显示了房屋的整个区域,可以看到全景,有目的地创造出在这个确切位置感知的景象。
 
 
 
 
 
 
 
 
 
 
 
 
 
 
 
 
 
 
 
 
 
 
 
 
 
 
OCTANE ARCHITECT&DESIGN由Thawin Hanboonseth(右)和Kittichon Phukiatkong(左)于2015年创立,目前仅由包括创始人在内的三人组成。公司坚信所有的成就并不取决于雇用多少建筑师或完成项目,而是取决于每件作品的质量和独特性。他们认为创作杰作并不容易,但保持每个作品不是一模一样的复制品更难。独特的作品不仅代表产品的真实性和美感,产品必须与其设计的功能实际兼容。
 
 
设计:OCTANE ARCHITECT&DESIGN


