在高楼林立的无锡市中心,温婉绵长、古色古香的南长街是一方柔情似水的心灵归处,被誉为”江南水弄堂,运河绝版地”。新万鑫银丝面馆坐落于此,这是一家拥有百年历史的美食老字号旗舰店,业主作为无锡非物质文化遗产代表性项目的传承人,对餐厅的品牌升级和形象展示有着强烈的诉求。设计师根据地域性特色,在构思过程中结合了现代主义的建筑思维,试图用设计的手法摆脱刻板印象,冲破既定模式,让传统的餐饮品牌在时代背景下推陈出新。
门头大抵保留了古运河畔江南人家的原生态风貌,粉墙黛瓦、斗拱飞檐。开放的木窗口搭配两扇玻璃门,将光线引入室内的同时,也为原先粗旷斑驳的建筑外观揉入一抹现代的俐落感,让整个店面恰如其分地融入古街既有的空间肌理之中。
推门而入,内部空间的设计则是尽可能进行丰富的探索——选择性保留,但不刻意强调神秘感和沧桑感。
结构艺术化,亦是本案设计规划的重点。一楼大堂利用老房原有的玻璃天井,将玻璃与木格栅相结合,具备了隔而不绝且调节光线的功能。而虚实交错所产生的视觉变化,给予食客于行走之间,对空间产生一种豁然开朗的感受。
为了颠覆百年老店的陈旧印象,转战更有发展前景的年轻市场,本案一改原有的传统面馆经营模式,升级为自助取餐的新模式,并增加了新的零售区域。展示、售卖、后厨操作及客座各部分功能被混合揉捏、重新组织,以基于充分领会品牌精神的整合设计,表达和影响产品与空间、空间与人以及人与人之间的多种可能性,使得顾客在穿梭来往的同时,能兼顾各种体验。
就餐区域主轴线的格局设计,利用空间之间流畅的动线与机能,为多样化的用餐需求提供了足够的选择空间,也让置身其中的每个人都能感受到时间的流动和空间的变化、旧事和新物的转换,以及出入繁华和静心沉淀的状态。
银丝面和甜米酒作为该餐厅的招牌特色,设计师将抽象的概念转化为可感知的空间意象,连绵起伏的网线仿若匠人手中缓缓抻开的面条,不仅是简单的艺术表达,也是对原有空间局限性的消解,更是对品牌印象的无形渗透。而与外立面遥相呼应的漪漪麦浪和莹莹米粒,伴随着灯光投射在斑驳墙面的光影感,使得整个空间产生更加丰富的层次,呈现出充满烟火气息的温情风貌。









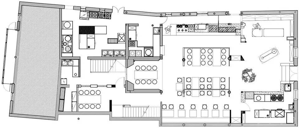
▼首层平面图
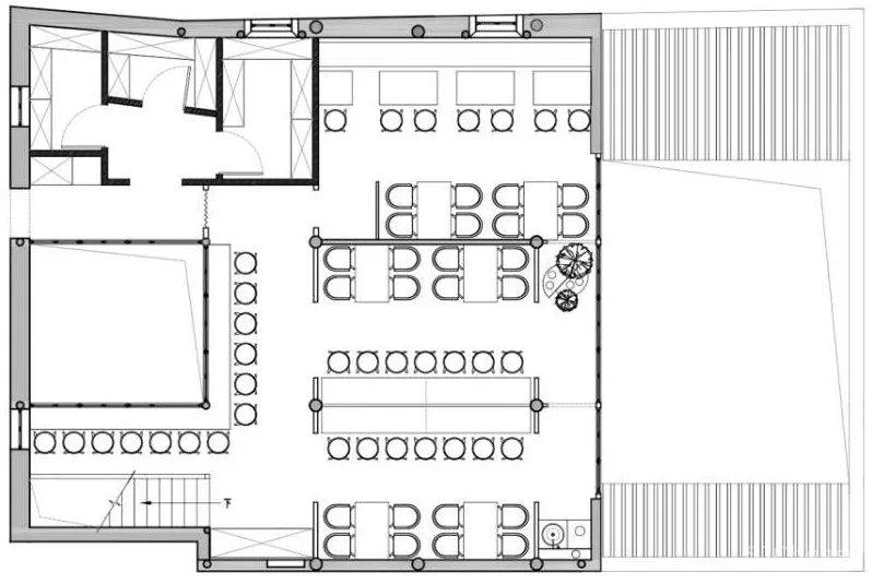
▼二层平面图
▼立面图
项目名称:新万鑫银丝面馆
项目地点:无锡南长街
设计单位:无锡欧阳跳建筑设计有限公司
公司网站:http://www.oyttdesign.com
联系邮箱:oyttdesign@163.com
主创设计师:欧阳跳
辅助设计师:朱佳慧、姚运、陈进、周丹凤、李阳
设计起止时间:2019.01~2019.02
开放时间:2019.04.27
项目面积:380㎡
项目造价:2500/㎡
主要材质:水洗石、防火板、水磨石、乳胶漆
设计风格:自然简约
设计主题:面的博物馆
空间用途:餐饮
摄影师:徐义稳

