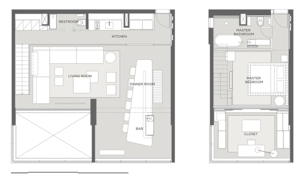
这套公寓位于圣保罗,面积为100平方米,将两套公寓(一套复式公寓和一套较小的单层公寓)连接到夹层的项目。设计解决方案是利用较小公寓的入口,将其连接到夹层,并将整个区域改造成客厅融合整个空间。
阳台是附加的,长条桌子放置在中央区域可以作为酒吧使用。公寓隔断及天花板被一个木质栅格框架所覆盖,内置隐藏的扬声器、照明和空调,连接着厨房空间、卫生间和楼梯通道,非常具有统一性又有辨识度。
卧室里有一间大浴室,由玻璃墙和百叶窗隔开,既保证了隐私,也保证了一体化。两层楼高的阳台设计包含了一整套壁橱,和一个小型的家庭办公室。

设计装饰细节精致具有品质,纺织壁画象征树根,与木栅格搭配和谐,沙发以灰白色,祖母绿色撞色等搭配,皮质或布料更显整个公寓气质。



项目地点:圣保罗,圣保罗州,巴西
设计面积: 100.0 m2
项目年份: 2018
摄影师: Denilson Machado – MCA Estúdio

