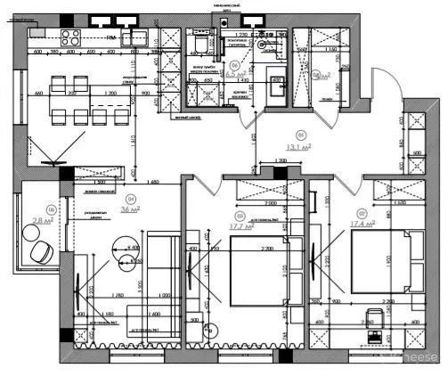
Taras Belik新作,面积98.3㎡的三居室公寓,天花板高度3.1m,内部设有一间浴室和一个2.8㎡的阳台。整个空间由黑色与原木,砖红色,灰色和米色相结合。以简洁手法打造自
术又有格调并带有明显的设计气质。
Taras Belik新作,面积98.3㎡的三居室公寓,天花板高度3.1m,内部设有一间浴室和一个2.8㎡的阳台。整个空间由黑色与原木,砖红色,灰色和米色相结合。以简洁手法打造自
术又有格调并带有明显的设计气质。
之前
