大多数人都认为家天生就该明媚敞亮,黑暗少光绝对是空间的“减分项”,而今天这个家却反其道而行,让暗色成为主调,带来一份异于平常的治愈力量。
 
 
屋主J先生一直对暗黑工业风情有独钟。为了打造酷酷的黑色系风格,他找到了陌野设计的设计总监MEI。
 
 
陌野设计工作室主持设计师。“很多人酷爱黑灰,与其说是源于与生俱来的低调,不如说是高级灰身上散发的静谧气质,刚好与渴求安静的内心产生了强烈的共鸣。”MEI对黑暗系风格的细腻理解,直接击中了屋主J先生的心。
 
 
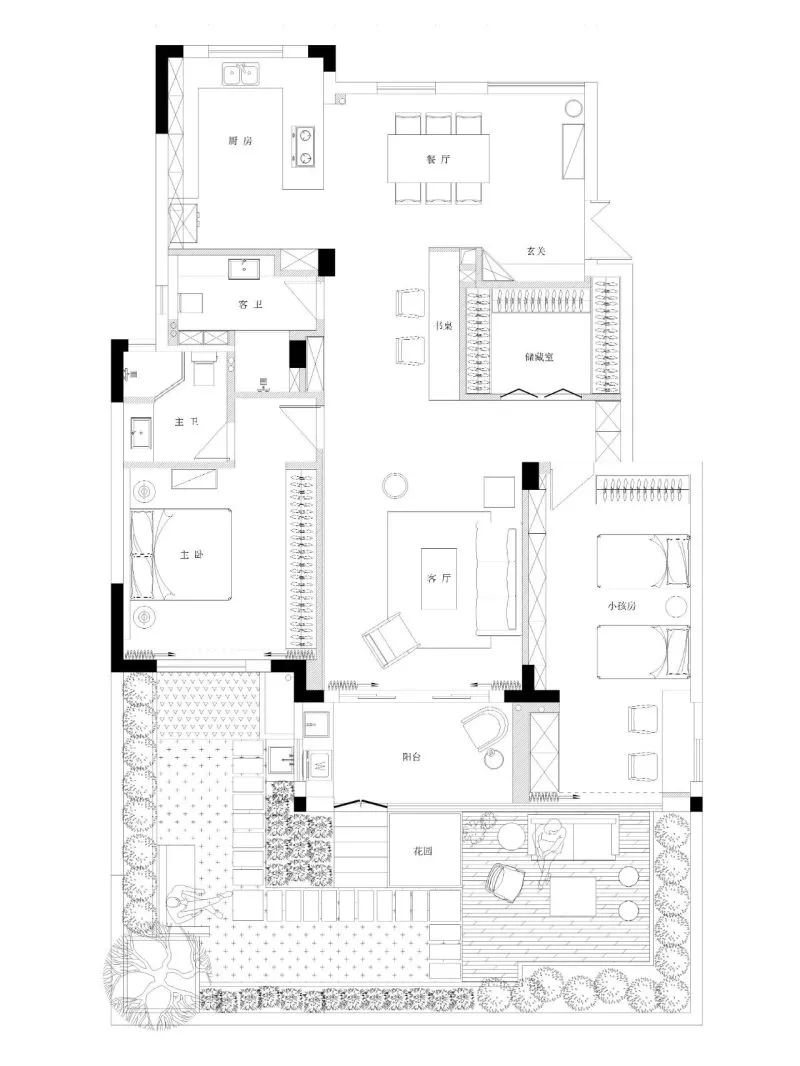
1、设计师打通了原来的入户花园和门厅,将与之相接的厨房改成了开放式;
2、玄关后,一堵用混凝土直接浇筑的墙体围合出独立的衣帽间,从诺大的客厅里“抢出”不少面积。
让暗色成为主调,感受治愈的力量
 
 
黑与灰打造的暗调空间,天生就具有稳定而包容的特质。无论室外阳光明媚或是阴雨连绵,都不会给室内光线造成太大影响,相应地,也不会带来情绪上的波动,这对从事高压工作的J先生来说至关重要。难得的是J先生的妻子、两个女儿还有J先生的父母,对家里的暗色系风格都没提出反对意见,反而觉得住在这样暗色调的家里,是一件相当酷炫的事。
 
 
暗而闭塞才会让人心生压抑,广阔的黑却能带来无垠的想象。MEI要做的就是放大空间的格局,让其通透豁达。在
玄关处,设计师用一堵由混凝土直接浇筑的墙体,围合出了一块独立的入户空间,瞬间拥有了豁然开朗的感觉。
 
 
混凝土墙的另一侧被定义为开放式工作台,这个“无中生有”的构造,改变了整个家的动线,将行走路径引向客厅,同时也增加出全新的储藏空间。
 
 
工作台用了一整张黑胡桃原木板,坐在这里,一转头就可以看到餐厅上方个性十足的铸铝荧光灯。
 
 
这里的墙面,特别采用了现场灌注的混凝土墙工艺。传统筑墙都是用砖块垒起后再两面粉刷上漆,即使使用主人偏爱的仿水泥色,终究感觉太过细腻也太过刻意,缺乏原始的况味。而在现场灌注混凝土,脱模后墙面会自然而然形成纹理和孔洞,无需二次粉刷就能直接使用,算下来造价比垒砖更低,还有种浑然天成的质感。
金属单品,打造赛博朋克画风
 
 
细腻的原木桌面与灯光明暗交汇,调动出整个空间的雅皮气质。实木餐桌椅来自英国品牌Square roots。
设计师将原先进门的入户花园和门厅打通,将与之相连的厨房改造成了开放式格局。如此一来,人一进门的视线便会毫无阻隔地直达室内底部,空间瞬间拥有了豁然开朗的感觉。
 
 
厨房岛台、橱柜门板都运用了水泥元素。地面采用的是从水泥延伸而来的水磨石,现场浇灌一体化铺陈,让空间和空间之间无缝衔接。随着岁月的流逝,水磨石会慢慢改变自己的形态,或是产生龟裂的细纹,或有一些深浅的色彩残留,但这也恰好是主人想要的烟火气。
 
 
餐厨用具也大多选择黑色和金属色,和空间整体调性保持一致。
 
 
金属文件柜式的餐边柜、车灯般的壁灯,诸多带有冷硬感和工业属性的家饰,都让空间沾染上赛博朋克的风格。
 
 
颇有艺术感的手模装饰从墙壁伸出,握一支花束,献给爱家的人。
巧用立体装饰,化腐朽为神奇
 
 
门厅砌筑隔墙之后,在客厅这一侧,就有了书柜区和玻璃门里的步入式衣帽间。
 
 
 
 
因为背景墙上有一根无法隐藏的管道,设计师便将墙体拉出一定的厚度,并做了一个三角切面的立体装饰,化腐朽为神奇。
整个家光线最好的地方在阳台。周末无事的时候,J先生特别喜欢在日光斑斑的阳台上坐定,感受不同季节的阳光停留在半高的绿植上,安逸而满足的状态会激发出内心最柔软的情绪。每每这个时候,他都会忆起海子的诗:“我无限地热爱新的一日,今天的太阳,今天的马,今天的花揪树……从黎明到黄昏……胜过一切过去的诗。”
 
 
| 儿童床选择了同色系的丹麦品牌FLEXA
儿童房的墙面用水泥灰做点缀,加入大量的白色提亮空间,同时搭配了女孩子们最爱的樱桃粉色。
 
 
红色的背景配上粉绿色台灯,俏皮的配色,契合了孩子天真浪漫的性格。
 
 
家里随处可见主人收集的艺术感小装饰。
软木搭配钢管,趣味十足且多功能使用
 
 
| 皮编铁床来自新西兰小众品牌UNITED STRANGERS
主卧背景墙上用的是极少用于家装的软木材质,质地粗糙的软木上拉出了数条间隔不等的黑色细条钢管做装饰,同时也可以用来夹画片或安装夹式灯;墙上不少壁灯,看似拆解于不同型号的车头灯,也格外有趣。
 
 
连床头柜的选择也不按常理出牌,选的是如老派007系列电影中出现过的金属密码箱和文件柜。暗色将潜藏在平庸里的质感擦亮,也将各种或冷硬或古怪的装饰变得让人易于亲近。
完善整体性,延续暗黑工业风
 
 
白色小方砖、水泥色背景墙、黑钢材质的洗漱台面……盥洗室完美延续了整个家的暗黑工业风。
“人内在的细腻与深切的情感,需要与之对等的空间来承载。灰与黑,看似简单平静,却蕴含着无穷的魅力。”暗色的主调,
也能为家带来独特的治愈力量。
室内设计 / 陌野设计


