在设计了多伦多广受好评的西班牙pintxo boite酒吧Raval后,两名粉丝与大厨格兰特·范·加梅伦(Grant van Gameren)和鸡尾酒奇才欧文·沃克(Owen Walker)重聚,展开了雄心勃勃的合作。Quetzal在一个明亮的拱形空间里庆祝和保存了墨西哥各地的几代人的老食谱和烹饪技术,向该国传统的梅尔卡多斯致敬。学院街餐厅的燃料完全由木材燃烧的火,并承诺重新定义如何墨西哥食物是准备和体验在加拿大。
荡漾的曲率,不同的几何图形,多余的材料选择,绿咬鹃的设计灵感来自于墨西哥市场摊位的滚滚油布以及有机瓦哈卡陶器中发现细节。广阔的空间体现了一种微风吹拂的简单和新鲜,类似于烹饪本身,尊重世界上最基本的建筑材料:木材,混凝土,石膏。
白色起伏的天花板上点缀着清晰的加拿大枫木和让人想起手工装饰的具体细节。从滚动的天花板,几何拼图台面,和定制的滴水盘,到轻混凝土的使用,允许雕塑制作技术,设计团队对工艺的严格关注是显而易见的,在餐厅的每一个特点。
Quetzal的设计同样受到尊重各种尺度的约束和功能的需求的驱动。让人想起原始的胸腔,明亮的天花板结构重新诠释了使用玻璃纤维增强石膏的桶形拱顶。
这些曲线的形状似乎会随着光线的变化而变化,整个晚上看起来就像雪堆或雕刻的象牙。温和的膨胀不仅创造了一种膨胀的效果,而且巧妙地掩盖了为灼热的烤架通风所需的庞大的空气循环系统。
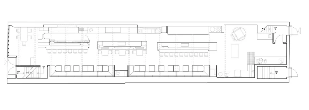
开放式的厨房,必然受到空间线性的影响,成为一系列隐喻性的市场摊位,同时也作为独特的烹饪景观——沿着墨西哥地区菜系的广阔谱系而设的小站。每一寸空间都经过优化,以满足厨房团队的需求,并讲述一个故事。
从鸡尾酒和酸橘汁腌鱼酒吧,到在come(一种横跨墨西哥的传统土灶)达到高潮的特制烤架,这个设计打破了第四面墙,让厨师和顾客彼此直接接触。本着伟大的烹饪指导精神,学院街的厨房有着开放的工作台面和工作台面的座位,是一个交流、教育,尤其是满足的场所。

位置 Toronto, Ontario, 加拿大
面积 3000.0 ft2
年份 2018
摄影 Doublespace


有意思