这是MESURA为自己事务所设计的办公室,设计概念充分考虑了团队的需求和日常活动:当在这里工作时希望从空间中获得什么?是什么塑造了宜人的工作氛围?如何借助空间设计传达公司的价值观和理念?随着越来越多的千禧一代步入社会,不久的将来工作会是什么样子的?他们想要什么?我们想要什么?
过去那种在朝九晚五的工作时间中,让员工独自坐在格子间里面对着一部电话或一台电脑的工作方式现在已经发生了巨大的变化。人们的工作模式被新的沟通方式所改变,随之带来新的工作状态。全球化的互联网使人们能够在任何时间、任何地点工作,让死板的工作时间几乎被废弃,而要求员工必须在办公室工作的理由越来越难以令人信服。
在工作中,MESURA的建筑师每日的固定流程就是制定计划、构思策略和进行设计。创新和创造力作为通向成功的重要途径,让建筑师的职业发展成为一种个人化的东西。在这个办公空间中,工作与生活逐渐交织在一起。对MESURA的建筑师而言,工作是为了生活,生活因为工作而满足,将工作转变为一种类似生活方式的东西能够在很大程度上适应不同员工的个性。这种概念让灵活性成为设计每一间办公空间的核心理念,这就是MESURA在巴塞罗那的新工作空间,它既像是一片白色帆布,让人感觉自由、舒适、联系紧密,又像是Roche或者King那样的办公建筑客户一样,能够在统一的建筑理念和不同的办公建筑中满足极其多样个性和想法的需求。







▼结构图解
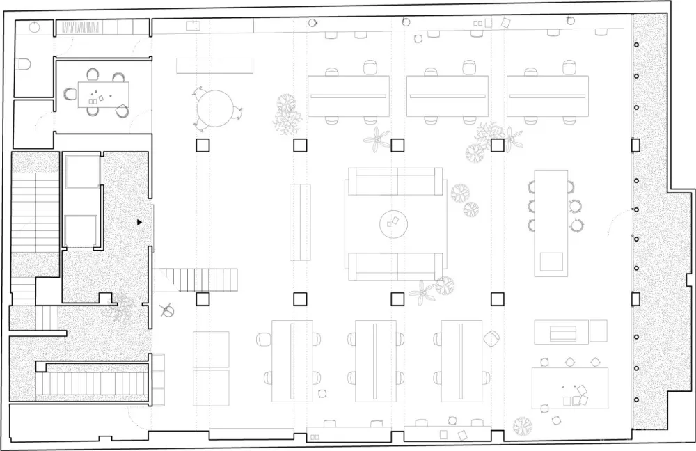
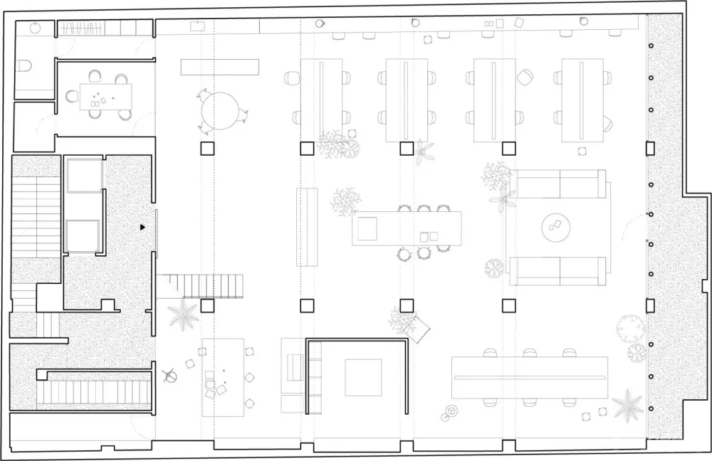
▼不同布局的平面图
▼结构体系分析
客户:MESURA
地点:西班牙巴塞罗那
类别:办公室
摄影:Iris Humm, Jaime Font Furest


不一样的感觉。棒棒的