汽车制造商NIO的新展厅旗舰店于日前在中国杭州西湖的滨水区落成。这座集电动汽车展厅和俱乐部为一身的旗舰店将NIO的企业品牌与西湖的文化融合在一起,使消费者能够多方面了解NIO的品牌理念,即基于环境保护的汽车生产。
这座新的旗舰店于2018年11月20日在中国杭州开幕,这也是丹麦建筑事务所Schmidt Hammer Lassen Architects为NIO蔚来汽车公司设计的第二座汽车展厅。旗舰店俯瞰着西湖,具有浓厚的文化和景观意义:西湖不仅是联合国教科文组织评定的世界遗产之一,更是中国境内最美的风景名胜区之一。此前,Schmidt Hammer Lassen Architects已经为NIO蔚来汽车公司设计了一座展厅,于2018年2月在上海开幕。本展厅与位于上海的第一座展厅一样,都是一家以设计为中心的传统汽车展厅,旨在向大众展示NIO蔚来汽车公司所生产的创意电动汽车。作为一个全球性的初创企业,NIO设计并开发了很多高性能的电动和自动驾驶汽车,同时采用一种颠覆传统的行业观念,重新定义了高级服务对汽车公司的重要性。
“西湖是不同自然环境的河流的汇聚点,这为NIO西湖展厅的空间和氛围设计提供了灵感,” Schmidt Hammer Lassen Architects上海分部的合作伙伴兼设计总监Chris Hardie这样说道。“展厅的室内设计通过使用简洁的线条和挤压材料边界的方式,反映了NIO的汽车模型(如ES8和EVE系列)的造型和材料。”
NIO的商标设计也深受西湖地平线的影响,结合了企业迈向未来的概念和地平线的意向。西湖的天空和湖面将整个构图一分为二,为杭州展厅的设计提供了灵感来源。

西湖上空的天空被抽象成建筑上层的镜面玻璃立面。在白天里,立面上的景象随着太阳、云彩和树影的移动而不断变化。夜幕降临的时候,室内不同的光线和活动使整座建筑变得灵动起来。建筑师在柱子前面设置了一个全镜面的玻璃立面,一个干净简洁的现代化建筑图像跃然纸上,给人一种大型当代艺术装置的感觉。玻璃墙面打造出一种开放的通透感,完全展示了NIO公司最新的汽车模型,吸引人们驻足观看。展厅的首层则是“探索发现NIO”的区域,其极具流动性的天花板的设计理念也来源于西湖的湖面。
建筑首层汽车展览区的墙面和地面采用浅色水磨石,这种结实的材料也寓意着NIO坚实的品牌基础。这种定制的水磨石由三种中等大小的卵石组成,虽然是石材,却也能营造出一种温暖的空间氛围。为了使顾客能够体验到NIO产品的完美之处,建筑师设计了一个完美的弧形水磨石表面,无缝连接墙和地面。此外,为方便客户定制汽车,建筑师还设计了一处个人配置区。相较于展览区,配置区则选用色调更为柔和的材料。道格拉斯冷杉木板和定制的软垫长凳为顾客创造了一个休息和品鉴空间。在这里还能看到交互展览墙上的汽车模型,使顾客在休息的同时可以挑选自己心仪的车型。一层空间平静温暖的氛围和精巧的细节设计使人们将更多目光投注到展览的汽车产品上。
展厅的上方是俱乐部风格的空间,拥有多个不同私密性和舒适度的会员专属空间,分布在建筑的三层空间内。建筑的二层空间被称为“起居空间”,可以通过一个隐蔽的雕花楼梯到达。二层空间包含了开放式的会议室、一个公用长桌和一个开放式厨房。起居空间主要使用道格拉斯冷杉木和白蜡木,营造出一种温馨的、斯堪维尼亚风格的北欧式空间氛围。二层空间还包括一个名叫“Joy Camp”的儿童活动区。该区配备现代家具,内置书架、软垫表面以及可用于游戏和讲故事的楼梯座椅区。
建筑三层是一个专门为NIO成员预留的私人空间,包括一间私密的休息室、一个用于授课和报告的讨论空间、一间图书馆休息室和多个私人会议室。NIO杭州旗舰展区的各个楼层均享有湖景,并配有温暖且丰富的表面纹理、浅色的实木家具和装饰细节,以及如水磨石、玻璃和反光金属等天然材料。整个NIO杭州展厅为其产品使用者打造了一个家庭空间,为他们创造了一个适于全家人一起来探索、团聚、放松和享受的世外桃源。









▼场地信息及其周边环境
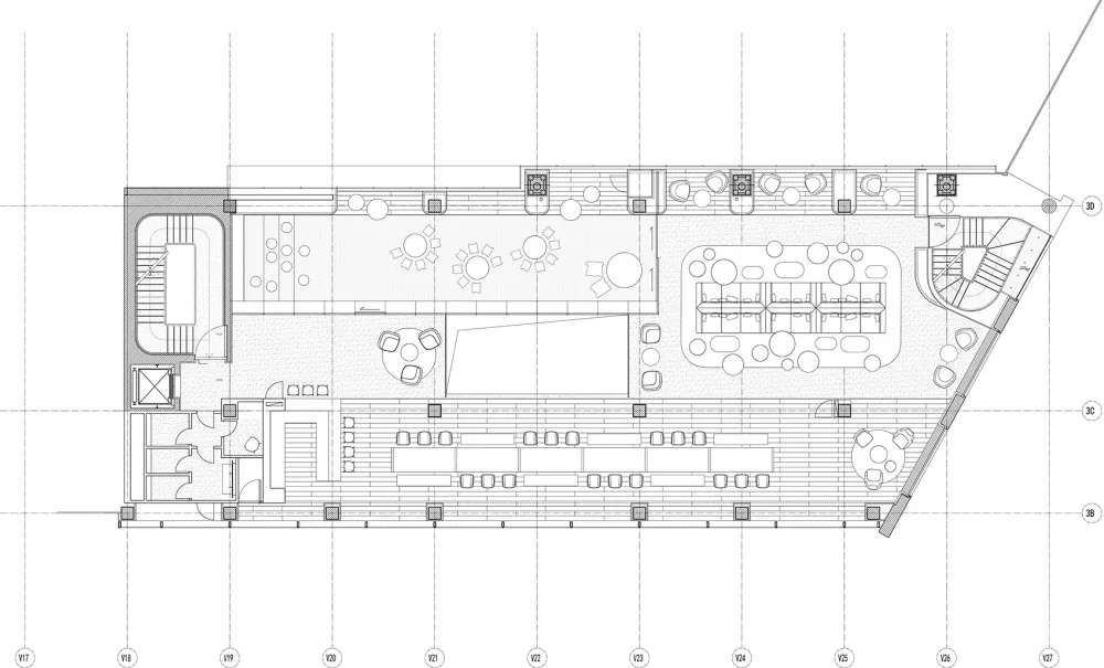
▼二层平面图
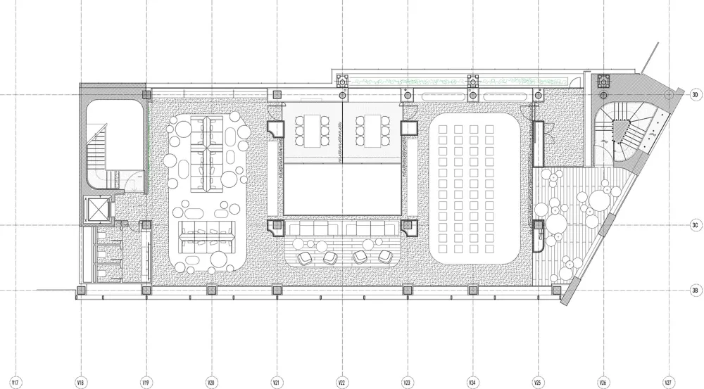
▼一层平面图
▼三层平面图
▼一层轴侧图
▼二层轴侧图
▼三层轴侧图
▼室内透视手绘草图
设计公司:Schmidt Hammer Lassen Architects 位置:中国 类型: 建筑 材料:水磨石 木材 玻璃 镜子
版权声明:本文内容由用户自行发布上传或投稿由设计芝士代为发布,版权归原作者所有,设计芝士不拥有其著作权,亦不承担相应法律责任。如果您发现本站中有涉嫌抄袭或侵权的内容,请点此提交工单进行举报,一经查实,本站将立刻删除涉嫌侵权内容。

