由gmp·冯·格康,玛格及合伙人建筑师事务所设计的天津滨海新区文化中心滨海美术馆正式落成。滨海美术馆是天津滨海新区文化中心“五馆一廊”文化设施的重要组成部分。美术馆将在未来举行多样的当代艺术展览。开放灵活的平面布局和可移动墙面系统为艺术提供了自由的舞台。
建成后的天津滨海新区文化中心将成为崭新的热门文化地标,这里坐落着数座不同寻常的建筑。文化中心整体规划由gmp建筑师事务所完成,来自世界不同国家的设计师分别承担了其中博物院、剧院、活动中心等独立机构的设计任务,五座场馆通过一座由伞形钢柱支撑的文化长廊连为一体。
滨海美术馆位于天津滨海新区文化中心的西北角,滨海现代城市与工业探索馆的对面。美术馆高五层,总建筑面积26500平方米。建筑呈规则长方体体量,幕墙为浅色天然石材。建筑幕墙由下自上带有细长窗缝的封闭幕墙逐渐取代大面积横向玻璃幕墙。建筑面向艺术长廊和室外街道的一侧,玻璃幕墙与石材立面交接处呈现阶梯式退进结构,从而强调出美术馆的正门,玻璃幕墙实现了通透的视野,另来访者可以一窥馆内艺术展品的魅力。
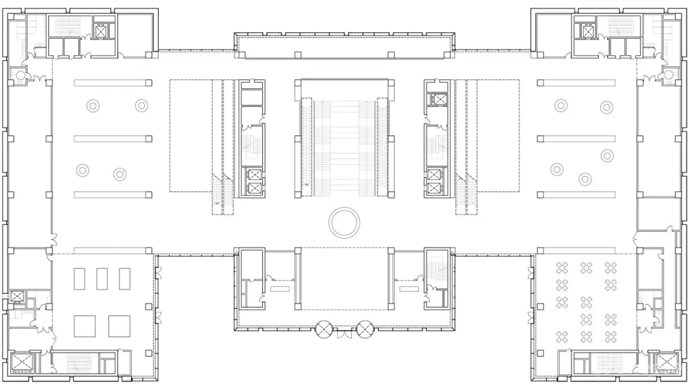
美术馆采用了古典的对称结构布局:两座侧翼连接围合一座宏大中央空间,其内可以陈列大型展品,也可以作为迎宾、拍卖或多功能厅使用。沿街一侧的西立面,一座大型室外楼梯直通位于二层的中央接待大厅,来访者可以通过一座中庭由此直接到达博物院前厅,同时这里也与同层之上的文化艺术长廊相连。
文化艺术长廊的巨大屋面将不同的文化设施连为一体,构成整个基地的背脊线。博物馆、展览馆和活动中心等空间密集分布于230米长、25米宽 的南北轴线两侧。仅有100米长的东西轴线宽60米,是南北轴线宽度一倍,两条主轴交汇处形成一座中央广 场,可举办大型的临时展览或演出活动。
26个高30米的伞形钢柱结构拔地而起,撑起了整个艺术长廊,极富未来感的结构塑造了滨海新区文化中心的独特形象,同时令不同的文化建筑焕发出各自的光采。纤细的钢柱承担了玻璃平屋顶的荷载,屋面排水系统也被集成设计与其内。水平方向的铝合金百叶可以过滤光线,起到遮阳作用。来访者可以在文化艺术长廊的两个层面上漫步休憩,长廊上层连接了不同的文化建筑,与街道等高的底层设有文创产品商铺和餐饮休闲设施。两层空间之间设置了充足的楼梯,人们可以便利地在艺术和商业空间之间自由徜徉。
美术馆的三层空间之上将举行多样的当代艺术展览。越层空间内的可移动展墙可根据不同主题自由分隔组合展览空间。灵活的平面组织和7米空间净高可以布置陈列大型展具。照明灯带被整合安装在屋面吊顶内,为展览空间提供多样的照明方式。可调节的射灯可以营造多种展览和空间的基调。
美术馆第五层之上为行政管理空间。这里设有办公室、会议室和公共活动空间,两座屋面庭院为周边室内空间带来了充足的采光,同时也为办公人员提供了休憩交流的场所。


▼艺术长廊剖面图
▼剖面图
▼西立面图
▼美术馆二层平面
▼总平面图
设计委托:2013年
设计:曼哈德·冯·格康和施特凡·胥茨以及施特凡·雷沃勒
项目负责人:隋锦赢,林赛博
设计团队:马可·阿桑德里,第纳·伯彦斯,穆杨托,迪米特里·菲利普
中国项目管理:吴镝,刘杨娇
中方合作设计单位:天津市建筑设计院
业主:天津市滨海新区文化中心投资管理有限公司
建造周期:2015—2017年
落成开幕:2017年10月
建筑面积:26500 m²

