谢子龙影像艺术馆建在湘江河畔,长沙洋湖湿地公园之内。所在基地恰好处于湿地公园连接湘江风光带的视觉廊道上,是政府重点打造的市民文化艺术高地。影像馆同我们之前已经完成的湘江新区规划展示馆(2009年)、李自健美术馆(2016年)共同构成了洋湖市民的文化客厅。
在顺应建筑“自治性”的价值认知体系基础上,通过对地域类型学的持续研究与实践,探求建筑本体中的“原型”,并发现其背后的“心理图式”,加之受契里柯形而上绘画的影响,我们在当下追求浮华、表象化的社会图景下,试图寻找到形式语言背后的内在逻辑——“类型原型-深层结构-心理图式”,并将其融入到“谢子龙影像艺术馆”设计中。
契里柯形而上的绘画是对永恒的思考,画面透过“光与影”弥散出一种神秘旷奥、安静深远的静寂感,影像馆借助日常生活中熟悉的物来隐喻和建构一个时间停滞的迷宫,引导观者密切关注疏离化之后的陌生感。▼设计手稿:光的三角
直指天空巨大的锥塔,悬于半空的被截断的街道以及不知通向何处的岔路洞口,循环往复、穿插对望的神秘坡道……部分元素以相似但异化的形式多次出现,它们共同制造充满着时间停滞感的奇异感受,让人迷失。白色温润的清水混凝土墙面使建筑的空间结构呈现出最本质的中性状态,凸显着质料的神秘,空间的纵深通过光影逐渐呈现出来,与记忆交织在一起。迷宫是一个多义的隐喻,既指迷失的地方,又是让人着迷、沉醉其中的处所。
建筑主体由白色清水混凝土一次性现浇而成,无论墙体,顶棚、地面或室外广场、平台、栈道都只使用清水混凝土一种材料,做法本身就是超越性的。为追求清水混凝土质感与性能,施工前期做了大量样块、样板墙及白色混凝土的级配试验:采用优质白水泥代替传统硅酸盐水泥做为主要胶凝材料,精选白色或浅色砂石为骨料,同时剔除粉煤灰和矿粉等对混凝土白度影响较大的活性矿物掺合料。
一系列的改良试验使混凝土白度达到、甚至超过了88%的国际标准,是国内最白的清水混凝土建筑。影像馆材料刻意追求白,白色作为一种观念,能最大程度降低材料本身固有色对空间中其它成分的干扰且不丧失其清水砼本身的质感;白某种程度还是对“空”的表达,既是对馆内艺术品的强调,又为艺术品的选择预留更多思考空间与可能性。






▼3层平面图
▼设计手稿:光的三角
▼剖面图
▼空间结构示意
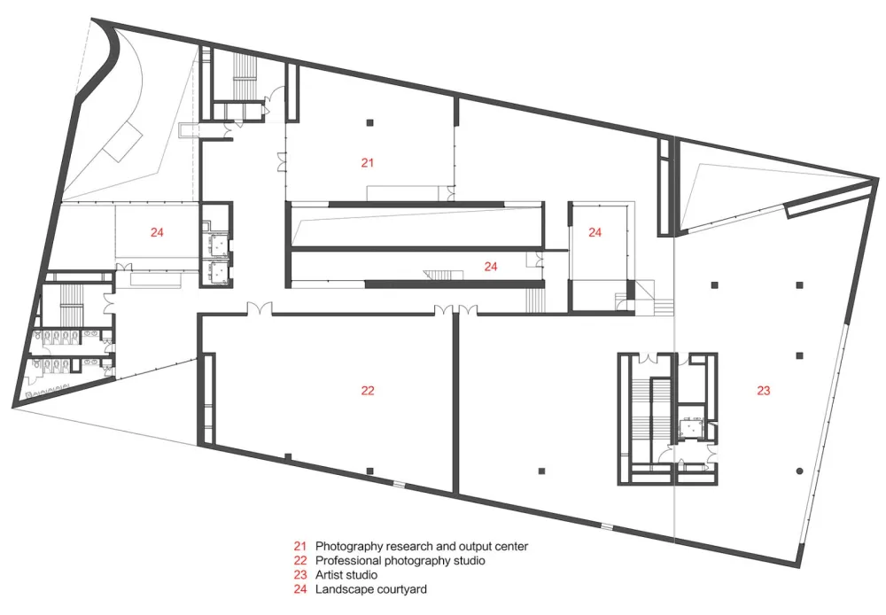
▼2层平面图
▼交通路径示意
▼场地平面图
▼首层平面图
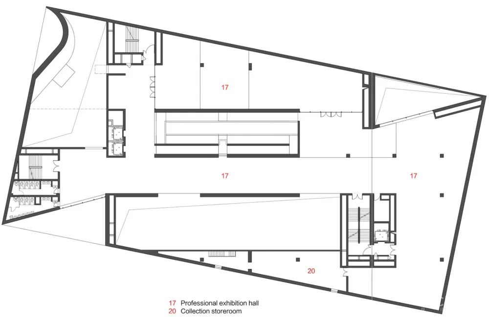
▼4层平面图
项目名称:谢子龙影像艺术馆
建筑事务所:地方工作室
联系邮箱:48109308@qq.com
主创建筑师:魏春雨 张光
设计团队:沈昕,刘海力,陈赟,文跃茗,佟琛,陈荣融,肖敏(节能),朱建华(结构)
项目详细地址:湖南省长沙市岳麓区潇湘南路387号
项目完成年份:2017年9月
建筑面积:10622平方米
摄影师:姚力 张光
其他参与者:业主:湖南谢子龙影像艺术馆有限公司
机电设计:湖南大学设计研究院有限公司设备所
室内设计:长沙视码空间设计有限公司
景观设计:湖南水立方建筑与景观设计有限公司
照明设计:武汉晨新科技发展有限公司、惠州市西顿工业发展有限公司

