剧院描述 | Notes On The Architecture Of The Theatre
建筑事务所Architects Haworth Tompkins于近日为位列英国Grade I级建筑遗产的布里斯托尔老维克剧院(Bristol Old Vic)设计了一个新的门厅和一座小剧场,值得一提的是,布里斯托尔老维克剧院也是目前所有英语国家内还在运作的最古老的剧院。经过为期5年的精心研究、咨询、设计和施工, 该项目旨在将剧院原先正门部分的空间打开,从而吸引数量更多的、兴趣更多元化的观众,同时将剧院置于布里斯托尔公共生活和公共空间的中心。
布里斯托尔老维克剧场是目前所有英语国家内还在运作的最古老的剧院,始完工于1766年。时至今日,剧院中的礼堂还大都完好无损,然而,历史上的现实情况是,多年来连续的街道面貌改造于1972年达到高潮,于是,当时著名的英国建筑师Peter Moro提出,可以设计一个新的门厅和小剧院,以将剧院周边历史悠久的Coopers’ Hall大厅纳入剧院的范畴内,并将其作为主要的入口和交通空间。2012年,建筑师Andrzej Blonski更新改造了剧院的礼堂和后侧的室内空间。
然而,随着时间的推移,越来越多的观众脱离了剧院生活,剧院似乎与街道隔绝了。20世纪70年代由Peter Moro提出的改造设想虽然在概念上十分清晰,技术也易于实现,但却将礼堂分隔成了两个毫无联系的门厅,同时,新建的小剧院封闭了剧院的公共外立面,而改造后的Coopers’ Hall大厅对剧院入口和交通空间的过度规范也起到了相反的效果,成为了一个限制和阻碍,综上,这时的剧院空间已经不再能满足其作为城市公共空间的历史要求了。
要解决这些问题,就需要进行一些根本性的改变,因此,设计团队决定完全拆除和重建1972年加建的门厅和小剧院,取而代之的是更为热情和清晰的门厅空间,一座位于Coopers’ Hall大厅下半部分空间中的小剧院,以及一间位于Coopers’ Hall大厅上层、恢复了其原始功能的大公共空间。


建筑的南临街立面宛如一件公共艺术品,由可手动调节的遮阳百叶窗组成, 同时还结合了Garrick于1766年发表的就职演说和前布里斯托尔城市诗人Miles Chambers的诗句中的文字。这些文字不仅强调了剧院悠久历史的重要性,也表达了人们对它的期待,即在整个社区的当前和未来的生活中发挥重要作用。

新建的门厅充当着街道的非正式延伸空间,同时也是独立建筑内部的一个有屋顶的公共广场。该门厅由木质框架和玻璃围合而成,以确保阳光能够进入室内空间。该空间的核心作用是大幅度改变Georgian礼堂外立面的视觉效果——这是有史以来第一次,人们可以从街道上看到Georgian礼堂的外立面,新门厅不仅如大采光天井般照亮了历史悠久的立面,更将新元素覆在历史之上,在呼应历史的同时,也弱化了时代变迁的印记。
门厅中位于夹层空间的楼座、蜿蜒的木质楼梯和观景平台使得所有观众在每场演出的间隙中都能够自由地上下走动,体验这个充满欢乐的独立空间,同时,门厅还可以充当咖啡厅、酒吧和聚会场所,为当地社区中的人们提供了一个可以全天享受和放松的空间。
与大部分的剧院项目一样,建筑师在选择建筑材料的时候,都会考虑到它们的耐用性和可持续性。因此,建筑师选用道格拉斯冷杉木材作为结构材料,随着时间的推移,它们在颜色上将会逐渐变深,而沿着门厅一侧布置的精致的由橡木板条打造而成的隔板则可以有机地弯曲和伸缩。随着时间的发展和使用的进程,铜制的吧台和混凝土地板,以及上层空间中所使用的橡木地板和上了漆的楼梯栏杆也会逐渐变得古色古香。空间中的细节都是非常直观且随意的,使得过渡空间几乎都保留着室外空间的建筑语言,以强调门厅作为街道和历史悠久的剧院之间的过渡空间的体验和氛围。
在本项目中,建筑师使用结构性木材和木质内表面来增添包括结构框架、屋顶和外立面在内的新的建筑元素。门厅和新建的小剧院通过大型的通风口空间和预冷却室来实现自然通风,同时设置可自动调节温度的高窗和低窗。可移动的立面百叶窗旨在优化夏季遮阳和冬季得热的效果。裸露在外的混凝土地面和整个空间中现存的砖石表面都是良好的保温隔热体,同时,拆除作业中的砖块也被回收再利用,被用于新墙体的建造和老旧砖墙的修复工程中。

布里斯托老维克剧院的主管Tom Morris说道:“随时历史的发展,剧院与城市相互隔绝的状态已经存在了长达50多年之久,在本次项目中,我们推倒了将剧院与城市隔绝开来的墙体,这对于这座有着252年历史的建筑瑰宝来说,是一个十分重要的时刻。这标志着我们将致力于将这座剧院打造为一个城市空间,而这也是250多年前该剧院的初衷,很荣幸能够邀请到建筑事务所Haworth Tompkins加入到这个项目中来,他们为实现我们的雄心壮志做出了不可磨灭的贡献。”

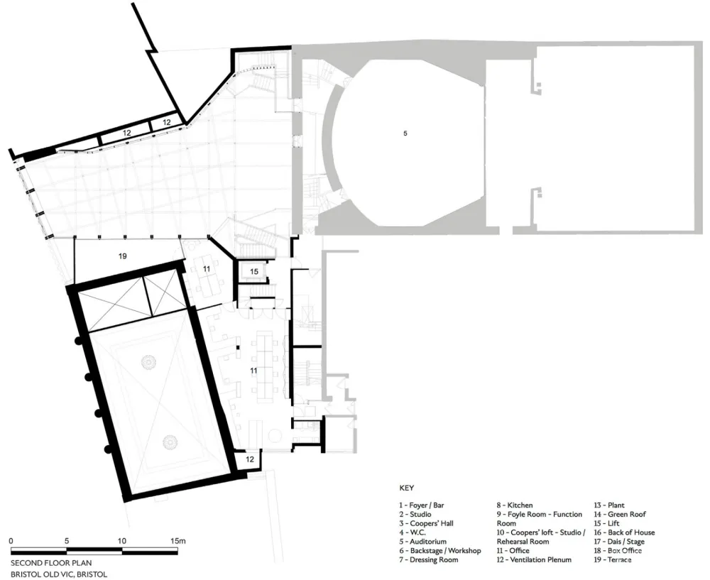
除了主门厅外,本项目还包括一座新建的小剧院。该小剧院坐落于前Coopers Hall大厅的酒桶仓库的旧址上,位于剧院的首层和地下一层,保留了历史遗留下来的墙面,同时利用街道外墙上的窗户进行自然采光。原来位于剧院首层的Coopers Hall大厅被改造成了一间大型的公共休息室,俯瞰着城市街道,不仅可以作为门厅的延伸空间,也可以作为独立的多功能厅使用

建筑事务所Haworth Tompkins的主管Steve Tompkins这样说道:“改造一座Grade I级的历史建筑对我们来说,是一个巨大的责任,但是,能够与Tom Morris和布里斯托老维克剧院的团队合作,共同完成这个复杂而艰巨的任务,又是一次愉快的经历。我希望我们不仅能够将剧院悠久而丰富的独特历史完美地呈现出来,更能够创造一个全新的、生动的公共空间,使得每个来这里的人都能有一种宾至如归的感受。”


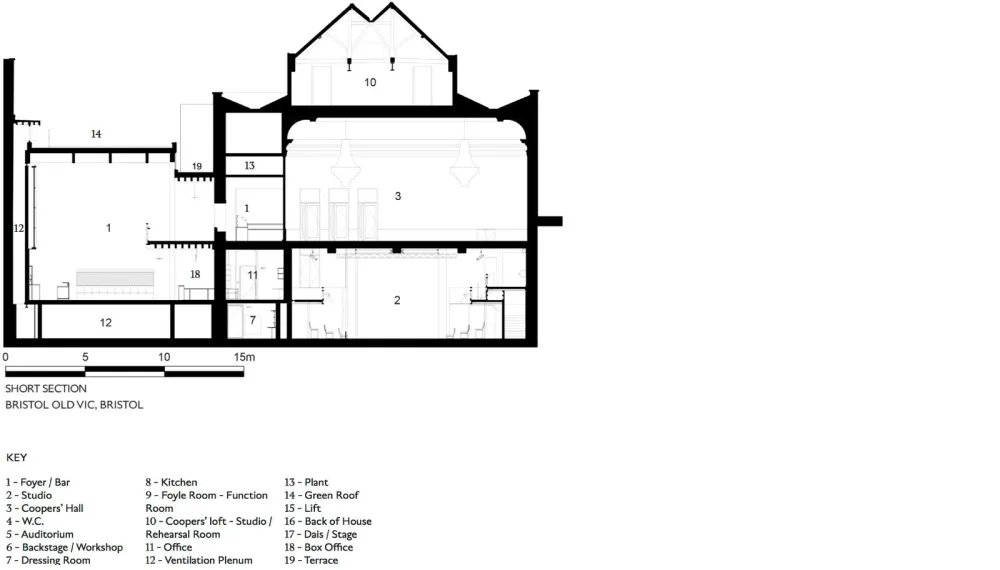
▼纵向剖面图
▼设计概念
▼纵向剖面图
▼国王街临街立面图
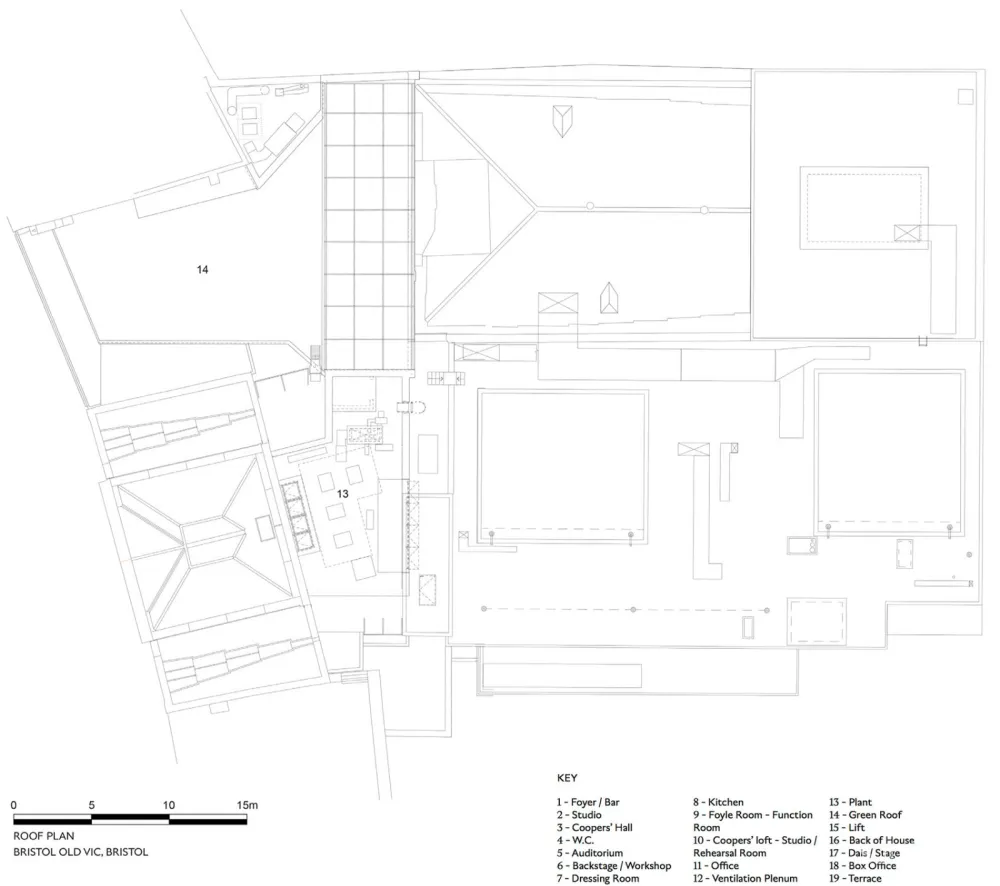
▼屋顶平面图
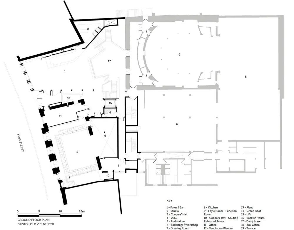
▼首层平面图
▼区位总平图
委托人:布里斯托尔老维克信托公司
地址:布里斯托尔Old Vic, King St, Bristol, BS1 4ED
项目开工日期:2016年10月
竣工日期:2018年9月
工程造价:£9300000
建筑面积:2135平方米
建筑师:Haworth Tompkins, Beatie Blakemore, Tom Gibson, Toby Johnson, Will Mesher, Michael Putman, Steve Tompkins, Roger Watts

