空间游戏
二娃之家需要一个共享开放的活动空间,设计使用了几何语言,融合木色,为孩子呈现一个童趣的生活世界。
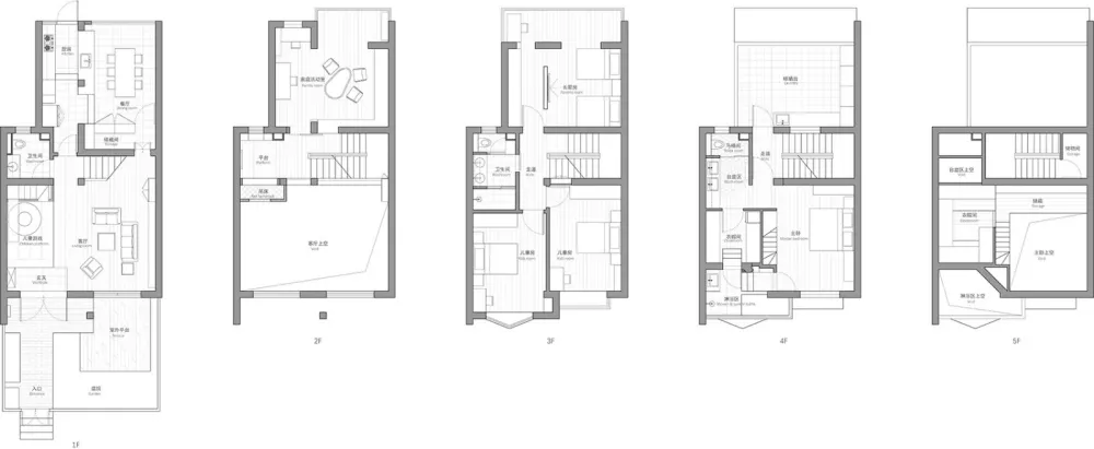
我们在挑高的客厅中为两个孩子设计一个游戏榻,既是孩子的舞台,也是大人的休息平台及换鞋凳。榻上立一游戏方盒,与楼梯、滑梯和吊床结合布置,方盒上挖出的拱形及圆形洞口提供给孩子游戏与互动。
客厅的另一侧布置沙发,朝向孩子的游戏平台,沙发背后为横向书架。客厅临餐厅的一侧,有走道、楼梯、平台和梁柱,零碎且无秩序。设计保留它们的同时,在楼梯侧面加上白色栏板,还原它斜向上升的形式感,再在洞口中镶上木框,形成一个几何、抽象的画面。
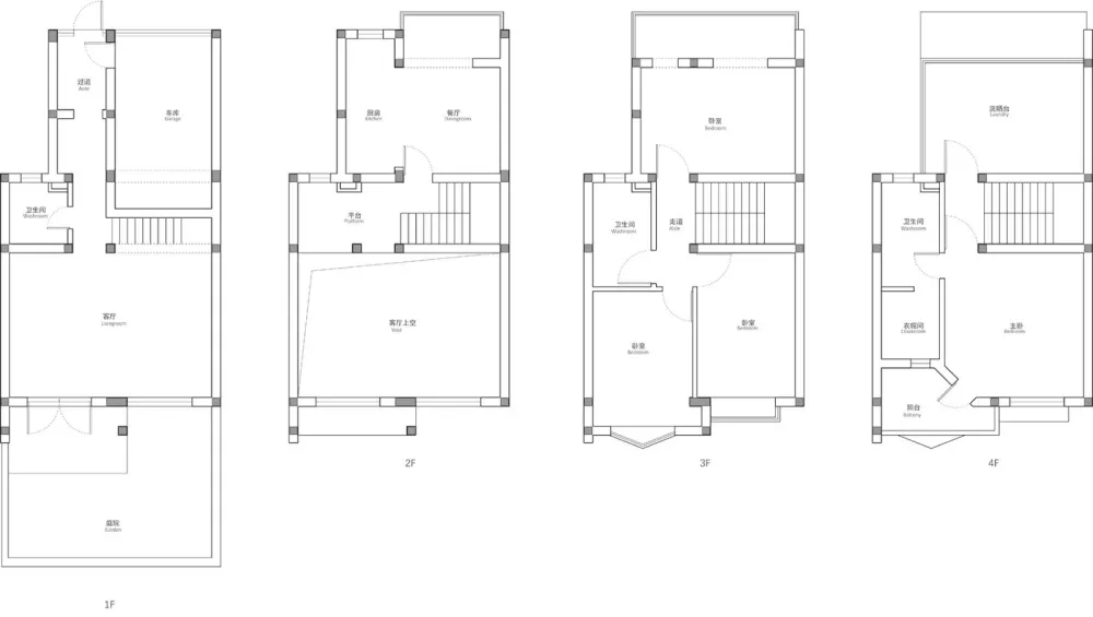
原户型二楼的餐厨空间被移至一楼的车库区域,以改善动线的合理性。北入口进来的长走道两侧布置厨房台面、蒸烤箱及冰箱。车库转变为餐厅,原车库入口则为了餐厅提供了开阔的景观。餐厅厨房之间的木框形成“互看共享”的景窗效果。
二楼平台设计中加入了多样的洞口,以加强与客厅空间之间的互动。二楼家庭活动室供两个孩子画画涂鸦、弹琴、游戏,以及大人观影娱乐。
三楼南侧两个孩子的卧室,设计了两面拼色墙。北侧为长辈房,靠墙设置整排的衣柜,中间放置通顶的木格栅电视墙。
设计将原局促的主卧改造为套间,拆除了原卧室吊顶,裸露斜坡屋顶,形成一个高而阔的就寝空间。就寝以外部分,利用高度富裕的区域搭建LOFT夹层,作为女主人的专属衣帽鞋包收纳空间。
主卧南侧阳台地面被抬高,形成下沉式浴缸,带独立的更衣、淋浴。与主卧、衣帽间、卫生间联系组合成洄游环线。
线面体是空间设计的主题,现场定制白色栏板随楼梯转折提升,切割出大量有趣奇幻的空间构图。栏板上漂浮木质扶手,内嵌自动亮熄的感应灯带。
项目名称:几何空间,二娃乐园
设计方:大海小燕设计工作室
联系邮箱:dh.guo@qq.com
项目设计 & 完成年份:2018年
主创及设计团队:郭东海,燕泠霖
项目地址:上海市黄浦区
建筑面积:260㎡
摄影版权:大海小燕设计工作室,恩万建筑摄影
品牌:宅匠-地板;金迪-橱柜

