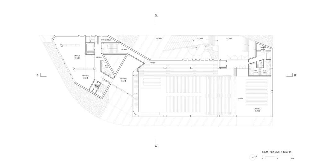
教堂坐落于上海这个中国大都市的南部,位于通向新外滩的城市入口。这个独特的地理位置使该项目成为新区国际住宅区的自然通道,也成为了沿着黄浦江规划的城市线性公园的一部分。场地西边的地铁基础设施决定了地块的几何形状,并赋予其明显的纵向特征。
本项目通过设置一个覆盖的通道以隔离世俗和宗教功能,该通道强调了教堂入口并实现了内部空间的必要通风。三角形的钟楼与较低的台阶相结合,增强了教堂作为城市地标的作用。
教堂主体中央的礼拜堂,以透明礼堂形式整合最佳的声学和视觉特征,平衡了体量与表面的关系并强调了其作为社区空间的象征性特征。
连接公园的是一个巨大的、纪念性的公共楼梯。通过它可以进入上层的教会服务空间,并通过蛇形上升引导游客来到建筑的花园式屋顶:一个眺望公园与黄浦江的天然观景台,如同米兰、巴塞罗那或巴黎等欧洲大教堂的上人屋顶的历史传统。

建筑师 Ábalos + Sentkiewicz arquitectos
地址 上海,中国
类别 教堂
主创建筑师 Iñaki Ábalos, Renata Sentkiewicz
建筑面积 2837.0 平方米
项目年份 2018
摄影师 Zhang Yong

