极简倾向的表情下,是设计师对于如何融合东西方现代都市生活方式的探索。
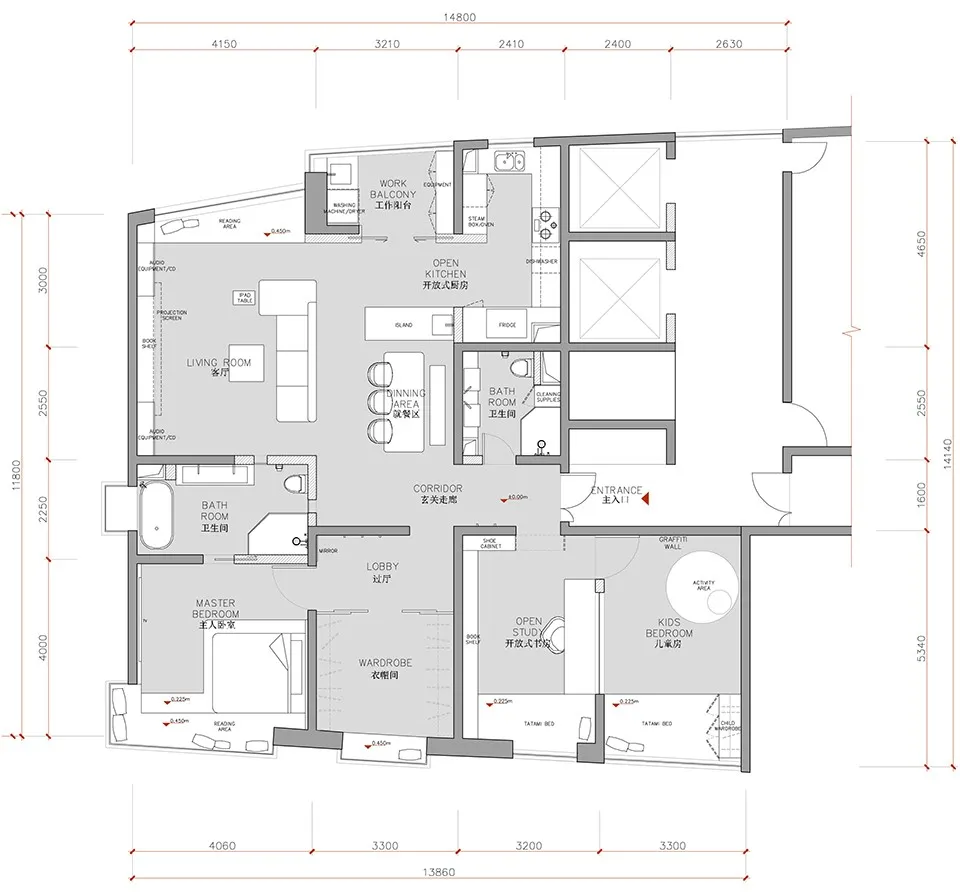
这是一个三口之家居住的景观私宅设计。因为是十几年前开发的户型,这套房子不仅存在大量复杂的剪力墙,斜向外墙和外窗也给室内空间造成一些家具摆放及视觉误差问题。针对户型特征和业主的实际生活需求,设计师将空间布局成两个类似半套间的特殊关系,调整动线至流畅的“W”型。并尽可能利用飘窗等方式化解布局和视觉方面的问题。
圣·埃克苏佩里说过,「设计师知道自己的作品在臻于完美时,并不在于无以复加,而在于无从删减」,这也是我们在做这个空间时的理念。尽可能克制得呈现出极少表象装饰,靠空间、材质、光线创造出的不同于寻常的干净生活感受,或者说是一种净化过的内在哲学体验。
而极简倾向的表情下,是设计师对融合中西生活方式空间的探索。150㎡的空间里,不仅有兼容中西的餐厨空间,有寓教于乐的客厅空间,更有半开放书房、一体式地台床、飘窗阅读区、步入式衣帽间等新的都市家庭生活方式。
书房套儿童房的设计更是体现了业主对西式教育理念的倡导:儿童房内不做过多设计,而是给小朋友预留了独立活动、选择和想象的空间;书房与儿童房共享一个「沟通窗」,但私密性百叶帘的控制权却在小朋友手里,体现的是对儿童自主权和隐私的尊重。
客厅的主墙使用了两种对比冲突强烈的材质:中央用OSB板做开放书架和悬浮低柜,两侧用黑钛拉丝不锈钢做视听收纳柜。整个收纳墙面一分为四,通过两扇定制的推拉门,实现书架主题与视听主题两种客厅氛围的切换,并设有折叠的激光投影机平台与暗藏式电动幕布。


黑色金属直线条作为这次设计搭配的重要元素贯穿始终,其代表的「点」「线」「面」对比桦木饰面包裹的墙体、阅读飘窗,以及沙发、橱柜所代表的「体」,形成很好的层次和对比。
整体来说,暖色温润的质感相对靠近地面和人体需要放松接触的表面,冷色和硬线条靠近上方及视觉停留望向的地方。这样既做到了身体上的放松和安全感,又照顾到了视觉的清爽和通达感。



























项目名称:W-house极简私宅设计 设计:Muka lab 木卡工作室 联系邮箱:mukalab@163.com 项目设计 & 完成年份:2018&2018 主创及设计团队:张英琦、李梦婕、杨斌、王滟杰 项目地址:上海 室内面积:150㎡ 摄影版权:张英琦
版权声明:本文内容由用户自行发布上传或投稿由设计芝士代为发布,版权归原作者所有,设计芝士不拥有其著作权,亦不承担相应法律责任。如果您发现本站中有涉嫌抄袭或侵权的内容,请点此提交工单进行举报,一经查实,本站将立刻删除涉嫌侵权内容。

