你站在桥上看风景,
看风景的人在楼上看你。
明月装饰了你的窗子,
你装饰了别人的梦。
——卞之琳(1910-2000)
迷芬奇是近期沪上最新潮的多元品牌零售店及餐饮目的地,在这里,看与被看的都是风景。Kokaistudios以欧洲剧院为灵感,将男女高端服饰、生活方式等多品牌功能空间折衷呈现,打造了令人炫目的效果。室内设计与迷芬奇品牌风格相契合,将精致优雅的魅力与活泼有趣的个性糅合在一起。
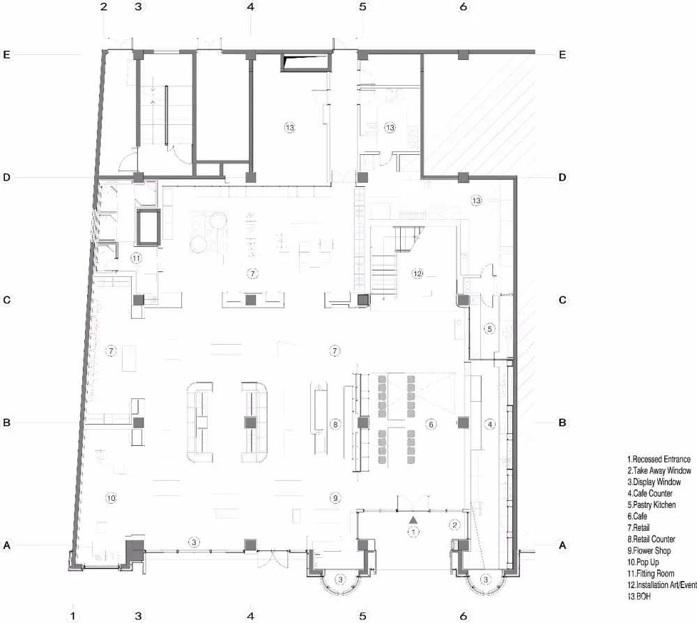
迷芬奇上下两层面积约1,600平方米,丰富且思虑周全的空间布局引人流连驻足。除了时尚服饰零售,迷芬奇还集合花店、咖啡馆和餐厅等空间;夜幕降临时,餐厅亦可转换为富有格调的高级酒吧。设计之初面临的主要挑战是,在黄金地段淮海路上,如何用简洁的设计手法表达多元的生活方式。
通过脚下步行标识步入其中,两个独立的入口分别清晰指向迷芬奇的零售和餐饮空间,人们就开启了一段奇妙的空间穿越之旅。配以生动的表演及舞台元素,每一处空间的设计都体现了“剧院”概念。
一楼零售对应的设计概念是剧院的排练室。这里主要经营初阶产品,包括潮牌、运动休闲、生活配饰和鲜花。设计用材轻盈,以浅色木料和水磨石营造轻快、欢迎的基调,更与后台区的调性保持一致。
镜面墙延伸了空间的尺度,大面积的反射光增加了室内亮度,以巧妙的手法遥遥致意剧院的排练室。为延续主题,服装均陈列在水平向的定制滑竿上,让人联想到芭蕾舞者练习时用的抓杆。
主入口吊顶是深凹的框架配以裸露的灯泡,引导游客进入剧院的“候场区”,即一层咖啡馆。这里是白日休闲所在,主要提供咖啡、茶、三明治等轻食;咖啡区的尽头是目眩神迷的旋转楼梯,为通向充满空间戏剧感的迷芬奇二层空间铺设了舞台。
楼梯优雅的浅灰色水磨石台阶与耀眼的马赛克镜面墙相搭配,一直延续到三楼的办公区域。这处旋转楼梯采用1000多块的定制仿古镜,以黄铜色的镜钉相饰,体现古典雅致的风范;而带有现代波纹的玻璃栏杆又暗合迷芬奇前卫新潮的格调。设计对材料的思考敕始毖终,全场采用了不少于六种的直压纹玻璃。
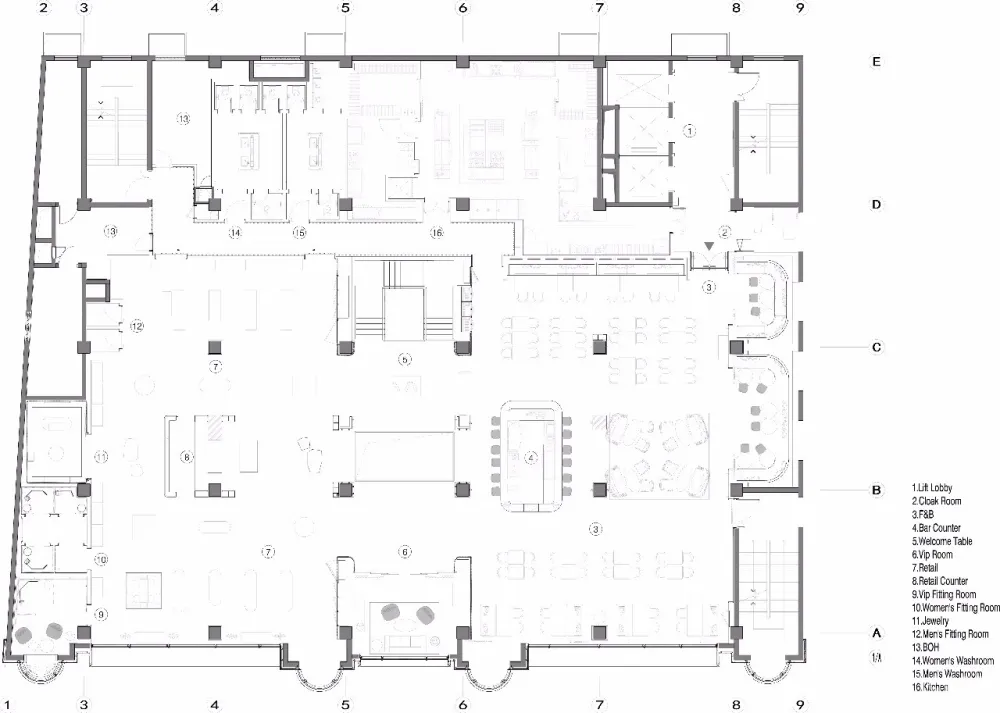
二层的正餐厅是视觉最佳席位,这里被设计成在古典剧院中设备齐全的包厢及观赏区。在这里,人们可以享用下午茶,早午餐以及更丰富的美食;入暮时分,调酒师在酒吧区熟稔地调酒,就像管弦乐队在乐池演奏一般。
迷芬奇中间两层通高的天井提供了宽敞的观赏视野且纵向联通了二层的零售区。从这个有利位置看,这里陈放的一排排水平挂架象征着层层相叠的舞台布景滑轨;而格栅墙的垂直线条和贵宾室门上的波纹纹理则暗示着舞台的帘幕。
店内最高端的产品系列以及专门的珠宝展陈区位于二层零售区。该区域采用胡桃木、拼花地板、抛光黄铜等丰富的设计材料和粗粝纹理的Marmo Antico贴面以保持戏剧舞台的格调。精细与粗犷并置,体现迷芬奇前卫时尚而又梳理有序的经营理念。在整个过程中,产品展示采用抽象木块的形式,以未知的方式作为舞台道具出现。
迷芬奇是一个空间的剧场,是叙事结合和故事展开的地方。在这个剧场里,“游客”可以发现自我、定位角色、拍下照片并分享在社交网络上。发轫于欧洲的多元化概念店如今在上海也掀起了风潮,迷芬奇的空间设计将产品与体验相融,带给人们别样的感受。
迷芬奇是一处活力四射的所在,人们在此可以全天候享受购物、餐饮等更多的乐趣。设计师在复古优雅和当代生活方式之间找到了完美的平衡点,为上海的多元化零售休闲空间献礼一出好戏。
Filippo Gabbiani出生于意大利威尼斯一个艺术家和玻璃制造巨匠辈出的名门,自幼展现出对艺术和设计的多重兴趣。Filippo Gabbiani的事业起步于与其家族合作设计、制作艺术玻璃制品,他毕业于威尼斯建筑大学,其毕业成果是一项由欧共体资助的、关于建筑可替代性能源运用的创新性研究。在遇到合伙人Andrea Destefanis共同创立Kokaistudios之前,Filippo出于本能地对不同学科和多元文化的好奇心,先后闯荡于欧洲数国和美国,曾与数家世界知名的建筑、室内设计和工业设计等领域的事务所合作。在上海成立事务所后,Filippo肩负着Kokaistudios的使命常驻亚洲,致力于可持续性发展建筑的文化推广及亚洲遗迹建筑的保护和修复,并继续着对艺术玻璃设计的研究。
Andrea Destefanis 出生于意大利都林的一个舞台艺术之家,很早就培养出了对视觉艺术和舞台布景的浓厚兴趣。在高雅的文化环境中成长并移居威尼斯在那里完成了其在威尼斯建筑大学的学业后,Andrea 开始了同多个建筑事务所合作的职业生涯,开发了很多获奖的建筑和城市规划项目。受其对不同设计领域的个人兴趣的驱动,Andrea成立了以协同合作为概念的工作室,致力于研究计算机平面设计的创新方法。2000年他遇到了Filippo Gabbiani,由于两人有着共同的建筑理念和对遗迹修护和环境设计的浓厚兴趣,他们开始了深度的合作并最终成立了Kokaistudios,2002年Kokaistudios在上海成立事务所后,Andrea长期移居亚洲,在为事务所努力打拼的同时继续其对社会和城市环境可持续发展工具的研究和推广。
Kokaistudios是一家涵盖建筑及室内设计的事务所,在业界屡获殊荣,由意大利建筑师Filippo Gabbiani和Andrea Destefanis于2000年联合创立于威尼斯。自2002年公司总部设于上海以来,Kokaistudios已拥有60余位杰出设计师,并成长为一家多元文化背景的设计公司,与客户协同合作,完成了涵盖亚洲、中东、欧洲及北美洲的众多创新设计项目。Kokaistudios专注于发展文化、商业、酒店及零售等方面的项目,更广泛涉及城市更新与文化遗产再造的项目,旨在为项目所在的城市增添蓬勃生机。
项目名称:迷芬奇
地点:中国,上海
室内设计面积:1378㎡
建成时间:2018年8月
室内设计:Kokaistudios
首席设计师:Filippo Gabbiani, Andrea Destefanis
项目经理:余书凡,曾尹莹
设计团队:谢维泽,邢秋楠,张雅楠
摄影:SethPowers
撰文:FrancesArnold

