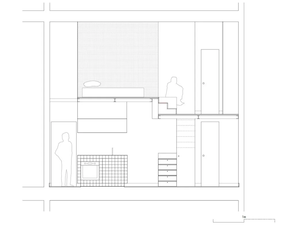
位于圣保罗Jardins (BR)附近,这个全新的公寓由房地产开发商处理,完全空置,没有基础设施。35平方米的双层空间是唯一的高品质资产。2016年,Atelier Branco被要求设计一套供单人使用的功能齐全的公寓。因此,主要的创造是夹层,它将提供足够的空间来拥有卧室和书房,以及客厅和餐厅,在一个流动的空间和一个连续的循环。
 
 
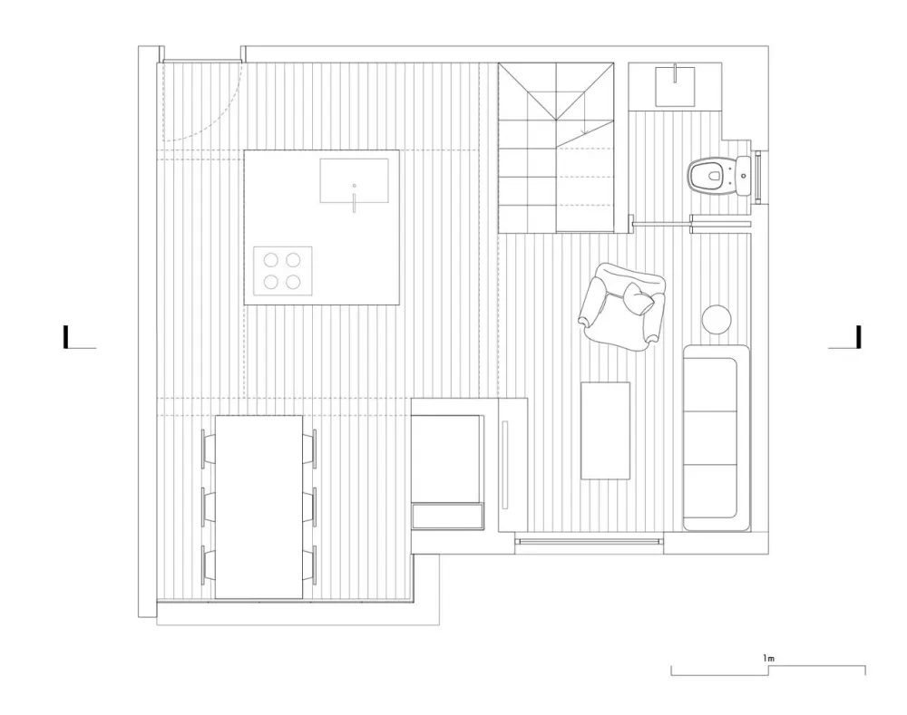
所有元素的设计最终都是为了满足所有的需求,并能够容纳任何类型的个人。一个无限视野的生活空间,一个开放式厨房,一个客厅,一个餐厅阳台,一个双人间,一个带淋浴的壁橱和两个70平方米的宽敞浴室。
 
 
夹层与周边墙体分离,以便同时了解整个生活空间,并通过所有区域形成视觉联系。它还引入了一个拆分级别,以便创建最大的存储空间。整个公寓都有木制衣柜和各种大小和形式的储物空间,可以储存每一种需求。从厨房里的白色瓷砖到地板上的白色加拉皮拉木,所有的材料都以白色为主色调。唯一的黑色元素是上层的窗框和混凝土淋浴房。
 
 
 
 

 
 

 
 
 
 
 
 
 
 
建筑 工作坊白色建筑
位置 巴西圣保罗
年份:2016
照片:Ricardo Bassetti


