Villa Morabeza是哥斯达黎加瓜纳卡斯特省海滩Playa Tamarindo最南端的度假屋。哥斯达黎加的这一地区是该国干旱最严重的地区之一,受到一年三分之一时间的明显旱季的影响。动植物区系属于干燥的热带森林,该地区通常遭受偶尔的干旱和缺水。房子面朝海滩,北面可以看到大海和山脉,沉浸在花园和居住区的绿地中。
 
 
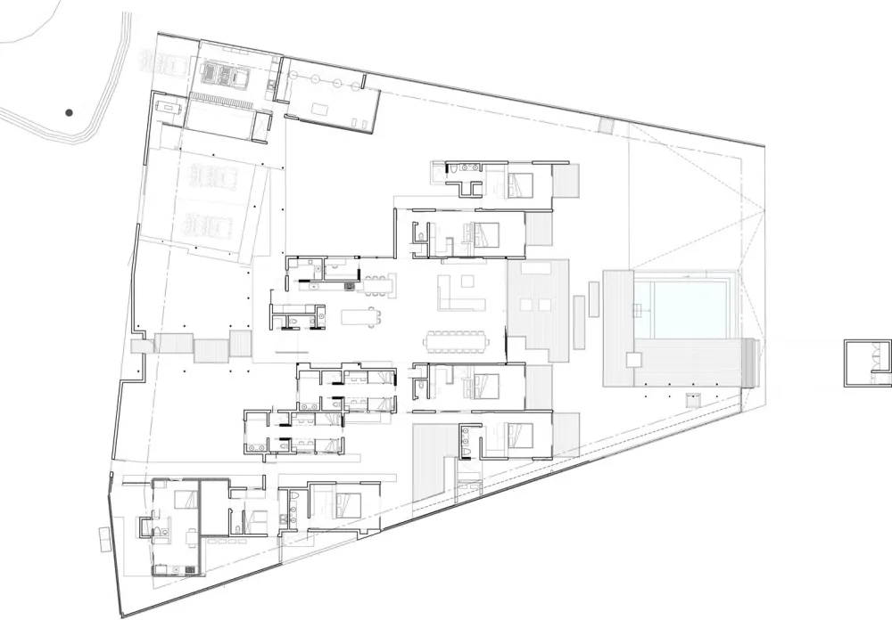
住宅旨在整合通常是独立或孤立的空间,比如房间、浴室、卫生间和外部露台,或者客厅、厨房、餐厅、入口和外部露台。通过这种方式,它设法减少空间的足迹,同时又不让它们感到小,并将外部与宜居空间结合起来。房屋的建造系统是非传统的,由预制冷弯型钢的整体结构组成。这使得建筑非常轻和灵活,安装在一个结构板上,使探索平坦屋顶成为可能,在一个地区,规范是减轻天气和降雨与陡坡屋顶。
 
 
住宅使用了一系列的系统来减少能源和资源的消耗,包括一个用于住宅所有水的处理厂,它被重新分配到地下,为低用水量的花园浇水。此外,该公司还与当地电力服务公司建立了一个由114块光伏板组成的热电联产网络,以及一个电网电力系统。对于热水,有一个混合系统的太阳能电池板与后备储存与液化石油气加热,以防止低太阳辐射。房屋所使用的材料是工业性质的,房屋大部分采用冷轧钢材建造,可无限循环利用,成本低廉。
 
 
在厨房-客厅-餐厅的社交空间没有设置条件,而是向四周开放的所有室内空间都采用了被动式设计,获得了交叉通风和自然采光。新的建筑技术和工业材料为探索和重新诠释热带干旱地区的现代建筑提供了可能。
 
 
 
 
 
 
 
 
 
 
 
 
 
 
 
 
 
 
 
 
 
 
 
 
 
 
 
 
 
 
 
 
 
 
 
 
位置:哥斯达黎加
建筑师:John Osborne Odio
摄影师:Courtesy of OsArq


