该项目位于厦门市万象城内,是一家主打椰子鸡火锅的餐厅。为了营造美食与艺术碰撞的氛围,设计师引入艺术陈设的设计概念。基于简约设计的原则,设计师用朴素的材料和精致干练的造型赋予该项目全新的空间体验。
The restaurant is located in Vientiane city, Xiamen that specializes in coconut chicken hot pot.the designer introduced the concept of artistic display so as to create an atmosphere in which food and art collide together. Based on the principle of simple design, the designer endows the project with new spacial experience with simple materials as well as exquisite and capable modeling.
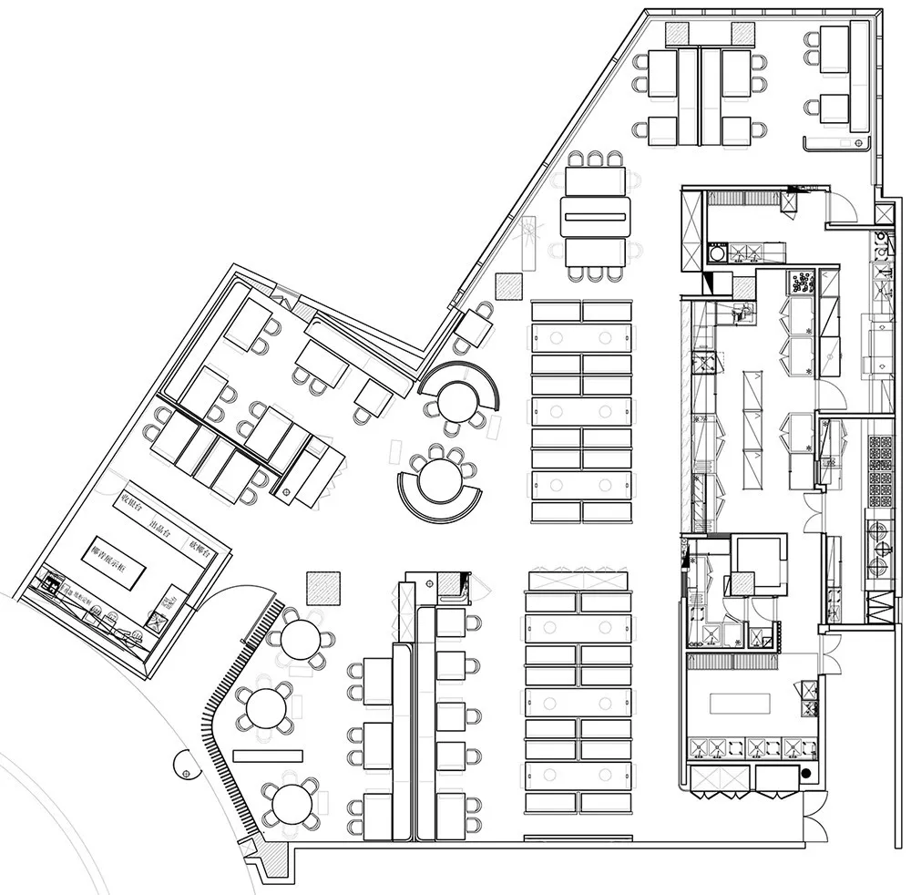
只有将食材色彩两者最大限度融合的地方,才能给人以“食”之最高享受,设计置换了橱窗展示手法来展示餐厅的特有文化。大厅空间置入悬浮屏风,围合出不同的就餐区域,每个就餐区域间隔而有透,让食客的视线在整个空间中游离。加上黑色不锈钢的装饰,令空间增添高贵典雅的气派。
Only when the colors of the ingredients are combined to the greatest extent can one enjoy the highest quality of the food. The design replaces the window display technique in order to display the unique culture of the restaurant.Suspended screens are placed in the hall to enclose different dining areas where each dining area is separated and transparent, which allows the diners’ sight wander freely in the whole space.In addition, the adornment of black stainless steel make the whole space become more elegant.
自成一体的黑铁+木质不再是简单的陪衬,反而与皮布家具争奇斗艳,不同主题挂画丰富了空间的艺术氛围,让食客在就餐体验如同置身于美术馆。调动食客身上每一个细胞,让人们只想回归于食色性也的本质,吃个爽快。既能让食客专注的享用美食,又能在食客抬眼的瞬间感受艺术的魅力。
Instead of a simple foil,The self-integrated black iron and wood competes itself with leather cloth furniture.Hanging pictures with different themes enriches the artistic atmosphere of the space,which makes the diners feel as if they are in an art gallery.Activating every cell of the diners so as to Let them just want to return to the nature of color and food and enjoy the foods with pleasure, which can not only allow the diners to enjoy delicious food intently, but also make them feel the charm of art at the moment when they look up.
更年轻的,更时尚的,甚至是更国际化的表达,锲合不断更新迭代客群,最高级表达就是“大道至简”。无处不在的点睛细节也冲淡了浓郁色感容易带来的审美疲劳,令食客们得以更舒适地享受用餐时光。
A younger, more stylish, or even more international expssion, constantly updated iterative customer base, the highest expssion is “The greatest truths are the simplest “The ubiquitous finishing details also dilute the aesthetic fatigue easily brought by strong color sense, which enables the diners to enjoy the dining time more comfortably.
更年轻的,更时尚的,甚至是更国际化的表达,锲合不断更新迭代客群,最高级表达就是“大道至简”。无处不在的点睛细节也冲淡了浓郁色感容易带来的审美疲劳,令食客们得以更舒适地享受用餐时光。
A younger, more stylish, or even more international expssion, constantly updated iterative customer base, the highest expssion is “The greatest truths are the simplest “The ubiquitous finishing details also dilute the aesthetic fatigue easily brought by strong color sense, which enables the diners to enjoy the dining time more comfortably.
设计:徐代恒

